Rentals » Kansai » Kyoto » Fushimi-ku
 
| Railroad-station 沿線・駅 | | Keihan Uji Line / Rokujizo 京阪宇治線/六地蔵 | Address 住所 | | Kyoto Fushimi-ku, Kyoto Momoyamachohyuga 京都府京都市伏見区桃山町日向 | Walk 徒歩 | | 11 minutes 11分 | Rent 賃料 | | 120,000 yen 12万円 | Key money 礼金 | | ¥ 100,000 10万円 | Security deposit 敷金 | | 150,000 yen 15万円 | Floor plan 間取り | | 3LDK 3LDK | Occupied area 専有面積 | | 80.88 sq m 80.88m2 | Direction 向き | | East 東 | Type 種別 | | Residential home 一戸建て | Year Built 築年 | | Built 23 years 築23年 | | Momoyama PanaHome rental 桃山パナホーム貸家 |
| Pretty high ・ Grade is! かなりハイ・グレードです! |
| It is the construction of a major house builders. 大手ハウスメーカーの施工です。 |
| Bus toilet by, balcony, Gas stove correspondence, Flooring, Washbasin with shower, TV interphone, Indoor laundry location, System kitchen, Warm water washing toilet seat, Seperate, Bicycle-parking space, closet, Immediate Available, 3-neck over stove, Pets Negotiable, bay window, 3 station more accessible, LDK12 tatami mats or moreese-style room, City gas バストイレ別、バルコニー、ガスコンロ対応、フローリング、シャワー付洗面台、TVインターホン、室内洗濯置、システムキッチン、温水洗浄便座、洗面所独立、駐輪場、押入、即入居可、3口以上コンロ、ペット相談、出窓、3駅以上利用可、LDK12畳以上、和室、都市ガス |
Property name 物件名 | | Rental housing of Kyoto Fushimi-ku, Kyoto Momoyamachohyuga Rokujizo Station [Rental apartment ・ Apartment] information Property Details 京都府京都市伏見区桃山町日向 六地蔵駅の賃貸住宅[賃貸マンション・アパート]情報 物件詳細 | Transportation facilities 交通機関 | | Keihan Uji Line / Rokujizo walk 11 minutes JR Nara Line / Rokujizo walk 13 minutes Subway Tozai Line / Rokujizo walk 15 minutes 京阪宇治線/六地蔵 歩11分 JR奈良線/六地蔵 歩13分 地下鉄東西線/六地蔵 歩15分
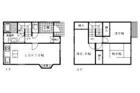
| Floor plan details 間取り詳細 | | Sum 6 Hiroshi 6.5 Hiroshi 5 LDK12 和6 洋6.5 洋5 LDK12 | Construction 構造 | | Light-gauge steel 軽量鉄骨 | Story 階建 | | 1st floor / 2-story 1階/2階建 | Built years 築年月 | | June 1991 1991年6月 | Nonlife insurance 損保 | | 16,000 yen two years 1.6万円2年 | Parking lot 駐車場 | | Free with 付無料 | Move-in 入居 | | Immediately 即 | Trade aspect 取引態様 | | Mediation 仲介 | Conditions 条件 | | Corporation hope / Pets Negotiable 法人希望/ペット相談 | Property code 取り扱い店舗物件コード | | K13555-N K13555-N | Total units 総戸数 | | 1 units 1戸 | Guarantor agency 保証人代行 | | Japan safety use 必 first 48,000 yen update when 10,000 yen / 1 year 日本セーフティー利用必 初回4.8万円 更新時1万円/1年 | Remarks 備考 | | Keihan Uji Line Momoyama south exit Station walk 17 minutes 京阪宇治線桃山南口駅徒歩17分 | Area information 周辺情報 | | Rokujizo Station 166m to (other) up to 880m Rokujizo Station (other) up to 1040m Rokujizo Station (other) up to 1163m Momoyama south exit station (other) up to 1285m Fushimimomoyama Nishio post office (post office) to 141m Yamauchi clinic (hospital) 六地蔵駅(その他)まで880m六地蔵駅(その他)まで1040m六地蔵駅(その他)まで1163m桃山南口駅(その他)まで1285m伏見桃山西尾郵便局(郵便局)まで141m山内医院(病院)まで166m |
Building appearance建物外観 
Living and room居室・リビング 
 Large living is bright!
広いリビングは明るいですよ!
 It seems to send a graceful life
優雅な生活が送れそうですね
 It is cute even with bay window
出窓も付いてかわいいですね
 Or life Can you imagine?
生活が想像できますか?
Kitchenキッチン  Hakadori also cuisine in wall-to-wall kitchen
壁一面キッチンで料理もはかどります
Bathバス  There bathroom drying
浴室乾燥ありますよ
Toiletトイレ  With Washlet ・
ウォシュレット付き・
Receipt収納  There is also under-floor storage
床下収納もあります
Washroom洗面所  Convenient spacious washroom
ゆったりとした洗面所が便利
Other Equipmentその他設備  It is a shampoo dresser is happy
シャンプードレッサーが嬉しいですね
 Washing machine storage is also wide
洗濯機置き場も広いですよ
Otherその他  880m until Rokujizo Station (Other)
六地蔵駅(その他)まで880m
 1040m to Rokujizo Station (Other)
六地蔵駅(その他)まで1040m
 1163m to Rokujizo Station (Other)
六地蔵駅(その他)まで1163m
 1285m until the Momoyama South Exit Station (Other)
桃山南口駅(その他)まで1285m
Location
|