Rentals » Kansai » Kyoto » Fushimi-ku
 
| Railroad-station 沿線・駅 | | Kintetsu Kyoto Line / Takeda 近鉄京都線/竹田 | Address 住所 | | Kyoto Fushimi-ku, Kyoto Fukakusakokubo cho 京都府京都市伏見区深草小久保町 | Walk 徒歩 | | 9 minutes 9分 | Rent 賃料 | | 42,000 yen 4.2万円 | Key money 礼金 | | 50,000 yen 5万円 | Security deposit 敷金 | | ¥ 100,000 10万円 | Floor plan 間取り | | 2DK 2DK | Occupied area 専有面積 | | 29 sq m 29m2 | Direction 向き | | East 東 | Type 種別 | | Mansion マンション | Year Built 築年 | | Built 39 years 築39年 | | Mansion Towa マンション藤和 |
| Large supermarket near ・ 大型スーパー近く・ |
| Big supermarket ・ Easy near convenience store every day of life ・ 大型スーパー・コンビニ近くで毎日の生活が楽々・ |
| Bus toilet by, balcony, Gas stove correspondence, Flooring, Seperate, Bicycle-parking space, closet, CATV, Immediate Available, Pets Negotiable, CATV Internet, 3 station more accessible, Within a 10-minute walk stationese-style room, City gas, High speed Internet correspondence バストイレ別、バルコニー、ガスコンロ対応、フローリング、洗面所独立、駐輪場、押入、CATV、即入居可、ペット相談、CATVインターネット、3駅以上利用可、駅徒歩10分以内、和室、都市ガス、高速ネット対応 |
Property name 物件名 | | Rental housing of Kyoto, Kyoto Prefecture Fushimi-ku, Fukakusakokubo cho Takeda Station [Rental apartment ・ Apartment] information Property Details 京都府京都市伏見区深草小久保町 竹田駅の賃貸住宅[賃貸マンション・アパート]情報 物件詳細 | Transportation facilities 交通機関 | | Kintetsu Kyoto Line / Ayumi Takeda 9 minutes Subway Karasuma / Ayumi Takeda 9 minutes Kintetsu Kyoto Line / Ayumi Fushimi 10 minutes 近鉄京都線/竹田 歩9分 地下鉄烏丸線/竹田 歩9分 近鉄京都線/伏見 歩10分
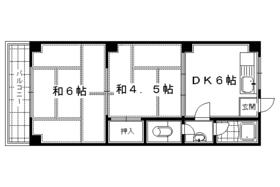
| Floor plan details 間取り詳細 | | Sum 6 sum 4.5 DK4.5 和6 和4.5 DK4.5 | Construction 構造 | | Steel frame 鉄骨 | Story 階建 | | 1st floor / 4-story 1階/4階建 | Built years 築年月 | | May 1975 1975年5月 | Nonlife insurance 損保 | | 15,000 yen two years 1.5万円2年 | Move-in 入居 | | Immediately 即 | Trade aspect 取引態様 | | Mediation 仲介 | Conditions 条件 | | Pets Negotiable ペット相談 | Property code 取り扱い店舗物件コード | | K46348-105 K46348-105 | Total units 総戸数 | | 20 units 20戸 | Remarks 備考 | | Keihan Sumizome Station 15-minute walk 京阪本線墨染駅徒歩15分 | Area information 周辺情報 | | Kyoto Kokubo 142m Circle K Takedananasegawa store to the post office (post office) (Other) up to 302m Izumiya Fushimi store up to 300m Kyoto Chuo Shinkin Bank Takeda South Branch (Bank) (super) up to 452m Seibojogakuintankidaigaku Kyoto (University ・ Junior college) until 1548m Kyoto University of Education (University of ・ 1560m up to junior college) 京都小久保郵便局(郵便局)まで142mサークルK竹田七瀬川店(その他)まで300m京都中央信用金庫 竹田南支店(銀行)まで302mイズミヤ 伏見店(スーパー)まで452m京都聖母女学院短期大学(大学・短大)まで1548m京都教育大学(大学・短大)まで1560m |
Building appearance建物外観 
Living and room居室・リビング 
 6 is a Pledge of Japanese-style room.
6帖の和室です。
 6 Pledge of is DK.
6帖のDKです。
 4.5 is the Pledge of Japanese-style room.
4.5帖の和室です。
 Beautiful rooms.
きれいなお部屋です。
Kitchenキッチン  Beautiful kitchen.
きれいなキッチンです。
Bathバス  It is a simple bathroom.
シンプルな浴室です。
Toiletトイレ  It is a toilet with a clean.
清潔感のあるトイレです。
Receipt収納  Is a Japanese-style room of storage.
和室の収納です。
 It is housed under the kitchen.
キッチン下の収納です。
Balconyバルコニー  East-facing balcony.
東向きのバルコニーです。
Entrance玄関  A beautiful entrance.
きれいな玄関です。
Supermarketスーパー  Izumiya Fushimi store up to (super) 452m
イズミヤ 伏見店(スーパー)まで452m
Post office郵便局  142m to Kyoto Kokubo post office (post office)
京都小久保郵便局(郵便局)まで142m
Bank銀行  302m up to Kyoto Chuo Shinkin Bank Takeda South Branch (Bank)
京都中央信用金庫 竹田南支店(銀行)まで302m
University ・ Junior college大学・短大  Seibo Jogakuin Junior College (University of ・ 1548m up to junior college)
京都聖母女学院短期大学(大学・短大)まで1548m
 Kyoto University of Education (University of ・ 1560m up to junior college)
京都教育大学(大学・短大)まで1560m
Otherその他  300m to the Circle K store Takedananasegawa (Other)
サークルK竹田七瀬川店(その他)まで300m
Location
|