Rentals » Kansai » Kyoto » Fushimi-ku


Maison Sumizome
Fujimori Elementary School District
Fujimori is a small school district. We have room to clean renovated.
Bus toilet by, balcony, Gas stove correspondence, Flooring, Washbasin with shower, Indoor laundry location, System kitchen, Facing south, Elevator, Seperate, Bicycle-parking space, closet, CATV, Immediate Available, 3-neck over stove, Deposit 1 month, CATV Internet, Bike shelter, 3 station more accessible, Within a 5-minute walk stationese-style room, City gas, BS, High speed Internet correspondence, Key money two months
Railroad-station
Keihan / Sumizome
Address
Kyoto Fushimi-ku, Kyoto Fukakusaminamihasuike cho
Walk
5 minutes
Rent
82,000 yen
Management expenses
8000 yen
Key money
164,000 yen
Security deposit
82,000 yen
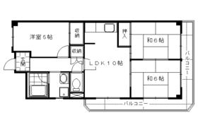
Floor plan
3LDK
Occupied area
64.54 sq m
Direction
South
Type
Mansion
Year Built
Built 33 years
Property name
Rental housing of Kyoto, Kyoto Prefecture Fushimi-ku, Fukakusaminamihasuike cho Sumizome Station [Rental apartment ・ Apartment] information Property Details
Transportation facilities
Keihan / Sumizome walk 5 minutes
JR Nara Line / JR Ayumi Fujimori 11 minutes
Keihan / Ayumi Fujimori 12 minutes
Floor plan details
Sum 6 sum 6 Hiroshi 5 LDK10
Construction
Rebar Con
Story
5th floor / 6-story
Built years
May 1981
Nonlife insurance
21,000 yen two years
Parking lot
Site 10000 yen
Move-in
Immediately
Trade aspect
Mediation
Property code
K13403-507
Total units
48 units
Balcony area
6.1 sq m
Guarantor agency
Zenhoren use 必 first 72,000 yen
Other expenses
Water bill 3000 yen
Remarks
Kintetsu Kyoto Line Fushimi Station 14 mins
Area information
Kyoto University of Education (University of ・ Junior college) to 510m Seibojogakuintankidaigaku Kyoto (University ・ Junior college) until 1100m Ryukoku University (Fukakusa) (University of ・ Junior college) until 1590m Sumizome Station (other) until 400mJR Fujimori Station (other) up to 860m Fujimori Station (other) up to 900m


Building appearance

Building appearance

Living and room

Living and room
Living and room
Living and room
Living and room
Living and room
Living and room

Kitchen

Kitchen
Kitchen

Bath

Bath

Toilet

Toilet

Washroom

Washroom
Washroom

University ・ Junior college

University ・ Junior college. Kyoto University of Education (University of ・ 510m up to junior college)
Kyoto University of Education (University of ・ 510m up to junior college)

University ・ Junior college. Seibo Jogakuin Junior College (University of ・ 1100m up to junior college)
Seibo Jogakuin Junior College (University of ・ 1100m up to junior college)

University ・ Junior college. Ryukoku University (Fukakusa) (University of ・ 1590m up to junior college)
Ryukoku University (Fukakusa) (University of ・ 1590m up to junior college)

Other

Other. 400m until Sumizome Station (Other)
400m until Sumizome Station (Other)

Other. 860m until JR Fujimori Station (Other)
860m until JR Fujimori Station (Other)

Other. 900m until Fujimori Station (Other)
900m until Fujimori Station (Other)



Location