Rentals » Kansai » Kyoto » Fushimi-ku
 
| Railroad-station 沿線・駅 | | Kintetsu Kyoto Line / Mukojima 近鉄京都線/向島 | Address 住所 | | Kyoto Fushimi-ku, Kyoto Mukaijimatsuda cho 京都府京都市伏見区向島津田町 | Walk 徒歩 | | 8 minutes 8分 | Rent 賃料 | | 77,000 yen 7.7万円 | Management expenses 管理費・共益費 | | 10000 yen 10000円 | Key money 礼金 | | 150,000 yen 15万円 | Floor plan 間取り | | 3LDK 3LDK | Occupied area 専有面積 | | 66.35 sq m 66.35m2 | Direction 向き | | South 南 | Type 種別 | | Mansion マンション | Year Built 築年 | | Built 19 years 築19年 | | AZ House AZハウス |
| Korezo fortress of Mukojima. これぞ向島の要塞。 |
| Is a high-grade apartments towering in Mukojima. 向島に聳え立つハイグレード賃貸マンションです。 |
| Bus toilet by, balcony, Air conditioning, Gas stove correspondence, Washbasin with shower, Bathroom Dryer, auto lock, Indoor laundry location, System kitchen, Facing south, Warm water washing toilet seat, Elevator, Bicycle-parking space, CATV, Optical fiber, Immediate Available, Deposit required, 3-neck over stove, Face-to-face kitchen, surveillance camera, CATV Internet, Two tenants consultation, Bike shelter, High temperature difference between hot water formula, 3 station more accessible, Within a 10-minute walk station, Our managed properties, LDK12 tatami mats or moreese-style room, City gas, BS, High speed Internet correspondence バストイレ別、バルコニー、エアコン、ガスコンロ対応、シャワー付洗面台、浴室乾燥機、オートロック、室内洗濯置、システムキッチン、南向き、温水洗浄便座、エレベーター、駐輪場、CATV、光ファイバー、即入居可、敷金不要、3口以上コンロ、対面式キッチン、防犯カメラ、CATVインターネット、二人入居相談、バイク置場、高温差湯式、3駅以上利用可、駅徒歩10分以内、当社管理物件、LDK12畳以上、和室、都市ガス、BS、高速ネット対応 |
Property name 物件名 | | Rental housing of Kyoto, Kyoto Prefecture Fushimi-ku, Mukaijimatsuda cho Mukojima Station [Rental apartment ・ Apartment] information Property Details 京都府京都市伏見区向島津田町 向島駅の賃貸住宅[賃貸マンション・アパート]情報 物件詳細 | Transportation facilities 交通機関 | | Kintetsu Kyoto Line / Mukojima walk 8 minutes Keihan Uji Line / Around Kangetsukyo step 19 minutes Keihan / Chushojima step 26 minutes 近鉄京都線/向島 歩8分 京阪宇治線/観月橋 歩19分 京阪本線/中書島 歩26分
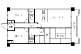
| Floor plan details 間取り詳細 | | Sum 6 Hiroshi 5.5 Hiroshi 5.5 LDK12.9 和6 洋5.5 洋5.5 LDK12.9 | Construction 構造 | | Rebar Con 鉄筋コン | Story 階建 | | 4th floor / 5-story 4階/5階建 | Built years 築年月 | | December 1995 1995年12月 | Nonlife insurance 損保 | | 20,100 yen two years 2.01万円2年 | Parking lot 駐車場 | | On-site 2000 yen 敷地内2000円 | Move-in 入居 | | Immediately 即 | Trade aspect 取引態様 | | Mediation 仲介 | Conditions 条件 | | Children Allowed 子供可 | Property code 取り扱い店舗物件コード | | W03711-405 W03711-405 | Total units 総戸数 | | 58 units 58戸 | Area information 周辺情報 | | Mukaijima Station (other) up to 640m Kangetsukyō Station 2018m until the (other) up to 1520m Chūshojima Station (Other) 向島駅(その他)まで640m観月橋駅(その他)まで1520m中書島駅(その他)まで2018m |
Building appearance建物外観 
Living and room居室・リビング 




Kitchenキッチン 

Bathバス 
Toiletトイレ 
Receipt収納 
Washroom洗面所 
Entrance玄関 
Otherその他  640m until Mukaijima Station (Other)
向島駅(その他)まで640m
 1520m to Kangetsukyō Station (Other)
観月橋駅(その他)まで1520m
 2018m to Chūshojima Station (Other)
中書島駅(その他)まで2018m
Location
|