Rentals » Kansai » Kyoto » Fushimi-ku
 
| Railroad-station 沿線・駅 | | Keihan / Fukakusa 京阪本線/深草 | Address 住所 | | Kyoto Fushimi-ku, Kyoto Fukakusanishiura cho 7 京都府京都市伏見区深草西浦町7 | Walk 徒歩 | | 9 minutes 9分 | Rent 賃料 | | 68,000 yen 6.8万円 | Key money 礼金 | | 136,000 yen 13.6万円 | Security deposit 敷金 | | 68,000 yen 6.8万円 | Floor plan 間取り | | 2DK 2DK | Occupied area 専有面積 | | 67 sq m 67m2 | Direction 向き | | South 南 | Type 種別 | | Mansion マンション | Year Built 築年 | | Built 26 years 築26年 | | Forest Fukakusa フォレスト深草 |
| Lighting is perfect rooms. 採光ばっちりのお部屋です。 |
| The south side, Since it is a parking lot, Lighting is perfect. 8 pledge sum is very wide. Contact us, we have to wait until "Kyoto life Fushimi store" of local contact. 南側が、駐車場ですので、採光はばっちりです。和8帖はとっても広ですよ。お問い合わせは地元密着の「京都ライフ伏見店」までお待ちしております。 |
| Bus toilet by, balcony, Air conditioning, Gas stove correspondence, Flooring, auto lock, Indoor laundry location, System kitchen, Facing south, Bicycle-parking space, closet, Immediate Available, Deposit 1 month, Bike shelter, garden, 3 station more accessible, Within a 10-minute walk stationese-style roomese-style room 8 tatami mats or more, All room 6 tatami mats or more, City gas, Key money two months バストイレ別、バルコニー、エアコン、ガスコンロ対応、フローリング、オートロック、室内洗濯置、システムキッチン、南向き、駐輪場、押入、即入居可、敷金1ヶ月、バイク置場、庭、3駅以上利用可、駅徒歩10分以内、和室、和室8畳以上、全居室6畳以上、都市ガス、礼金2ヶ月 |
Property name 物件名 | | Rental housing of Kyoto, Kyoto Prefecture Fushimi-ku, Fukakusanishiura-cho, 7 fukakusa station [Rental apartment ・ Apartment] information Property Details 京都府京都市伏見区深草西浦町7 深草駅の賃貸住宅[賃貸マンション・アパート]情報 物件詳細 | Transportation facilities 交通機関 | | Keihan / Ayumi Fukakusa 9 minutes Keihan / Ayumi Fujimori 10 minutes Subway Karasuma / Ayumi Takeda 11 minutes 京阪本線/深草 歩9分 京阪本線/藤森 歩10分 地下鉄烏丸線/竹田 歩11分
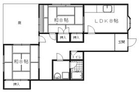
| Floor plan details 間取り詳細 | | Sum 8 sum 6 DK8 和8 和6 DK8 | Construction 構造 | | Steel frame 鉄骨 | Story 階建 | | 1st floor / 4-story 1階/4階建 | Built years 築年月 | | November 1988 1988年11月 | Nonlife insurance 損保 | | 18,000 yen two years 1.8万円2年 | Move-in 入居 | | Immediately 即 | Trade aspect 取引態様 | | Mediation 仲介 | Property code 取り扱い店舗物件コード | | K02788-100 K02788-100 | Total units 総戸数 | | 25 units 25戸 | Remarks 備考 | | Kintetsu Kyoto Line Takeda Station walk 11 minutes 近鉄京都線竹田駅徒歩11分 | Area information 周辺情報 | | Ryukoku University (Fukakusa) (University of ・ Junior college) to 545m Seibojogakuintankidaigaku Kyoto (University ・ Junior college) to 785m Kyoto University of Education (University of ・ Junior college) until 1600m fukakusa station (other) up to 720m Fujimori Station (other) up to 800m Takeda Station (other) up to 880m 龍谷大学(深草)(大学・短大)まで545m京都聖母女学院短期大学(大学・短大)まで785m京都教育大学(大学・短大)まで1600m深草駅(その他)まで720m藤森駅(その他)まで800m竹田駅(その他)まで880m |
Building appearance建物外観 
Living and room居室・リビング 







Kitchenキッチン 
Bathバス 
Toiletトイレ 
Washroom洗面所 
University ・ Junior college大学・短大  Ryukoku University (Fukakusa) (University of ・ 545m up to junior college)
龍谷大学(深草)(大学・短大)まで545m
 Seibo Jogakuin Junior College (University of ・ 785m up to junior college)
京都聖母女学院短期大学(大学・短大)まで785m
 Kyoto University of Education (University of ・ 1600m up to junior college)
京都教育大学(大学・短大)まで1600m
Otherその他  720m until fukakusa station (Other)
深草駅(その他)まで720m
 800m until Fujimori Station (Other)
藤森駅(その他)まで800m
 880m to Takeda Station (Other)
竹田駅(その他)まで880m
Location
|