Rentals » Kansai » Kyoto » Fushimi-ku


Tamai Mr. rental
Is the rental of perfect to live in two people.
Bus toilet by, balcony, Gas stove correspondence, Seperate, Bicycle-parking space, closet, Immediate Available, top floor, With lighting, Sale rent, Two tenants consultation, 3 station more accessible, No upper floorese-style room, City gas
Railroad-station
Keihan Uji Line / Around Kangetsukyo
Address
Kyoto Fushimi-ku, Kyoto Mukaijimatachikawara cho
Walk
12 minutes
Rent
50,000 yen
Key money
50,000 yen
Security deposit
¥ 100,000
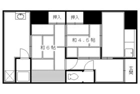
Floor plan
2K
Occupied area
35 sq m
Direction
North
Type
terrace ・ Townhouse
Year Built
Built 47 years
Property name
Rental housing of Kyoto, Kyoto Prefecture Fushimi-ku, Mukaijimatachikawara cho Kangetsukyō Station [Rental apartment ・ Apartment] information Property Details
Transportation facilities
Keihan Uji Line / Around Kangetsukyo step 12 minutes
JR Nara Line / Momoyama walk 20 minutes
Kintetsu Kyoto Line / Mukojima walk 22 minutes
Floor plan details
Sum 6 sum 4.5 K4
Construction
Wooden
Story
Bungalow
Built years
August 1967
Nonlife insurance
20,000 yen two years
Move-in
Immediately
Trade aspect
Mediation
Conditions
Two people Available / Children Allowed
Property code
K14161-NxExx5xx
Total units
1 units
Guarantor agency
Japan safety use 必 first 28,000 yen update when 10,000 yen / 1 year
Remarks
Kintetsu Kyoto Line Momoyamagoryō-mae Station walk 22 minutes / Parking nearby secure 8000 yen
Area information
Kangetsukyō Station (other) up to 924m Momoyama Station 191m to (other) up to 1596m Mukaijima Station (other) up to 1696m Momoyamagoryō-mae Station (other) up to 1720m Oikawa dental clinic (hospital) to 55m Fresco Mukojima store (Super)


Building appearance

Building appearance

Living and room

Living and room
Living and room. It is a beautiful Japanese-style room.
It is a beautiful Japanese-style room.

Living and room. 6 is a tatami mat Japanese-style room.
6 is a tatami mat Japanese-style room.

Living and room. It is spacious.
It is spacious.

Kitchen

Kitchen. It is a large kitchen.
It is a large kitchen.

Kitchen. It is spread in the kitchen.
It is spread in the kitchen.

Bath

Bath. You tired loose.
You tired loose.

Bath. There is also a bath.
There is also a bath.

Receipt

Receipt. Is a Japanese-style room of storage.
Is a Japanese-style room of storage.

Washroom

Washroom. Independence is a wash basin.
Independence is a wash basin.

Washroom. Independence is a wash basin.
Independence is a wash basin.

Entrance

Entrance. Is the entrance and the corridor.
Is the entrance and the corridor.

Other

Other. 924m until Kangetsukyō Station (Other)
924m until Kangetsukyō Station (Other)

Other. 1596m until the Momoyama Station (Other)
1596m until the Momoyama Station (Other)

Other. 1696m to Mukaijima Station (Other)
1696m to Mukaijima Station (Other)

Other. 1720m to Momoyamagoryō-mae Station (Other)
1720m to Momoyamagoryō-mae Station (Other)



Location