1973July
42,000 yen, 2K, 1st floor / 2-story, 29 sq m
Rentals » Kansai » Kyoto » Fushimi-ku
 
| Railroad-station 沿線・駅 | | Keihan / Sumizome 京阪本線/墨染 | Address 住所 | | Kyoto Fushimi-ku, Kyoto Momoyamamizunosakonhigashi cho 京都府京都市伏見区桃山水野左近東町 | Walk 徒歩 | | 9 minutes 9分 | Rent 賃料 | | 42,000 yen 4.2万円 | Management expenses 管理費・共益費 | | 1000 yen 1000円 | Depreciation and amortization 敷引・償却金 | | 36,800 yen 3.68万円 | Security deposit 敷金 | | 200,000 yen 20万円 | Floor plan 間取り | | 2K 2K | Occupied area 専有面積 | | 29 sq m 29m2 | Direction 向き | | South 南 | Type 種別 | | Apartment アパート | Year Built 築年 | | Built 41 years 築41年 | | Second New Glynn House cedar 第二ニューグリンハウス杉 |
| Bus toilet by, Facing south, Corner dwelling unit, Bicycle-parking space, closet, Immediate Available, Key money unnecessary, garden, 3 station more accessible, Within a 10-minute walk stationese-style room, City gas バストイレ別、南向き、角住戸、駐輪場、押入、即入居可、礼金不要、庭、3駅以上利用可、駅徒歩10分以内、和室、都市ガス |
Property name 物件名 | | Rental housing of Kyoto, Kyoto Prefecture Fushimi-ku, Momoyamamizunosakonhigashi cho Sumizome Station [Rental apartment ・ Apartment] information Property Details 京都府京都市伏見区桃山水野左近東町 墨染駅の賃貸住宅[賃貸マンション・アパート]情報 物件詳細 | Transportation facilities 交通機関 | | Keihan / Sumizome walk 9 minutes Keihan / Tanbabashi walk 10 minutes Kintetsu Kyoto Line / Kintetsu Tanbabashi walk 10 minutes 京阪本線/墨染 歩9分 京阪本線/丹波橋 歩10分 近鉄京都線/近鉄丹波橋 歩10分
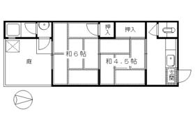
| Floor plan details 間取り詳細 | | Sum 6 sum 4.5 K2 和6 和4.5 K2 | Construction 構造 | | Wooden 木造 | Story 階建 | | 1st floor / 2-story 1階/2階建 | Built years 築年月 | | July 1973 1973年7月 | Nonlife insurance 損保 | | The main 要 | Parking lot 駐車場 | | On-site 8000 yen 敷地内8000円 | Move-in 入居 | | Immediately 即 | Trade aspect 取引態様 | | Mediation 仲介 | Property code 取り扱い店舗物件コード | | K14236-1-1 K14236-1-1 | Total units 総戸数 | | 8 units 8戸 | Remarks 備考 | | JR Nara Line JR Fujimori Station 12 minutes' walk / Patrol management JR奈良線JR藤森駅徒歩12分/巡回管理 | Area information 周辺情報 | | Momoyama 1862m until junior high school (junior high school) up to 200m Circle K Fushimi Tsuchibashi the town store (convenience store) up to 662m Izumiya Fushimi shop 840m until the (super) Momoyama elementary school (elementary school) 1410m National Hospital Organization Kyoto Medical Center until the (hospital) Kyoto University of Education (University of ・ 687m up to junior college) 桃山中学校(中学校)まで200mサークルK伏見津知橋町店(コンビニ)まで662mイズミヤ 伏見店(スーパー)まで840m桃山小学校(小学校)まで1410m国立病院機構 京都医療センター(病院)まで1862m京都教育大学(大学・短大)まで687m |
Building appearance建物外観 
Supermarketスーパー 
 Izumiya Fushimi store up to (super) 840m
イズミヤ 伏見店(スーパー)まで840m
Convenience storeコンビニ  Circle K Fushimi Tsuchibashi the town store (convenience store) to 662m
サークルK伏見津知橋町店(コンビニ)まで662m
Junior high school中学校  Momoyama 200m until junior high school (junior high school)
桃山中学校(中学校)まで200m
Primary school小学校  Momoyama to elementary school (elementary school) 1410m
桃山小学校(小学校)まで1410m
Hospital病院  National Hospital Organization 1862m to Kyoto Medical Center (hospital)
国立病院機構 京都医療センター(病院)まで1862m
University ・ Junior college大学・短大  Kyoto University of Education (University of ・ 687m up to junior college)
京都教育大学(大学・短大)まで687m
Location
|