Rentals » Kansai » Kyoto » Fushimi-ku
 
| Railroad-station 沿線・駅 | | JR Tokaido Line / Muko-cho JR東海道本線/向日町 | Address 住所 | | Kyoto Fushimi-ku, Kyoto Kogaishihara cho 京都府京都市伏見区久我石原町 | Walk 徒歩 | | 36 minutes 36分 | Rent 賃料 | | 75,000 yen 7.5万円 | Management expenses 管理費・共益費 | | 5000 Yen 5000円 | Security deposit 敷金 | | ¥ 100,000 10万円 | Floor plan 間取り | | 2LDK 2LDK | Occupied area 専有面積 | | 64.3 sq m 64.3m2 | Direction 向き | | North 北 | Type 種別 | | Apartment アパート | Year Built 築年 | | Built 10 years 築10年 | | Fragrance Kuga フレイグランス久我 |
| Fashionable property! オシャレ物件! |
| System kitchen, Independent wash basin, Parking available, auto lock システムキッチン、独立洗面台、駐車場あり、オートロック |
| Bus toilet by, balcony, Gas stove correspondence, Flooring, Washbasin with shower, auto lock, Indoor laundry location, System kitchen, Add-fired function bathroom, Corner dwelling unit, Warm water washing toilet seat, Seperate, Bicycle-parking space, closet, Optical fiber, Immediate Available, Key money unnecessary, top floor, 3-neck over stove, Face-to-face kitchen, All room Western-style, Two tenants consultation, Bike shelter, LDK15 tatami mats or more, 3 station more accessible, No upper floor, All room 6 tatami mats or more, propane gas, BS バストイレ別、バルコニー、ガスコンロ対応、フローリング、シャワー付洗面台、オートロック、室内洗濯置、システムキッチン、追焚機能浴室、角住戸、温水洗浄便座、洗面所独立、駐輪場、押入、光ファイバー、即入居可、礼金不要、最上階、3口以上コンロ、対面式キッチン、全居室洋室、二人入居相談、バイク置場、LDK15畳以上、3駅以上利用可、上階無し、全居室6畳以上、プロパンガス、BS |
Property name 物件名 | | Rental housing of Kyoto, Kyoto Prefecture Fushimi-ku, Kogaishihara cho Mukōmachi Station [Rental apartment ・ Apartment] information Property Details 京都府京都市伏見区久我石原町 向日町駅の賃貸住宅[賃貸マンション・アパート]情報 物件詳細 | Transportation facilities 交通機関 | | JR Tokaido Line / Muko-cho, walking 36 minutes Hankyu Kyoto Line / Higashimuko step 38 minutes JR Tokaido Line / Nagaokakyo walk 69 minutes JR東海道本線/向日町 歩36分 阪急京都線/東向日 歩38分 JR東海道本線/長岡京 歩69分
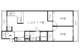
| Floor plan details 間取り詳細 | | Hiroshi 6 Hiroshi 6 LDK17 洋6 洋6 LDK17 | Construction 構造 | | Wooden 木造 | Story 階建 | | Second floor / 2-story 2階/2階建 | Built years 築年月 | | November 2004 2004年11月 | Nonlife insurance 損保 | | The main 要 | Parking lot 駐車場 | | On-site 8640 yen 敷地内8640円 | Move-in 入居 | | Immediately 即 | Trade aspect 取引態様 | | Mediation 仲介 | Conditions 条件 | | Two people Available / Children Allowed 二人入居可/子供可 | Property code 取り扱い店舗物件コード | | K19640-205 K19640-205 | Total units 総戸数 | | 8 units 8戸 | Other expenses ほか諸費用 | | Water bill 2000 yen 水道代2000円 | Remarks 備考 | | Kyoto City bus Mitsubishi wife God Yashiromae Station 4-minute walk 京都市バス菱妻神社前駅徒歩4分 | Area information 周辺情報 | | Circle K Kogaishihara store (convenience store) up to 800m Kamikawa elementary school (elementary school) up to 1100m Namco Wonder City (other) up to 1350m drag Yutaka Muko forest head office (drugstore) to 1350m Mukōmachi Station (other) up to 2850m Higashi-Mukō Station (Other サークルK久我石原店(コンビニ)まで800m神川小学校(小学校)まで1100mナムコワンダーシティ(その他)まで1350mドラッグユタカ 向日森本店(ドラッグストア)まで1350m向日町駅(その他)まで2850m東向日駅(その他)まで3000m |
Building appearance建物外観 



Securityセキュリティ 
Entranceエントランス 
Parking lot駐車場 
Other common areasその他共有部分 

Convenience storeコンビニ  800m to Circle K Kogaishihara store (convenience store)
サークルK久我石原店(コンビニ)まで800m
Dorakkusutoaドラックストア  Drag Yutaka Muko forest head office 1350m until (drugstore)
ドラッグユタカ 向日森本店(ドラッグストア)まで1350m
Primary school小学校  Kamikawa up to elementary school (elementary school) 1100m
神川小学校(小学校)まで1100m
Otherその他  Namco Wonder City (other) up to 1350m
ナムコワンダーシティ(その他)まで1350m
 Mukōmachi Station to (other) 2850m
向日町駅(その他)まで2850m
 3000m to Higashi-Mukō Station (Other)
東向日駅(その他)まで3000m
Location
|