Rentals » Kansai » Kyoto » Fushimi-ku
 
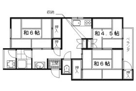
| Railroad-station 沿線・駅 | | Keihan / Still water 京阪本線/淀 | Address 住所 | | Kyoto Fushimi-ku, Kyoto Nassho cho 京都府京都市伏見区納所町 | Walk 徒歩 | | 6 minutes 6分 | Rent 賃料 | | 58,000 yen 5.8万円 | Management expenses 管理費・共益費 | | 1500yen 1500円 | Depreciation and amortization 敷引・償却金 | | ¥ 100,000 10万円 | Deposit 保証金 | | 150,000 yen 15万円 | Floor plan 間取り | | 3DK 3DK | Occupied area 専有面積 | | 46.1 sq m 46.1m2 | Direction 向き | | South 南 | Type 種別 | | Mansion マンション | Year Built 築年 | | Built 47 years 築47年 | | Dian estates second housing 淀団地第二住宅 |
| Bus toilet by, balcony, Air conditioning, Gas stove correspondence, Facing south, Seperate, Bicycle-parking space, closet, CATV, Immediate Available, Key money unnecessary, Deposit required, Sale rent, CATV Internet, Bike shelter, Within a 10-minute walk station, Within a 3-minute bus stop walkese-style room, City gas, High speed Internet correspondence バストイレ別、バルコニー、エアコン、ガスコンロ対応、南向き、洗面所独立、駐輪場、押入、CATV、即入居可、礼金不要、敷金不要、分譲賃貸、CATVインターネット、バイク置場、駅徒歩10分以内、バス停徒歩3分以内、和室、都市ガス、高速ネット対応 |
Property name 物件名 | | Rental housing of Kyoto, Kyoto Prefecture Fushimi-ku, Nassho cho Dian Station [Rental apartment ・ Apartment] information Property Details 京都府京都市伏見区納所町 淀駅の賃貸住宅[賃貸マンション・アパート]情報 物件詳細 | Transportation facilities 交通機関 | | Keihan / Dian walk 6 minutes Kyoto City bus / Dian walk 2 minutes 京阪本線/淀 歩6分 京都市バス/淀 歩2分 | Floor plan details 間取り詳細 | | Sum 6 sum 6 sum 4.5 DK4.5 和6 和6 和4.5 DK4.5 | Construction 構造 | | Rebar Con 鉄筋コン | Story 階建 | | 3rd floor / 4-story 3階/4階建 | Built years 築年月 | | June 1967 1967年6月 | Nonlife insurance 損保 | | 15,000 yen two years 1.5万円2年 | Parking lot 駐車場 | | On-site 5000 yen 敷地内5000円 | Move-in 入居 | | Immediately 即 | Trade aspect 取引態様 | | Mediation 仲介 | Property code 取り扱い店舗物件コード | | K46475-3-313 K46475-3-313 | Total units 総戸数 | | 48 units 48戸 | Area information 周辺情報 | | Dian Station (other) up to 412m Nassho Jonouchi nursery school (kindergarten ・ Nursery school) to 102m supermarket Tsuji Tomi Dian shop (262m up to supercomputers) to 199m Sunkus Kyoto Keibajomae store (convenience store) 202m Kyoto Chuo Shinkin Bank Haidian Branch (Bank) up to 216m Seven-Eleven Kyoto Keibajomae store (convenience store) 淀駅(その他)まで412m納所城之内保育所(幼稚園・保育園)まで102mスーパーマーケットツジトミ淀店(スーパー)まで199mサンクス 京都競馬場前店(コンビニ)まで202m京都中央信用金庫 淀支店(銀行)まで216mセブンイレブン 京都競馬場前店(コンビニ)まで262m |
Building appearance建物外観 
Living and room居室・リビング 
 6 Pledge of Western-style.
6帖の洋室です。
 Entrance is the front of the Western-style.
玄関前の洋室です。
 Versatile Western-style.
多目的な洋室です。
 6 Pledge of Western-style.
6帖の洋室です。
 It finished in the clean.
綺麗に仕上がっています。
Kitchenキッチン  It is a large kitchen.
大きめなキッチンです。
Bathバス  Also it comes with a shower.
シャワーも付いています。
Toiletトイレ  It is a Western-style toilet.
洋式のトイレです。
Receipt収納  It is housed.
収納です。
Washroom洗面所  Independence is a wash basin.
独立洗面台です。
Entrance玄関  It is entrance.
玄関です。
Otherその他  412m to Yodo Station (Other)
淀駅(その他)まで412m
Location
|