Rentals » Kansai » Kyoto » Fushimi-ku


Rene Fushimi east
Luxury condominium!
Sale is the emergence of the apartment than recommended Rokujizo area.
Bus toilet by, balcony, Gas stove correspondence, Indoor laundry location, Yang per good, Elevator, Seperate, Bicycle-parking space, closet, Immediate Available, Deposit required, Face-to-face kitchen, Sale rent, Two tenants consultation, 3 station more accessible, Within a 10-minute walk stationese-style room, City gas
Railroad-station
Subway Tozai Line / Ishida
Address
Kyoto Fushimi-ku, Kyoto Ishidaoyama cho
Walk
8 minutes
Rent
75,000 yen
Key money
150,000 yen
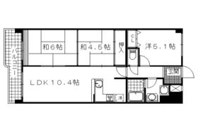
Floor plan
3LDK
Occupied area
62.16 sq m
Direction
East
Type
Mansion
Year Built
Built 25 years
Property name
Rental housing of Kyoto, Kyoto Prefecture Fushimi-ku, Ishidaoyama cho Ishida Station [Rental apartment ・ Apartment] information Property Details
Transportation facilities
Subway Tozai Line / Ayumi Ishida 8 minutes
Subway Tozai Line / Rokujizo walk 17 minutes
JR Nara Line / Rokujizo walk 17 minutes
Floor plan details
Sum 6 sum 4.5 Hiroshi 5.1 LDK10.4
Construction
Rebar Con
Story
6th floor / Underground 1 above ground 7 story
Built years
October 1989
Nonlife insurance
20,000 yen two years
Move-in
Immediately
Trade aspect
Mediation
Conditions
Two people Available / Children Allowed
Property code
K17383-605
Total units
125 units
Remarks
Keihan Uji Line Rokujizo Station walk 22 minutes
Area information
Kyoto Bunkyo Junior College (University of ・ Junior college) until 3400m Bunkyo University of Kyoto (University ・ Up to junior college) 3400m Kyoto Tachibana University (University ・ 3700m Rakuwakai Kyoto Welfare school to junior college) (Other) up to 6000m Kyoto Pharmaceutical University (University ・ Junior college) until 6000m Ishida Station to (other) 620m


Building appearance

Building appearance

Entrance

Entrance
Entrance

Parking lot

Parking lot
Parking lot

Other common areas

Other common areas
Other common areas
Other common areas
Other common areas

Other

Other

University ・ Junior college

University ・ Junior college. Kyoto Bunkyo Junior College (University of ・ 3400m up to junior college)
Kyoto Bunkyo Junior College (University of ・ 3400m up to junior college)

University ・ Junior college. Kyoto Tachibana University (University ・ 3700m up to junior college)
Kyoto Tachibana University (University ・ 3700m up to junior college)

University ・ Junior college. Kyoto Pharmaceutical University (University of ・ 6000m up to junior college)
Kyoto Pharmaceutical University (University of ・ 6000m up to junior college)

Other

Other. Rakuwakai Kyoto Welfare School (other) up to 6000m
Rakuwakai Kyoto Welfare School (other) up to 6000m

Other. 620m until Ishida Station (Other)
620m until Ishida Station (Other)



Location