1972August
50,000 yen, 3DK, 1st floor / 2-story, 50.08 sq m
Rentals » Kansai » Kyoto » Fushimi-ku
 
| Railroad-station 沿線・駅 | | Subway Tozai Line / Ishida 地下鉄東西線/石田 | Address 住所 | | Kyoto Fushimi-ku, Kyoto Daigosotoyamakaido cho 京都府京都市伏見区醍醐外山街道町 | Walk 徒歩 | | 14 minutes 14分 | Rent 賃料 | | 50,000 yen 5万円 | Key money 礼金 | | ¥ 100,000 10万円 | Security deposit 敷金 | | 50,000 yen 5万円 | Floor plan 間取り | | 3DK 3DK | Occupied area 専有面積 | | 50.08 sq m 50.08m2 | Direction 向き | | South 南 | Type 種別 | | Residential home 一戸建て | Year Built 築年 | | Built 42 years 築42年 | | Daigosotoyamakaido the town houses for rent 醍醐外山街道町貸家 |
| Bus toilet by, balcony, Gas stove correspondence, Yang per good, Facing south, Bicycle-parking space, closet, Immediate Available, 3 station more accessibleese-style room, All room 6 tatami mats or more, City gas バストイレ別、バルコニー、ガスコンロ対応、陽当り良好、南向き、駐輪場、押入、即入居可、3駅以上利用可、和室、全居室6畳以上、都市ガス |
Property name 物件名 | | Rental housing of Kyoto, Kyoto Prefecture Fushimi-ku, Daigosotoyamakaido cho Ishida Station [Rental apartment ・ Apartment] information Property Details 京都府京都市伏見区醍醐外山街道町 石田駅の賃貸住宅[賃貸マンション・アパート]情報 物件詳細 | Transportation facilities 交通機関 | | Subway Tozai Line / Ayumi Ishida 14 minutes Subway Tozai Line / Ayumi Daigo 22 minutes JR Nara Line / Rokujizo walk 25 minutes 地下鉄東西線/石田 歩14分 地下鉄東西線/醍醐 歩22分 JR奈良線/六地蔵 歩25分
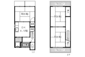
| Floor plan details 間取り詳細 | | Sum 6 sum 6 sum 6 DK4.5 和6 和6 和6 DK4.5 | Construction 構造 | | Wooden 木造 | Story 階建 | | 1st floor / 2-story 1階/2階建 | Built years 築年月 | | August 1972 1972年8月 | Nonlife insurance 損保 | | The main 要 | Move-in 入居 | | Immediately 即 | Trade aspect 取引態様 | | Mediation 仲介 | Property code 取り扱い店舗物件コード | | K33767-xxP K33767-xxP | Total units 総戸数 | | 1 units 1戸 | Remarks 備考 | | Subway Tozai Line Rokujizo Station walk 25 minutes 地下鉄東西線六地蔵駅徒歩25分 | Area information 周辺情報 | | Kyoto Ishida post office (post office) up to 100m Seven-Eleven Kyoto Fushimi Daigo store (convenience store) up to 350m Kasugano elementary school (elementary school) 350m fresh Museum Cosmo Daigo store (supermarket) up to 350m Royal Home Center Daigo store (hardware store) to 350m Kyoto Chuo Shinkin Bank 京都石田郵便局(郵便局)まで100mセブンイレブン京都伏見醍醐店(コンビニ)まで350m春日野小学校(小学校)まで350m新鮮館コスモ 醍醐店(スーパー)まで350mロイヤルホームセンター 醍醐店(ホームセンター)まで350m京都中央信用金庫 石田支店(銀行)まで450m |
Building appearance建物外観 


Supermarketスーパー  350m until fresh Museum Cosmo Daigo store (Super)
新鮮館コスモ 醍醐店(スーパー)まで350m
Convenience storeコンビニ  Seven-Eleven Kyoto Fushimi Daigo store (convenience store) to 350m
セブンイレブン京都伏見醍醐店(コンビニ)まで350m
Home centerホームセンター  Royal Home Center Daigo store (hardware store) to 350m
ロイヤルホームセンター 醍醐店(ホームセンター)まで350m
Primary school小学校  Kasugano 350m up to elementary school (elementary school)
春日野小学校(小学校)まで350m
Post office郵便局  100m to Kyoto Ishida post office (post office)
京都石田郵便局(郵便局)まで100m
Bank銀行  450m up to Kyoto Chuo Shinkin Bank Ishida Branch (Bank)
京都中央信用金庫 石田支店(銀行)まで450m
Location
|