Rentals » Kansai » Kyoto » Fushimi-ku
 
| Railroad-station 沿線・駅 | | Keihan / Fujimori 京阪本線/藤森 | Address 住所 | | Kyoto Fushimi-ku, Kyoto Fukakusanishiura cho 7 京都府京都市伏見区深草西浦町7 | Walk 徒歩 | | 13 minutes 13分 | Rent 賃料 | | 33,000 yen 3.3万円 | Management expenses 管理費・共益費 | | 5000 Yen 5000円 | Floor plan 間取り | | 1K 1K | Occupied area 専有面積 | | 20.53 sq m 20.53m2 | Direction 向き | | North 北 | Type 種別 | | Mansion マンション | Year Built 築年 | | Built 20 years 築20年 | | Chambre Fukakusa シャンブル深草 |
| ・ Recommended for Ryukoku University students ・龍谷大学生におすすめ |
| Recommended for Ryukoku University freshman! 龍谷大学新入生におすすめ! |
| balcony, Air conditioning, Flooring, Bicycle-parking space, closet, CATV, Optical fiber, Immediate Available, Key money unnecessary, top floor, Deposit required, Electric stove, All room Western-style, CATV Internet, 3 station more accessible, No upper floor, All room 6 tatami mats or more, City gas, High speed Internet correspondence バルコニー、エアコン、フローリング、駐輪場、押入、CATV、光ファイバー、即入居可、礼金不要、最上階、敷金不要、電気コンロ、全居室洋室、CATVインターネット、3駅以上利用可、上階無し、全居室6畳以上、都市ガス、高速ネット対応 |
Property name 物件名 | | Rental housing of Kyoto, Kyoto Prefecture Fushimi-ku, Fukakusanishiura-cho, 7 Fujimori Station [Rental apartment ・ Apartment] information Property Details 京都府京都市伏見区深草西浦町7 藤森駅の賃貸住宅[賃貸マンション・アパート]情報 物件詳細 | Transportation facilities 交通機関 | | Keihan / Ayumi Fujimori 13 minutes Kintetsu Kyoto Line / Ayumi Takeda 11 minutes Subway Karasuma / Ayumi Takeda 11 minutes 京阪本線/藤森 歩13分 近鉄京都線/竹田 歩11分 地下鉄烏丸線/竹田 歩11分
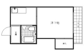
| Floor plan details 間取り詳細 | | Hiroshi 7 K3 洋7 K3 | Construction 構造 | | Steel frame 鉄骨 | Story 階建 | | 3rd floor / Three-story 3階/3階建 | Built years 築年月 | | January 1995 1995年1月 | Nonlife insurance 損保 | | 16,700 yen two years 1.67万円2年 | Move-in 入居 | | Immediately 即 | Trade aspect 取引態様 | | Mediation 仲介 | Property code 取り扱い店舗物件コード | | K03428-3-B K03428-3-B | Total units 総戸数 | | 11 units 11戸 | Remarks 備考 | | Subway Karasuma Kuinabashi Station walk 13 minutes 地下鉄烏丸線くいな橋駅徒歩13分 | Area information 周辺情報 | | Ryukoku University (Fukakusa) (University of ・ Junior college) to 665m Seibojogakuintankidaigaku Kyoto (University ・ Junior college) to 970m Kyoto University of Education (University of ・ Junior college) until 1700m Fujimori Station (other) up to 980m Takeda Station (other) up to 850m Takeda Station (other) up to 850m 龍谷大学(深草)(大学・短大)まで665m京都聖母女学院短期大学(大学・短大)まで970m京都教育大学(大学・短大)まで1700m藤森駅(その他)まで980m竹田駅(その他)まで850m竹田駅(その他)まで850m |
Building appearance建物外観 
Living and room居室・リビング 




Kitchenキッチン 
Bathバス 
Toiletトイレ 
Receipt収納 
Other room spaceその他部屋・スペース 
Balconyバルコニー 
Other common areasその他共有部分 
University ・ Junior college大学・短大  Ryukoku University (Fukakusa) (University of ・ 665m up to junior college)
龍谷大学(深草)(大学・短大)まで665m
 Seibo Jogakuin Junior College (University of ・ 970m up to junior college)
京都聖母女学院短期大学(大学・短大)まで970m
 Kyoto University of Education (University of ・ 1700m up to junior college)
京都教育大学(大学・短大)まで1700m
Otherその他  980m until Fujimori Station (Other)
藤森駅(その他)まで980m
 850m to Takeda Station (Other)
竹田駅(その他)まで850m
Location
|