Rentals » Kansai » Kyoto » Higashiyama-ku
 
| Railroad-station 沿線・駅 | | Keihan / Gion Shijo 京阪本線/祇園四条 | Address 住所 | | Kyoto Higashiyama-ku, Kyoto Gionmachiminamigawa 京都府京都市東山区祇園町南側 | Walk 徒歩 | | 10 minutes 10分 | Rent 賃料 | | ¥ 100,000 10万円 | Management expenses 管理費・共益費 | | 15000 yen 15000円 | Key money 礼金 | | 200,000 yen 20万円 | Security deposit 敷金 | | ¥ 100,000 10万円 | Floor plan 間取り | | 1SLDK 1SLDK | Occupied area 専有面積 | | 60.1 sq m 60.1m2 | Direction 向き | | North 北 | Type 種別 | | Mansion マンション | Year Built 築年 | | Built 23 years 築23年 | | Gran form Gion, Kyoto グランフォルム京都祇園 |
| Like a luxury condominium まるで高級分譲マンション |
| Here the life and location that does not taste quite. なかなか味わえない生活とロケーションをこちらで。 |
| Bus toilet by, balcony, Air conditioning, Gas stove correspondence, Flooring, TV interphone, auto lock, Indoor laundry location, Elevator, Bicycle-parking space, Optical fiber, Immediate Available, All room Western-style, Deposit 1 month, Cable broadcasting, 3 station more accessible, Within a 10-minute walk station, All room 6 tatami mats or more, City gas, BS, Key money two months バストイレ別、バルコニー、エアコン、ガスコンロ対応、フローリング、TVインターホン、オートロック、室内洗濯置、エレベーター、駐輪場、光ファイバー、即入居可、全居室洋室、敷金1ヶ月、有線放送、3駅以上利用可、駅徒歩10分以内、全居室6畳以上、都市ガス、BS、礼金2ヶ月 |
Property name 物件名 | | Rental housing of Kyoto Higashiyama-ku, Kyoto Gionmachiminamigawa Gion Shijo Station [Rental apartment ・ Apartment] information Property Details 京都府京都市東山区祇園町南側 祇園四条駅の賃貸住宅[賃貸マンション・アパート]情報 物件詳細 | Transportation facilities 交通機関 | | Keihan / Gion Shijo walk 10 minutes Subway Tozai Line / Ayumi Higashiyama 8 minutes Hankyu Kyoto Line / Kawaramachi walk 13 minutes 京阪本線/祇園四条 歩10分 地下鉄東西線/東山 歩8分 阪急京都線/河原町 歩13分
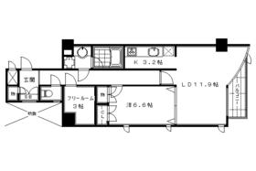
| Floor plan details 間取り詳細 | | Hiroshi 6.6 LD11.9K3.2 closet 3 洋6.6 LD11.9K3.2 納戸 3 | Construction 構造 | | Steel rebar 鉄骨鉄筋 | Story 階建 | | Second floor / 6-story 2階/6階建 | Built years 築年月 | | December 1991 1991年12月 | Nonlife insurance 損保 | | 22,000 yen two years 2.2万円2年 | Move-in 入居 | | Immediately 即 | Trade aspect 取引態様 | | Mediation 仲介 | Property code 取り扱い店舗物件コード | | K23041-202 K23041-202 | Total units 総戸数 | | 29 units 29戸 | Remarks 備考 | | Subway Tozai Line Sanjo Keihan Station 15-minute walk / Patrol management 地下鉄東西線三条京阪駅徒歩15分/巡回管理 | Area information 周辺情報 | | Kyoto moon cho, post office (post office) to 82m Lawson Yasaka Shrine before the store (convenience store) up to 108m Kyoto Shinkin Bank Gion Branch (Bank) 118m food shop lily of the valley (super) up to 201m Higashiyama police station (police station ・ Until alternating) up to 560m open 睛小 school (elementary school) 611m 京都月見町郵便局(郵便局)まで82mローソン八坂神社前店(コンビニ)まで108m京都信用金庫祇園支店(銀行)まで118mフードショップすずらん(スーパー)まで201m東山警察署(警察署・交番)まで560m開睛小学校(小学校)まで611m |
Building appearance建物外観 
Entranceエントランス 

Other common areasその他共有部分 

Supermarketスーパー  201m to food shop lily of the valley (super)
フードショップすずらん(スーパー)まで201m
Convenience storeコンビニ  108m until Lawson Yasaka Shrine before the store (convenience store)
ローソン八坂神社前店(コンビニ)まで108m
Primary school小学校  611m to the open 睛小 school (elementary school)
開睛小学校(小学校)まで611m
Post office郵便局  82m to Kyoto moon the town post office (post office)
京都月見町郵便局(郵便局)まで82m
Bank銀行  118m to Kyoto credit union Gion Branch (Bank)
京都信用金庫祇園支店(銀行)まで118m
Police station ・ Police box警察署・交番  Higashiyama police station (police station ・ Until alternating) 560m
東山警察署(警察署・交番)まで560m
Location
|