Rentals » Kansai » Kyoto » Higashiyama-ku
 
| Railroad-station 沿線・駅 | | Keihan / Tofukuji 京阪本線/東福寺 | Address 住所 | | Kyoto Higashiyama-ku, Kyoto Honcho 17 京都府京都市東山区本町17 | Walk 徒歩 | | 4 minutes 4分 | Rent 賃料 | | 38,000 yen 3.8万円 | Management expenses 管理費・共益費 | | 5000 Yen 5000円 | Deposit 保証金 | | 20,000 yen 2万円 | Floor plan 間取り | | 1K 1K | Occupied area 専有面積 | | 17.46 sq m 17.46m2 | Direction 向き | | West 西 | Type 種別 | | Mansion マンション | Year Built 築年 | | Built 26 years 築26年 | | DETOM-1 Tofukuji DETOM-1東福寺 |
| Sale rental apartments! 分譲賃貸マンション! |
| Firm sense of condominium rental apartments unique looks attractive. 分譲賃貸マンションならではのしっかり感は魅力ですね。 |
| balcony, Air conditioning, Flooring, auto lock, Indoor laundry location, Corner dwelling unit, Bicycle-parking space, closet, Optical fiber, Immediate Available, Key money unnecessary, Deposit required, surveillance camera, IH cooking heater, With lighting, Electric stove, Sale rent, All room Western-style, refrigerator, Bike shelter, CS, Washing machine, microwave, bed, 3 station more accessible, Within a 5-minute walk station, All room 6 tatami mats or more, BS バルコニー、エアコン、フローリング、オートロック、室内洗濯置、角住戸、駐輪場、押入、光ファイバー、即入居可、礼金不要、敷金不要、防犯カメラ、IHクッキングヒーター、照明付、電気コンロ、分譲賃貸、全居室洋室、冷蔵庫、バイク置場、CS、洗濯機、電子レンジ、ベッド、3駅以上利用可、駅徒歩5分以内、全居室6畳以上、BS |
Property name 物件名 | | Rental housing of Kyoto Higashiyama-ku, Kyoto Honcho 17 Tofukuji Station [Rental apartment ・ Apartment] information Property Details 京都府京都市東山区本町17 東福寺駅の賃貸住宅[賃貸マンション・アパート]情報 物件詳細 | Transportation facilities 交通機関 | | Keihan / Tofukuji walk 4 minutes Keihan / Shichijo walk 15 minutes Keihan / Toba Road walk 8 minutes 京阪本線/東福寺 歩4分 京阪本線/七条 歩15分 京阪本線/鳥羽街道 歩8分
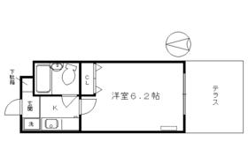
| Floor plan details 間取り詳細 | | Hiroshi 6.2 K2 洋6.2 K2 | Construction 構造 | | Rebar Con 鉄筋コン | Story 階建 | | Second floor / 4-story 2階/4階建 | Built years 築年月 | | May 1988 1988年5月 | Nonlife insurance 損保 | | 15,100 yen two years 1.51万円2年 | Move-in 入居 | | Immediately 即 | Trade aspect 取引態様 | | Mediation 仲介 | Property code 取り扱い店舗物件コード | | W03609-201 W03609-201 | Total units 総戸数 | | 92 units 92戸 | Remarks 備考 | | JR Tokaido Line Kyoto Station walk 24 minutes JR東海道本線京都駅徒歩24分 | Area information 周辺情報 | | Daily Yamazaki Tofukuji Station shop 500m to the first Red Cross Hospital 650m Kyoto until the (convenience store) up to 301m FamilyMart Nakai Tofukuji store (convenience store) up to 351m superpower shop now Kumano store (Super) (hospital) Kyoto Women's University (University ・ Junior college) until 1805m Shichijo Station to (other) 1200m デイリーヤマザキ東福寺駅前店(コンビニ)まで301mファミリーマート中井東福寺店(コンビニ)まで351m大国屋今熊野店(スーパー)まで650m京都第一赤十字病院(病院)まで500m京都女子大学(大学・短大)まで1805m七条駅(その他)まで1200m |
Building appearance建物外観 
Living and room居室・リビング 


Kitchenキッチン 
Bathバス 

Receipt収納 

Balconyバルコニー 
Other Equipmentその他設備 

Entrance玄関 
Supermarketスーパー  650m until the superpower shop now Kumano store (Super)
大国屋今熊野店(スーパー)まで650m
Convenience storeコンビニ  Daily Yamazaki Tofukuji Station store up (convenience store) 301m
デイリーヤマザキ東福寺駅前店(コンビニ)まで301m
 FamilyMart Nakai Tofukuji store up (convenience store) 351m
ファミリーマート中井東福寺店(コンビニ)まで351m
Hospital病院  500m to Kyoto first Red Cross Hospital (Hospital)
京都第一赤十字病院(病院)まで500m
University ・ Junior college大学・短大  Kyoto Women's University (University of ・ 1805m up to junior college)
京都女子大学(大学・短大)まで1805m
Otherその他  1200m to Shichijo Station (Other)
七条駅(その他)まで1200m
Location
|