Rentals » Kansai » Kyoto » Joyo
 
| Railroad-station 沿線・駅 | | JR Nara Line / Joyo JR奈良線/城陽 | Address 住所 | | Joyo City, Kyoto Prefecture Terada KAKIUCHI after 京都府城陽市寺田垣内後 | Walk 徒歩 | | 7 minutes 7分 | Rent 賃料 | | 74,000 yen 7.4万円 | Management expenses 管理費・共益費 | | 7000 yen 7000円 | Key money 礼金 | | ¥ 100,000 10万円 | Security deposit 敷金 | | 50,000 yen 5万円 | Floor plan 間取り | | 3LDK 3LDK | Occupied area 専有面積 | | 66.07 sq m 66.07m2 | Direction 向き | | West 西 | Type 種別 | | Mansion マンション | Year Built 築年 | | Built 17 years 築17年 | | Edel Heim エーデルハイム |
| Family smile peace of mind mark. 家族の笑顔は安心マーク。 |
| JR, 2WA access Kintetsu is possible. JR、近鉄の2WAアクセスが可能。 |
| Bus toilet by, balcony, Air conditioning, Gas stove correspondence, Flooring, Washbasin with shower, auto lock, Indoor laundry location, Elevator, Seperate, Bicycle-parking space, closet, Optical fiber, Immediate Available, Two tenants consultation, 3 station more accessible, Within a 10-minute walk station, LDK12 tatami mats or moreese-style room, City gas, BS, High speed Internet correspondence バストイレ別、バルコニー、エアコン、ガスコンロ対応、フローリング、シャワー付洗面台、オートロック、室内洗濯置、エレベーター、洗面所独立、駐輪場、押入、光ファイバー、即入居可、二人入居相談、3駅以上利用可、駅徒歩10分以内、LDK12畳以上、和室、都市ガス、BS、高速ネット対応 |
Property name 物件名 | | Rental housing Joyo City, Kyoto Prefecture Terada KAKIUCHI after Joyo Station [Rental apartment ・ Apartment] information Property Details 京都府城陽市寺田垣内後 城陽駅の賃貸住宅[賃貸マンション・アパート]情報 物件詳細 | Transportation facilities 交通機関 | | JR Nara Line / Ayumi Joyo 7 minutes Kintetsu Kyoto Line / Ayumi Terada 9 minutes Kintetsu Kyoto Line / Hisatsu river walk 13 minutes JR奈良線/城陽 歩7分 近鉄京都線/寺田 歩9分 近鉄京都線/久津川 歩13分
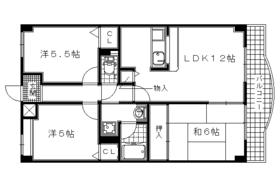
| Floor plan details 間取り詳細 | | Sum 6 Hiroshi 5.5 Hiroshi 5 LDK12 和6 洋5.5 洋5 LDK12 | Construction 構造 | | Rebar Con 鉄筋コン | Story 階建 | | 1st floor / 4-story 1階/4階建 | Built years 築年月 | | February 1998 1998年2月 | Nonlife insurance 損保 | | 25,000 yen two years 2.5万円2年 | Parking lot 駐車場 | | On-site 8000 yen 敷地内8000円 | Move-in 入居 | | Immediately 即 | Trade aspect 取引態様 | | Mediation 仲介 | Conditions 条件 | | Two people Available / Children Allowed 二人入居可/子供可 | Property code 取り扱い店舗物件コード | | K25658-109 K25658-109 | Total units 総戸数 | | 32 units 32戸 | Remarks 備考 | | Kintetsu Kyoto Line Okubo Station walk 19 minutes 近鉄京都線大久保駅徒歩19分 | Area information 周辺情報 | | Sun Plaza Terada shop (super) up to 327m Chengyang City Hall (government office) up to 700m MINISTOP Chengyang Terada store (convenience store) up to 83m business super Chengyang store (supermarket) up to 193m Kyoto Chuo Shinkin Bank Chengyang branch (Bank) to 284m Jōyō Station (Other) サンプラザ寺田店(スーパー)まで327m城陽市役所(役所)まで700mミニストップ城陽寺田店(コンビニ)まで83m業務スーパー 城陽店(スーパー)まで193m京都中央信用金庫 城陽支店(銀行)まで284m城陽駅(その他)まで539m |
Building appearance建物外観 
Living and room居室・リビング 





Kitchenキッチン 
Bathバス 
Toiletトイレ 
Washroom洗面所 

Balconyバルコニー 
Supermarketスーパー  Sun Plaza 327m to Terada shop (super)
サンプラザ寺田店(スーパー)まで327m
 193m to business super Chengyang store (Super)
業務スーパー 城陽店(スーパー)まで193m
Convenience storeコンビニ  MINISTOP Chengyang Terada shop until the (convenience store) 83m
ミニストップ城陽寺田店(コンビニ)まで83m
Government office役所  Chengyang 700m to City Hall (government office)
城陽市役所(役所)まで700m
Bank銀行  Kyoto Chuo Shinkin Bank Chengyang 284m to the branch (Bank)
京都中央信用金庫 城陽支店(銀行)まで284m
Otherその他  539m to Chengyang Station (Other)
城陽駅(その他)まで539m
Location
|