Rentals » Kansai » Kyoto » Joyo
 
| Railroad-station 沿線・駅 | | Kintetsu Kyoto Line / Okubo 近鉄京都線/大久保 | Address 住所 | | Joyo City, Kyoto Prefecture Hirakawa Chaya back 京都府城陽市平川茶屋裏 | Walk 徒歩 | | 12 minutes 12分 | Rent 賃料 | | 88,000 yen 8.8万円 | Management expenses 管理費・共益費 | | 10000 yen 10000円 | Key money 礼金 | | 200,000 yen 20万円 | Security deposit 敷金 | | 50,000 yen 5万円 | Floor plan 間取り | | 2LDK 2LDK | Occupied area 専有面積 | | 71 sq m 71m2 | Direction 向き | | South 南 | Type 種別 | | Mansion マンション | Year Built 築年 | | Built 12 years 築12年 | | House ・ Evergreen ハウス・エバーグリーン |
| Designer's rent デザイナーズ賃貸 |
| Washlet in 2 groups air conditioning ・ Shandore ・ Add cooking bath エアコン2基にウォッシュレット・シャンドレ・追炊き風呂 |
| Bus toilet by, balcony, Air conditioning, Gas stove correspondence, Flooring, Washbasin with shower, auto lock, Indoor laundry location, System kitchen, Facing south, Add-fired function bathroom, Warm water washing toilet seat, Elevator, Seperate, Bicycle-parking space, closet, CATV, Immediate Available, Design, LDK15 tatami mats or more, 3 station more accessible, Within a 10-minute walk stationese-style room, All room 6 tatami mats or more, City gas, BS バストイレ別、バルコニー、エアコン、ガスコンロ対応、フローリング、シャワー付洗面台、オートロック、室内洗濯置、システムキッチン、南向き、追焚機能浴室、温水洗浄便座、エレベーター、洗面所独立、駐輪場、押入、CATV、即入居可、デザイナーズ、LDK15畳以上、3駅以上利用可、駅徒歩10分以内、和室、全居室6畳以上、都市ガス、BS |
Property name 物件名 | | Rental housing Joyo City, Kyoto Prefecture Hirakawa Chaya back Okubo Station [Rental apartment ・ Apartment] information Property Details 京都府城陽市平川茶屋裏 大久保駅の賃貸住宅[賃貸マンション・アパート]情報 物件詳細 | Transportation facilities 交通機関 | | Kintetsu Kyoto Line / Ayumi Okubo 12 minutes Kintetsu Kyoto Line / Hisatsu river walk 9 minutes JR Nara Line / Ayumi Nitta 11 minutes 近鉄京都線/大久保 歩12分 近鉄京都線/久津川 歩9分 JR奈良線/新田 歩11分
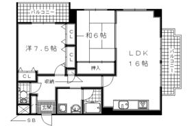
| Floor plan details 間取り詳細 | | Sum 6 Hiroshi 7 LDK15 和6 洋7 LDK15 | Construction 構造 | | Rebar Con 鉄筋コン | Story 階建 | | 3rd floor / Underground 1 ground 6-story 3階/地下1地上6階建 | Built years 築年月 | | April 2003 2003年4月 | Nonlife insurance 損保 | | 20,000 yen two years 2万円2年 | Parking lot 駐車場 | | On-site 9000 yen 敷地内9000円 | Move-in 入居 | | Immediately 即 | Trade aspect 取引態様 | | Mediation 仲介 | Property code 取り扱い店舗物件コード | | K25780-303 K25780-303 | Total units 総戸数 | | 24 units 24戸 | Remarks 備考 | | Kintetsu Kyoto Line Iseda Station walk 20 minutes 近鉄京都線伊勢田駅徒歩20分 | Area information 周辺情報 | | Izumiya (super) up to 176m Konan Uji Okubo store (hardware store) to 650m Kyoto Shinkin Bank Chengyang branch (Bank) to 160m Joyo Hirakawa post office (post office) to 356m Co., Ltd. of Kyoto Hisatsu River Branch (Bank) up to 388m Seven-Eleven Joyo Hirakawa イズミヤ(スーパー)まで176mコーナン宇治大久保店(ホームセンター)まで650m京都信用金庫 城陽支店(銀行)まで160m城陽平川郵便局(郵便局)まで356m株式会社京都銀行 久津川支店(銀行)まで388mセブンイレブン城陽平川店(コンビニ)まで415m |
Building appearance建物外観 
Living and room居室・リビング 

Kitchenキッチン 

Bathバス 

Toiletトイレ 

Receipt収納 

Washroom洗面所 

Supermarketスーパー  Izumiya to (super) 176m
イズミヤ(スーパー)まで176m
Convenience storeコンビニ  Seven-Eleven Joyo Hirakawa store up (convenience store) 415m
セブンイレブン城陽平川店(コンビニ)まで415m
Home centerホームセンター  Konan Uji Okubo store up (home improvement) 650m
コーナン宇治大久保店(ホームセンター)まで650m
Post office郵便局  Joyo Hirakawa 356m to the post office (post office)
城陽平川郵便局(郵便局)まで356m
Bank銀行  160m to Kyoto Shinkin Bank Chengyang branch (Bank)
京都信用金庫 城陽支店(銀行)まで160m
 388m until Co., Ltd. of Kyoto Hisatsu River Branch (Bank)
株式会社京都銀行 久津川支店(銀行)まで388m
Location
|