Rentals » Kansai » Kyoto » Kamigyo-ku
 
| Railroad-station 沿線・駅 | | Subway Karasuma / Kuramaguchi 地下鉄烏丸線/鞍馬口 | Address 住所 | | Kyoto-shi, Kyoto Kamigyo-ku Enmamae cho 京都府京都市上京区閻魔前町 | Walk 徒歩 | | 20 min 20分 | Rent 賃料 | | 59,000 yen 5.9万円 | Management expenses 管理費・共益費 | | 6000 yen 6000円 | Floor plan 間取り | | 1DK 1DK | Occupied area 専有面積 | | 35 sq m 35m2 | Direction 向き | | South 南 | Type 種別 | | Apartment アパート | Year Built 築年 | | Built 27 years 築27年 | | Noeru Kuramaguchi ノエール鞍馬口 |
| Super walk 2 minutes! Convenient shopping スーパー歩2分!買物便利 |
| Supermarket ・ Shopping street immediately Senbon street convenient shopping in. Bus stop in front of eyes スーパー・商店街すぐで買物便利な千本通り沿い。バス停目の前 |
| Bus toilet by, balcony, Air conditioning, Gas stove correspondence, Flooring, Indoor laundry location, Facing south, Corner dwelling unit, Bicycle-parking space, closet, Immediate Available, Key money unnecessary, Deposit required, Two tenants consultation, Bike shelter, Card key, 3 station more accessibleese-style room, All room 6 tatami mats or more, City gas バストイレ別、バルコニー、エアコン、ガスコンロ対応、フローリング、室内洗濯置、南向き、角住戸、駐輪場、押入、即入居可、礼金不要、敷金不要、二人入居相談、バイク置場、カードキー、3駅以上利用可、和室、全居室6畳以上、都市ガス |
Property name 物件名 | | Rental housing of Kyoto Kyohei Fujisawa Enmamae cho Kuramaguchi Station [Rental apartment ・ Apartment] information Property Details 京都府京都市上京区閻魔前町 鞍馬口駅の賃貸住宅[賃貸マンション・アパート]情報 物件詳細 | Transportation facilities 交通機関 | | Subway Karasuma / Kuramaguchi walk 20 minutes Keifuku railway Kitanosen / Kitano white plum-cho, walking 20 minutes Subway Karasuma / Ayumi Imadegawa 28 minutes 地下鉄烏丸線/鞍馬口 歩20分 京福電鉄北野線/北野白梅町 歩20分 地下鉄烏丸線/今出川 歩28分
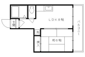
| Floor plan details 間取り詳細 | | Sum 6 DK8 和6 DK8 | Construction 構造 | | Light-gauge steel 軽量鉄骨 | Story 階建 | | Second floor / 4-story 2階/4階建 | Built years 築年月 | | November 1987 1987年11月 | Nonlife insurance 損保 | | 16,000 yen two years 1.6万円2年 | Move-in 入居 | | Immediately 即 | Trade aspect 取引態様 | | Mediation 仲介 | Conditions 条件 | | Two people Available 二人入居可 | Property code 取り扱い店舗物件コード | | K28213-201 K28213-201 | Total units 総戸数 | | 9 units 9戸 | Remarks 備考 | | Subway Karasuma Kitaōji Station walk 27 minutes / Patrol management 地下鉄烏丸線北大路駅徒歩27分/巡回管理 | Area information 周辺情報 | | Hoteiya (super) up to 120m FamilyMart Senbon Kuramaguchi store (convenience store) up to 219m drag Light Senbon Imadegawa store (drugstore) to 240m Qianlong kindergarten (kindergarten ・ Nursery school) until 253m Qianlong elementary school (elementary school) up to 270m Bukkyo University (University ・ 800m up to junior college) ほていや(スーパー)まで120mファミリーマート千本鞍馬口店(コンビニ)まで219mドラッグひかり 千本今出川店(ドラッグストア)まで240m乾隆幼稚園(幼稚園・保育園)まで253m乾隆小学校(小学校)まで270m佛教大学(大学・短大)まで800m |
Building appearance建物外観 
Living and room居室・リビング 


Kitchenキッチン 
Bathバス 
Toiletトイレ 
Receipt収納 
Balconyバルコニー 
Other Equipmentその他設備 

Entrance玄関 
Other common areasその他共有部分 
Supermarketスーパー  120m until Hoteiya (super)
ほていや(スーパー)まで120m
Convenience storeコンビニ  FamilyMart Senbon Kuramaguchi store up (convenience store) 219m
ファミリーマート千本鞍馬口店(コンビニ)まで219m
Dorakkusutoaドラックストア  Drag Light Senbon Imadegawa shop 240m until (drugstore)
ドラッグひかり 千本今出川店(ドラッグストア)まで240m
Primary school小学校  Qianlong to elementary school (elementary school) 270m
乾隆小学校(小学校)まで270m
Kindergarten ・ Nursery幼稚園・保育園  Qianlong kindergarten (kindergarten ・ 253m to the nursery)
乾隆幼稚園(幼稚園・保育園)まで253m
University ・ Junior college大学・短大  Buddhist University (University ・ 800m up to junior college)
佛教大学(大学・短大)まで800m
Location
|