Rentals » Kansai » Kyoto » Kamigyo-ku
 
| Railroad-station 沿線・駅 | | Subway Karasuma / Kuramaguchi 地下鉄烏丸線/鞍馬口 | Address 住所 | | Kyoto-shi, Kyoto Kamigyo-ku Kamigoryomae cho 京都府京都市上京区上御霊前町 | Walk 徒歩 | | 2 min 2分 | Rent 賃料 | | 38,000 yen 3.8万円 | Management expenses 管理費・共益費 | | 2000 yen 2000円 | Floor plan 間取り | | One-room ワンルーム | Occupied area 専有面積 | | 16 sq m 16m2 | Direction 向き | | West 西 | Type 種別 | | Mansion マンション | Year Built 築年 | | Built 45 years 築45年 | | Maison God RHO メゾンカミゴリョー |
| convenience store, Super Chikashi コンビニ、スーパー近し |
| Optical fiber corresponding Yes launderette 光ファイバー対応 コインランドリーあり |
| balcony, Elevator, Bicycle-parking space, closet, Optical fiber, Immediate Available, Key money unnecessary, Deposit required, Electric stove, All room Western-style, Launderette, 3 station more accessible, Within a 5-minute walk station, All room 6 tatami mats or more, City gas, High speed Internet correspondence バルコニー、エレベーター、駐輪場、押入、光ファイバー、即入居可、礼金不要、敷金不要、電気コンロ、全居室洋室、コインランドリー、3駅以上利用可、駅徒歩5分以内、全居室6畳以上、都市ガス、高速ネット対応 |
Property name 物件名 | | Rental housing of Kyoto Kyohei Fujisawa Kamigoryomae cho Kuramaguchi Station [Rental apartment ・ Apartment] information Property Details 京都府京都市上京区上御霊前町 鞍馬口駅の賃貸住宅[賃貸マンション・アパート]情報 物件詳細 | Transportation facilities 交通機関 | | Subway Karasuma / Kuramaguchi walk 2 minutes Subway Karasuma / Ayumi Imadegawa 9 minutes Subway Karasuma / Ayumi Kitaooji 11 minutes 地下鉄烏丸線/鞍馬口 歩2分 地下鉄烏丸線/今出川 歩9分 地下鉄烏丸線/北大路 歩11分
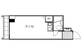
| Floor plan details 間取り詳細 | | Hiroshi 6 K1 洋6 K1 | Construction 構造 | | Rebar Con 鉄筋コン | Story 階建 | | 3rd floor / 5-story 3階/5階建 | Built years 築年月 | | February 1970 1970年2月 | Nonlife insurance 損保 | | 15,000 yen two years 1.5万円2年 | Move-in 入居 | | Immediately 即 | Trade aspect 取引態様 | | Mediation 仲介 | Property code 取り扱い店舗物件コード | | W20564-308 W20564-308 | Total units 総戸数 | | 47 units 47戸 | Area information 周辺情報 | | Kuraraku Howdy (super) 450m up to 230m Daily Yamazaki Kuramaguchi store (convenience store) up to 70m Dax Kuraraku Howdy shop 360m social insurance Kyoto hospital until (drugstore) to 230m Circle K Karasuma Teranonai store (convenience store) (hospital) Doshisha ・ 573m up to junior college) 鞍楽ハウディ(スーパー)まで230mデイリーヤマザキ鞍馬口店(コンビニ)まで70mダックス 鞍楽ハウディ店(ドラッグストア)まで230mサークルK烏丸寺ノ内店(コンビニ)まで360m社会保険京都病院(病院)まで450m同志社大学(今出川)(大学・短大)まで573m |
Building appearance建物外観 


Living and room居室・リビング 

Kitchenキッチン 
Bathバス 
Receipt収納 
Other room spaceその他部屋・スペース 

Balconyバルコニー 
Entrance玄関 
View眺望 
Supermarketスーパー  Kuraraku Howdy until the (super) 230m
鞍楽ハウディ(スーパー)まで230m
Convenience storeコンビニ  70m to the Daily Yamazaki Kuramaguchi store (convenience store)
デイリーヤマザキ鞍馬口店(コンビニ)まで70m
 360m to Circle K Karasuma Teranonai store (convenience store)
サークルK烏丸寺ノ内店(コンビニ)まで360m
Dorakkusutoaドラックストア  Dax Kuraraku Howdy shop 230m until (drugstore)
ダックス 鞍楽ハウディ店(ドラッグストア)まで230m
Hospital病院  450m until the Social Insurance Kyoto Hospital (Hospital)
社会保険京都病院(病院)まで450m
University ・ Junior college大学・短大  Doshisha University (Imadegawa) (University of ・ 573m up to junior college)
同志社大学(今出川)(大学・短大)まで573m
Location
|