Rentals » Kansai » Kyoto » Kamigyo-ku


Shuttle flood
Independent angle room!
balcony, Air conditioning, Gas stove correspondence, Corner dwelling unit, closet, Immediate Available, Bike shelter, 3 station more accessibleese-style room, All room 6 tatami mats or more, City gas
Railroad-station
JR San-in Main Line / Article
Address
Kyoto-shi, Kyoto Kamigyo-ku Amagasakiyoko cho
Walk
13 minutes
Rent
47,000 yen
Management expenses
2000 yen
Key money
50,000 yen
Security deposit
50,000 yen
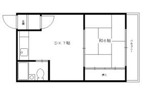
Floor plan
1DK
Occupied area
30.24 sq m
Direction
East
Type
Mansion
Year Built
Built 29 years
Property name
Rental housing of Kyoto Kyohei Fujisawa Amagasakiyoko-cho, Nijo Station [Rental apartment ・ Apartment] information Property Details
Transportation facilities
JR San-in Main Line / Article walk 13 minutes
Keifuku railway Kitanosen / Kitano white plum-cho, walking 20 minutes
Subway Tozai Line / Nijo Castle before walking 23 minutes
Floor plan details
Sum 6 DK7
Construction
Steel frame
Story
Second floor / 5-story
Built years
February 1986
Nonlife insurance
15,000 yen two years
Move-in
Immediately
Trade aspect
Mediation
Property code
K27469-2B
Total units
10 units
Remarks
Subway Tozai Line Nishioji Oike Station walk 28 minutes / Patrol management
Area information
Cedar pharmacy Senbon store (drugstore) to 164m FamilyMart Chie light Institute under Chojamachi store (convenience store) up to 375m Sunkus Senbon Marutamachi store (convenience store) up to 392m Kyoto neutral sales Senbon post office (post office) to 425m Messa Kitano Kitano public market cooperation


Building appearance

Building appearance

Supermarket

Supermarket
Supermarket. Messa 501m until Kitano Kitano public market cooperatives (super)
Messa 501m until Kitano Kitano public market cooperatives (super)

Supermarket. 612m up to life Nishijin store (Super)
612m up to life Nishijin store (Super)

Convenience store

Convenience store. FamilyMart Chie light Institute under Chojamachi store (convenience store) to 375m
FamilyMart Chie light Institute under Chojamachi store (convenience store) to 375m

Convenience store. Thanks Senbon Marutamachi store up (convenience store) 392m
Thanks Senbon Marutamachi store up (convenience store) 392m

Dorakkusutoa

Dorakkusutoa. Cedar pharmacy Thousand shop 164m until (drugstore)
Cedar pharmacy Thousand shop 164m until (drugstore)

Post office

post office. 425m to Kyoto neutral sales Senbon post office (post office)
425m to Kyoto neutral sales Senbon post office (post office)



Location