Rentals » Kansai » Kyoto » Kamigyo-ku


No.64 Tamaya ・ Mountain three alley
Nishijin middle ・ Tokuyuchin
Nishijin Central School District Tokuyuchin. Convenient shopping. Storage enhancement. Renewal fee without
Bus toilet by, balcony, Gas stove correspondence, Indoor laundry location, Elevator, Seperate, Bicycle-parking space, closet, Immediate Available, Key money unnecessary, All room Western-style, Two tenants consultation, Maisonette, Specific high-quality rental housing, 3 station more accessible, City gas, BS
Railroad-station
Subway Karasuma / Imadegawa
Address
Kyoto-shi, Kyoto Kamigyo-ku Kagamiishi
Walk
15 minutes
Rent
102,400 yen
Management expenses
9000 yen
Security deposit
412,200 yen
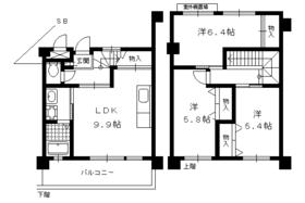
Floor plan
3LDK
Occupied area
68.72 sq m
Direction
East
Type
Mansion
Year Built
Built 16 years
Property name
Rental housing of Kyoto Kyohei Fujisawa Kagamiishi Imadegawa Station [Rental apartment ・ Apartment] information Property Details
Transportation facilities
Subway Karasuma / Ayumi Imadegawa 15 minutes
Keifuku railway Kitanosen / Kitano white plum-cho, walking 19 minutes
JR San-in Main Line / Article walk 25 minutes
Floor plan details
Hiroshi 6.4 Hiroshi 5.8 Hiroshi 5.4 LDK9.9
Construction
Rebar Con
Story
4th floor / 5-story
Built years
October 1998
Nonlife insurance
The main
Parking lot
Site 23000 yen
Move-in
Immediately
Trade aspect
Mediation
Conditions
Two people Available / Children Allowed
Property code
K28799-404xxx
Total units
24 units
Balcony area
16.5 sq m
特優賃
Burden monthly 102,400 yen ~
Remarks
Subway Karasuma Marutamachi Station walk 25 minutes / Patrol management
Area information
Higuchi neutral stand (drugstore) to 130m life Nishijin store (supermarket) up to 160m UNIQLO Nishijin store (other) up to 160m Seven-Eleven Chie 372m to the light Institute on Chojamachi store (convenience store) up to 220m CITIC Senbon Branch (Bank) Doshisha University (Imadegawa ・ 1250m up to junior college)


Building appearance

Building appearance

Living and room

Living and room
Living and room
Living and room
Living and room
Living and room

Kitchen

Kitchen

Bath

Bath

Washroom

Washroom

Entrance

Entrance
Entrance

Supermarket

Supermarket. 160m up to life Nishijin store (Super)
160m up to life Nishijin store (Super)

Convenience store

Convenience store. Seven-Eleven Chie light Institute on Chojamachi store (convenience store) to 220m
Seven-Eleven Chie light Institute on Chojamachi store (convenience store) to 220m

Dorakkusutoa

Dorakkusutoa. Higuchi neutral stand 130m to (drugstore)
Higuchi neutral stand 130m to (drugstore)

Bank

Bank. CITIC Senbon until the branch office (bank) 372m
CITIC Senbon until the branch office (bank) 372m

University ・ Junior college

University ・ Junior college. Doshisha University (Imadegawa) (University of ・ 1250m up to junior college)
Doshisha University (Imadegawa) (University of ・ 1250m up to junior college)

Other

Other. 160m to UNIQLO Nishijin shop (Other)
160m to UNIQLO Nishijin shop (Other)



Location