Rentals » Kansai » Kyoto » Kamigyo-ku
 
| Railroad-station 沿線・駅 | | Subway Karasuma / Imadegawa 地下鉄烏丸線/今出川 | Address 住所 | | Kyoto-shi, Kyoto Kamigyo-ku Heshan Town, 京都府京都市上京区鶴山町 | Walk 徒歩 | | 12 minutes 12分 | Rent 賃料 | | 250,000 yen 25万円 | Management expenses 管理費・共益費 | | 20000 yen 20000円 | Depreciation and amortization 敷引・償却金 | | 500,000 yen 50万円 | Deposit 保証金 | | 650,000 yen 65万円 | Floor plan 間取り | | 3LDK 3LDK | Occupied area 専有面積 | | 109.35 sq m 109.35m2 | Direction 向き | | Northeast 北東 | Type 種別 | | Mansion マンション | Year Built 築年 | | Built 24 years 築24年 | | Domus Kamogawa ドムス鴨川 |
| Kyogoku School District ・ Rare family property 京極学区・稀少ファミリー物件 |
| Traffic shopping convenience. Kamogawa near environment favorable. Fully equipped, Room spacious. Kyogoku School District 交通買物便利。鴨川近く環境良好。設備充実、居室広々。京極学区 |
| Bus toilet by, balcony, Air conditioning, Gas stove correspondence, Flooring, auto lock, Indoor laundry location, System kitchen, Warm water washing toilet seat, Elevator, Seperate, Bicycle-parking space, closet, Optical fiber, Immediate Available, Key money unnecessary, Deposit required, 3-neck over stove, With lighting, 24-hour manned management, Two tenants consultation, Cable broadcasting, 3 station more accessible, Within a 10-minute walk station, The area occupied 30 square meters or more, LDK12 tatami mats or moreese-style roomese-style room 8 tatami mats or more, All room 6 tatami mats or more, City gas, BS バストイレ別、バルコニー、エアコン、ガスコンロ対応、フローリング、オートロック、室内洗濯置、システムキッチン、温水洗浄便座、エレベーター、洗面所独立、駐輪場、押入、光ファイバー、即入居可、礼金不要、敷金不要、3口以上コンロ、照明付、24時間有人管理、二人入居相談、有線放送、3駅以上利用可、駅徒歩10分以内、専有面積30坪以上、LDK12畳以上、和室、和室8畳以上、全居室6畳以上、都市ガス、BS |
Property name 物件名 | | Rental housing of Kyoto Kyohei Fujisawa Heshan Town, Imadegawa Station [Rental apartment ・ Apartment] information Property Details 京都府京都市上京区鶴山町 今出川駅の賃貸住宅[賃貸マンション・アパート]情報 物件詳細 | Transportation facilities 交通機関 | | Subway Karasuma / Ayumi Imadegawa 12 minutes Subway Karasuma / Ayumi Kitaooji 14 minutes Keihan Ōtō Line / Demachiyanagi step 12 minutes 地下鉄烏丸線/今出川 歩12分 地下鉄烏丸線/北大路 歩14分 京阪鴨東線/出町柳 歩12分
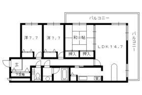
| Floor plan details 間取り詳細 | | Sum 8 Hiroshi 7.7 Hiroshi 7.7 LDK14.7 和8 洋7.7 洋7.7 LDK14.7 | Construction 構造 | | Rebar Con 鉄筋コン | Story 階建 | | Second floor / Underground 1 the ground three-story 2階/地下1地上3階建 | Built years 築年月 | | December 1990 1990年12月 | Nonlife insurance 損保 | | The main 要 | Move-in 入居 | | Immediately 即 | Trade aspect 取引態様 | | Mediation 仲介 | Conditions 条件 | | Two people Available / Children Allowed 二人入居可/子供可 | Property code 取り扱い店舗物件コード | | K08610-207 K08610-207 | Total units 総戸数 | | 17 units 17戸 | Remarks 備考 | | Subway Karasuma Kuramaguchi Station 9 minute walk / Resident management 地下鉄烏丸線鞍馬口駅徒歩9分/常駐管理 | Area information 周辺情報 | | Up to Kyoto Izumo Road post office (post office) 360m Shimogamo elementary school (elementary school) 415m Karasuma junior high school (junior high school) up to 466m Doshisha Women's College of Liberal Arts (Imadegawa) (University of ・ Junior college) to 480m Doshisha University (Imadegawa) (University of ・ Junior college) to 580m Otani University (University ・ 970m up to junior college) 京都出雲路郵便局(郵便局)まで360m下鴨小学校(小学校)まで415m烏丸中学校(中学校)まで466m同志社女子大学(今出川)(大学・短大)まで480m同志社大学(今出川)(大学・短大)まで580m大谷大学(大学・短大)まで970m |
Building appearance建物外観 
Securityセキュリティ 
 Security has firmly.
セキュリティがしっかりしています。
Entranceエントランス  Fashionable is the entrance.
オシャレなエントランスです。
Other common areasその他共有部分 
 This post.
ポストです。
Junior high school中学校  Karasuma 466m until junior high school (junior high school)
烏丸中学校(中学校)まで466m
Primary school小学校  Shimogamo up to elementary school (elementary school) 415m
下鴨小学校(小学校)まで415m
Post office郵便局  360m to Kyoto Izumo Road post office (post office)
京都出雲路郵便局(郵便局)まで360m
Otherその他  Is Elevator.
エレベーターです。
University ・ Junior college大学・短大  Doshisha Women's College of Liberal Arts (Imadegawa) (University of ・ 480m up to junior college)
同志社女子大学(今出川)(大学・短大)まで480m
 Doshisha University (Imadegawa) (University of ・ 580m up to junior college)
同志社大学(今出川)(大学・短大)まで580m
 Otani University (University of ・ 970m up to junior college)
大谷大学(大学・短大)まで970m
Location
|