Rentals » Kansai » Kyoto » Kamigyo-ku


Tamaya ・ Mountain three alley
Tokuyuchin is property.
key money ・ Renewal fee is no.
Bus toilet by, balcony, Gas stove correspondence, Flooring, Washbasin with shower, Indoor laundry location, System kitchen, Add-fired function bathroom, Corner dwelling unit, Elevator, Seperate, Bicycle-parking space, Delivery Box, closet, Optical fiber, Immediate Available, Key money unnecessary, Two tenants consultation, Musical Instruments consultation, Specific high-quality rental housing, 3 station more accessible, Within a 3-minute bus stop walkese-style room, All room 6 tatami mats or more, City gas
Railroad-station
Subway Karasuma / Imadegawa
Address
Kyoto-shi, Kyoto Kamigyo-ku Kagamiishi
Walk
18 minutes
Rent
100,800 yen
Management expenses
9000 yen
Security deposit
405,900 yen
Floor plan
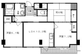
3LDK
Occupied area
67.69 sq m
Direction
East
Type
Mansion
Year Built
Built 16 years
Property name
Rental housing of Kyoto Kyohei Fujisawa Kagamiishi Imadegawa Station [Rental apartment ・ Apartment] information Property Details
Transportation facilities
Subway Karasuma / Ayumi Imadegawa 18 minutes
Subway Karasuma / Marutamachi walk 26 minutes
Subway Tozai Line / Nijo Castle before walking 26 minutes
Floor plan details
Sum 6 Hiroshi 7.2 Hiroshi 6.1 LDK10.3
Construction
Rebar Con
Story
3rd floor / 5-story
Built years
October 1998
Nonlife insurance
20,000 yen two years
Move-in
Immediately
Trade aspect
Mediation
Conditions
Two people Available / Children Allowed / Musical Instruments consultation
Property code
W12595-302
Total units
24 units
特優賃
Burden monthly 100,800 yen ~ 135,300 yen
Remarks
Kyoto City bus Omiya neutral sales station 3-minute walk
Area information
Life Nishijin store (supermarket) up to 260m Seven-Eleven Chie light Institute on Chojamachi store (convenience store) up to 372m Nishijin central elementary school (elementary school) up to 490m Nishijin post office (post office) to 620m Imadegawa Station (other) up to 1400m Marutamachi Station (Other)


Building appearance

Building appearance

Living and room

Living and room
Living and room
Living and room
Living and room
Living and room
Living and room

Kitchen

Kitchen

Bath

Bath

Toilet

Toilet

Washroom

Washroom
Washroom

Other Equipment

Other Equipment

Supermarket

Supermarket. 260m up to life Nishijin store (Super)
260m up to life Nishijin store (Super)

Convenience store

Convenience store. Seven-Eleven Chie light Institute on Chojamachi store (convenience store) to 372m
Seven-Eleven Chie light Institute on Chojamachi store (convenience store) to 372m

Primary school

Primary school. Nishijin 490m center to the elementary school (elementary school)
Nishijin 490m center to the elementary school (elementary school)

Post office

post office. Nishijin 620m until the post office (post office)
Nishijin 620m until the post office (post office)

Other

Other. 1400m to Imadegawa Station (Other)
1400m to Imadegawa Station (Other)

Other. 2070m to Marutamachi Station (Other)
2070m to Marutamachi Station (Other)



Location