Rentals » Kansai » Kyoto » Kita-ku


Corporate Tajiri
Located high convenience of shopping
2-Person Tenant is also available in 2DK of Tsuzukiai.
Bus toilet by, balcony, Gas stove correspondence, Corner dwelling unit, Seperate, Bicycle-parking space, closet, Immediate Available, Two tenants consultation, 3 station more accessibleese-style roomese-style room 8 tatami mats or more, All room 6 tatami mats or more, City gas
Railroad-station
Subway Karasuma / Kitaooji
Address
Kyoto, Kyoto Prefecture, Kita-ku, Omiyatajiri cho
Walk
28 minutes
Rent
58,000 yen
Key money
¥ 100,000
Security deposit
¥ 100,000
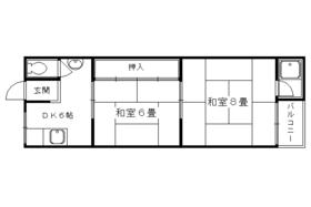
Floor plan
2DK
Occupied area
45 sq m
Direction
East
Type
Apartment
Year Built
Built 34 years
Property name
Rental housing of Kyoto, Kyoto Prefecture, Kita-ku, Omiyatajiri cho Kitaōji Station [Rental apartment ・ Apartment] information Property Details
Transportation facilities
Subway Karasuma / Ayumi Kitaooji 28 minutes
Subway Karasuma / Ayumi Kitayama 28 minutes
Subway Karasuma / Ayumi Matsugasaki 38 minutes
Floor plan details
Sum 8 sum 6 DK6
Construction
Steel frame
Story
1st floor / 2-story
Built years
July 1980
Nonlife insurance
The main
Parking lot
Site 10000 yen
Move-in
Immediately
Trade aspect
Mediation
Property code
W92327-102
Total units
6 units
Area information
Circle K Horikawa Misono Hashiten (convenience store) up to 420m Fresco Misono Bridge store (supermarket) up to 234m Kamigamo clinic (hospital) to 660m Omiya elementary school (elementary school) up to 230m Nishigamo junior high school (junior high school) until 1540m Kamigamo kindergarten (kindergarten ・ 835m to the nursery)


Building appearance

Building appearance

Living and room

Living and room
Living and room. Japanese-style room 6 quires ・ This room in the middle.
Japanese-style room 6 quires ・ This room in the middle.

Living and room. Japanese-style room 6 quires ・ This room in the middle.
Japanese-style room 6 quires ・ This room in the middle.

Kitchen

Kitchen. Two-burner gas stove that can be installed kitchen
Two-burner gas stove that can be installed kitchen

Bath

Bath

Toilet

Toilet. Toilet with a window
Toilet with a window

Receipt

Receipt. Closet of Japanese-style room 6 quires. There is a size of between about 2 minutes.
Closet of Japanese-style room 6 quires. There is a size of between about 2 minutes.

Washroom

Washroom. Independent wash basin is quite cute in a compact.
Independent wash basin is quite cute in a compact.

Balcony

Balcony. Balcony space
Balcony space

Other Equipment

Other Equipment. Installation space for the washing machine
Installation space for the washing machine

Entrance

Entrance. Entrance space
Entrance space

View

View. View from the balcony
View from the balcony

Supermarket

Supermarket. Fresco Misono Bridge store up to (super) 234m
Fresco Misono Bridge store up to (super) 234m

Convenience store

Convenience store. Circle K 420m until Horikawa Misono Hashiten (convenience store)
Circle K 420m until Horikawa Misono Hashiten (convenience store)

Junior high school

Junior high school. Nishigamo 1540m until junior high school (junior high school)
Nishigamo 1540m until junior high school (junior high school)

Primary school

Primary school. 230m to Omiya elementary school (elementary school)
230m to Omiya elementary school (elementary school)

Kindergarten ・ Nursery

kindergarten ・ Nursery. Kamigamo kindergarten (kindergarten ・ 835m to the nursery)
Kamigamo kindergarten (kindergarten ・ 835m to the nursery)

Hospital

Hospital. Kamigamo clinic until the (hospital) 660m
Kamigamo clinic until the (hospital) 660m



Location