Rentals » Kansai » Kyoto » Kita-ku


Grand Bell Jules
Family property of Omiya School District
A quiet residential area. Shopping Ease in front of the super eyes! Omiya School District
Bus toilet by, balcony, Air conditioning, Gas stove correspondence, Flooring, Washbasin with shower, Indoor laundry location, Corner dwelling unit, Seperate, Bicycle-parking space, closet, Optical fiber, Immediate Available, top floor, Deposit required, Two tenants consultation, Bike shelter, CS, 3 station more accessible, Within a 3-minute bus stop walk, No upper floorese-style room, All room 6 tatami mats or more, City gas, BS, High speed Internet correspondence
Railroad-station
Subway Karasuma / Kitaooji
Address
Kyoto, Kyoto Prefecture, Kita-ku, Omiyanakasomonguchi cho
Walk
23 minutes
Rent
76,000 yen
Management expenses
5000 Yen
Key money
¥ 100,000
Floor plan
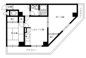
2LDK
Occupied area
51.87 sq m
Direction
East
Type
Mansion
Year Built
Built 26 years
Property name
Rental housing of Kyoto, Kyoto Prefecture, Kita-ku, Omiyanakasomonguchi cho Kitaōji Station [Rental apartment ・ Apartment] information Property Details
Transportation facilities
Subway Karasuma / Ayumi Kitaooji 23 minutes
Subway Karasuma / Ayumi Kitayama 30 minutes
Subway Karasuma / Kuramaguchi walk 39 minutes
Floor plan details
Sum 6 Hiroshi 10 LDK10
Construction
Rebar Con
Story
4th floor / 4-story
Built years
December 1988
Nonlife insurance
17,000 yen two years
Parking lot
Site 10800 yen
Move-in
Immediately
Trade aspect
Mediation
Conditions
Two people Available
Property code
K28827-401
Total units
11 units
Remarks
Kyoto City bus So Omiya door Station 1-minute walk / Patrol management
Area information
Fresh Museum Nakamura Nishigamo store (supermarket) up to 30m Kyoto Omiya Ono moat post office (post office) to 160m Kyoto Chuo Shinkin Bank Kamo Branch (Bank) to 160m Omiya elementary school (elementary school) up to 380m Dax Kitayama shop 400m Omiya to (drugstore)


Building appearance

Building appearance

Living and room

Living and room
Living and room
Living and room
Living and room

Kitchen

Kitchen

Bath

Bath

Toilet

Toilet
Toilet

Receipt

Receipt

Other Equipment

Other Equipment

Supermarket

Supermarket. 30m until fresh Museum Nakamura Nishigamo store (Super)
30m until fresh Museum Nakamura Nishigamo store (Super)

Dorakkusutoa

Dorakkusutoa. Dax Kitayama store (drugstore) to 400m
Dax Kitayama store (drugstore) to 400m

Primary school

Primary school. 380m to Omiya elementary school (elementary school)
380m to Omiya elementary school (elementary school)

Post office

post office. 160m to Kyoto Omiya Ono moat post office (post office)
160m to Kyoto Omiya Ono moat post office (post office)

Bank

Bank. Kyoto Chuo Shinkin Bank Kamo 160m to the branch (Bank)
Kyoto Chuo Shinkin Bank Kamo 160m to the branch (Bank)

Park

park. 240m to Omiya traffic park (park)
240m to Omiya traffic park (park)



Location