Rentals » Kansai » Kyoto » Kita-ku


Koyamahoriike-cho 28-2 houses for rent
Garage with 1 vehicle
Recommended for underground use.
Bus toilet by, balcony, Gas stove correspondence, TV interphone, Indoor laundry location, Add-fired function bathroom, Warm water washing toilet seat, Seperate, Bicycle-parking space, closet, Immediate Available, Sale rent, Two tenants consultation, Bike shelter, 3 station more accessible, Within a 10-minute walk stationese-style room, City gas
Railroad-station
Subway Karasuma / Kuramaguchi
Address
Kyoto, Kyoto Prefecture, Kita-ku, Koyamahoriike cho
Walk
6 minutes
Rent
120,000 yen
Key money
¥ 100,000
Security deposit
¥ 100,000
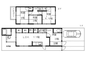
Floor plan
4LDK
Occupied area
61.08 sq m
Direction
West
Type
Residential home
Year Built
Built 45 years
Property name
Rental housing of Kyoto, Kyoto Prefecture, Kita-ku, Koyamahoriike cho Kuramaguchi Station [Rental apartment ・ Apartment] information Property Details
Transportation facilities
Subway Karasuma / Kuramaguchi walk 6 minutes
Subway Karasuma / Ayumi Kitaooji 8 minutes
Subway Karasuma / Ayumi Imadegawa 16 minutes
Floor plan details
Sum 6 sum 5.5 sum 3 Hiroshi 3 LDK11
Construction
Wooden
Story
1st floor / 2-story
Built years
July 1969
Nonlife insurance
The main
Parking lot
Free with
Move-in
Immediately
Trade aspect
Mediation
Conditions
Two people Available / Children Allowed
Property code
W84242-1
Total units
1 units
Area information
Lawson 350m social insurance until the (convenience store) up to 240m Howdy saddle music (super) Kyoto hospital (hospital) to 250m Shimei elementary school (elementary school) up to 550m Kamo River 1884m Kazusa kindergarten to junior high school (junior high school) (kindergarten ・ 410m to the nursery)


Building appearance

Building appearance

Living and room

Living and room
Living and room. Living
Living

Living and room. Living
Living

Kitchen

Kitchen. Two-burner gas stove that can be installed kitchen
Two-burner gas stove that can be installed kitchen

Bath

Bath. Bathing of spacious size with a mirror
Bathing of spacious size with a mirror

Toilet

Toilet. Established a new cleaning toilet seat
Established a new cleaning toilet seat

Receipt

Receipt. Storage of living
Storage of living

Washroom

Washroom. Undressing space there is a separate wash basin and washing machine yard
Undressing space there is a separate wash basin and washing machine yard

Balcony

Balcony. Second floor balcony
Second floor balcony

Other Equipment

Other Equipment. Monitor - with intercom equipped
Monitor - with intercom equipped

Entrance

Entrance. Entrance space
Entrance space

View

View. View from the second floor balcony
View from the second floor balcony

Supermarket

Supermarket. Howdy saddle music until the (super) 350m
Howdy saddle music until the (super) 350m

Convenience store

Convenience store. 240m until Lawson (convenience store)
240m until Lawson (convenience store)

Junior high school

Junior high school. Kamo River 1884m until junior high school (junior high school)
Kamo River 1884m until junior high school (junior high school)

Primary school

Primary school. Shimei up to elementary school (elementary school) 550m
Shimei up to elementary school (elementary school) 550m

Kindergarten ・ Nursery

kindergarten ・ Nursery. Kazusa kindergarten (kindergarten ・ 410m to the nursery)
Kazusa kindergarten (kindergarten ・ 410m to the nursery)

Hospital

Hospital. Social insurance 250m to Kyoto hospital (hospital)
Social insurance 250m to Kyoto hospital (hospital)



Location