Rentals » Kansai » Kyoto » Kita-ku
 
| Railroad-station 沿線・駅 | | Subway Karasuma / Kitaooji 地下鉄烏丸線/北大路 | Address 住所 | | Kyoto, Kyoto Prefecture, Kita-ku, Takagamineminamitakagamine cho 京都府京都市北区鷹峯南鷹峯町 | Walk 徒歩 | | 37 minutes 37分 | Rent 賃料 | | 39,000 yen 3.9万円 | Depreciation and amortization 敷引・償却金 | | 50,000 yen 5万円 | Deposit 保証金 | | 50,000 yen 5万円 | Floor plan 間取り | | 2K 2K | Occupied area 専有面積 | | 35 sq m 35m2 | Direction 向き | | East 東 | Type 種別 | | Mansion マンション | Year Built 築年 | | Built 43 years 築43年 | | Fukui Heights Takamine 福井ハイツ鷹峯 |
| Is an environment of natural plenty. 自然タップリの環境です。 |
| Quiet good location in an environment of natural plenty. 自然タップリの環境で静かな好立地です。 |
| Bus toilet by, balcony, Gas stove correspondence, Flooring, Seperate, Bicycle-parking space, closet, Immediate Available, Key money unnecessary, top floor, Deposit required, Pets Negotiable, Two tenants consultation, Bike shelter, 3 station more accessible, Within a 3-minute bus stop walk, No upper floorese-style room, City gas バストイレ別、バルコニー、ガスコンロ対応、フローリング、洗面所独立、駐輪場、押入、即入居可、礼金不要、最上階、敷金不要、ペット相談、二人入居相談、バイク置場、3駅以上利用可、バス停徒歩3分以内、上階無し、和室、都市ガス |
Property name 物件名 | | Rental housing of Kyoto, Kyoto Prefecture, Kita-ku, Takagamineminamitakagamine cho Kitaōji Station [Rental apartment ・ Apartment] information Property Details 京都府京都市北区鷹峯南鷹峯町 北大路駅の賃貸住宅[賃貸マンション・アパート]情報 物件詳細 | Transportation facilities 交通機関 | | Subway Karasuma / Ayumi Kitaooji 37 minutes Subway Karasuma / Ayumi Kitayama 45 minutes Keifuku railway Kitanosen / Kitano white plum-cho, walking 43 minutes 地下鉄烏丸線/北大路 歩37分 地下鉄烏丸線/北山 歩45分 京福電鉄北野線/北野白梅町 歩43分
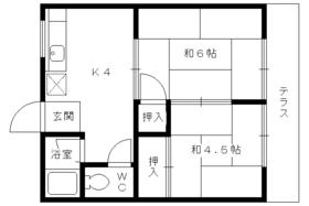
| Floor plan details 間取り詳細 | | Sum 6 sum 4.5 K4 和6 和4.5 K4 | Construction 構造 | | Steel frame 鉄骨 | Story 階建 | | Second floor / 2-story 2階/2階建 | Built years 築年月 | | March 1972 1972年3月 | Nonlife insurance 損保 | | 14,800 yen two years 1.48万円2年 | Move-in 入居 | | Immediately 即 | Trade aspect 取引態様 | | Mediation 仲介 | Conditions 条件 | | Two people Available / Children Allowed / Pets Negotiable 二人入居可/子供可/ペット相談 | Property code 取り扱い店舗物件コード | | K20815-203 K20815-203 | Total units 総戸数 | | 6 units 6戸 | Remarks 備考 | | Kyoto City bus Buddha Taniguchi Station 2-minute walk / Patrol management 京都市バス釈迦谷口駅徒歩2分/巡回管理 | Area information 周辺情報 | | Takamine elementary school (Takagaminekitatakagamine-cho) 762m Asahigaoka junior high school until the (elementary school) up to 269m Seven-Eleven Kyoto Takagaminefujibayashi store (convenience store) up to 645m Dax Kitayama store (drugstore) to 746m business super Kitayama store (Super) (Murasakinohigashirendaino 鷹峯小学校(鷹峯北鷹峯町)(小学校)まで269mセブンイレブン 京都鷹峯藤林店(コンビニ)まで645mダックス北山店(ドラッグストア)まで746m業務スーパー 北山店(スーパー)まで762m旭丘中学校(紫野東蓮台野町)(中学校)まで920m社会保険京都病院(病院)まで2800m |
Building appearance建物外観 
Living and room居室・リビング 


Kitchenキッチン 

Bathバス 
Toiletトイレ 
Receipt収納 
Other Equipmentその他設備 

Entrance玄関 
Supermarketスーパー  762m to business super Kitayama store (Super)
業務スーパー 北山店(スーパー)まで762m
Convenience storeコンビニ  Seven-Eleven Kyoto Takagaminefujibayashi store up (convenience store) 645m
セブンイレブン 京都鷹峯藤林店(コンビニ)まで645m
Dorakkusutoaドラックストア  Dax Kitayama shop 746m until (drugstore)
ダックス北山店(ドラッグストア)まで746m
Junior high school中学校  Asahigaoka 920m until junior high school (Murasakinohigashirendaino Town) (junior high school)
旭丘中学校(紫野東蓮台野町)(中学校)まで920m
Primary school小学校  Takamine until the elementary school (Takagaminekitatakagamine Town) (Elementary School) 269m
鷹峯小学校(鷹峯北鷹峯町)(小学校)まで269m
Hospital病院  2800m until the Social Insurance Kyoto Hospital (Hospital)
社会保険京都病院(病院)まで2800m
Location
|