Rentals » Kansai » Kyoto » Kita-ku
 
| Railroad-station 沿線・駅 | | Eizan Electric Railway Kuramasen / Kyotoseikadai before 叡山電鉄鞍馬線/京都精華大前 | Address 住所 | | Kyoto, Kyoto Prefecture, Kita-ku, Kamigamomotoyama 京都府京都市北区上賀茂本山 | Walk 徒歩 | | 9 minutes 9分 | Rent 賃料 | | ¥ 100,000 10万円 | Depreciation and amortization 敷引・償却金 | | 400,000 yen 40万円 | Deposit 保証金 | | 500,000 yen 50万円 | Floor plan 間取り | | 3LDK 3LDK | Occupied area 専有面積 | | 78.67 sq m 78.67m2 | Direction 向き | | South 南 | Type 種別 | | Residential home 一戸建て | Year Built 築年 | | Built 12 years 築12年 | | Kamigamomotoyama rental 上賀茂本山貸家 |
| Built in 3LDK loan 2002 2002年築の3LDK貸 |
| Close to the built in rental housing appearance 2002 Kyoto Seika University 京都精華大学近くに2002年築の貸家登場 |
| Bus toilet by, balcony, Air conditioning, Gas stove correspondence, Flooring, Indoor laundry location, Facing south, Seperate, Bicycle-parking space, closet, Immediate Available, Key money unnecessary, Deposit required, Sale rent, Two tenants consultation, LDK15 tatami mats or more, 3 station more accessible, Within a 10-minute walk stationese-style room, propane gas バストイレ別、バルコニー、エアコン、ガスコンロ対応、フローリング、室内洗濯置、南向き、洗面所独立、駐輪場、押入、即入居可、礼金不要、敷金不要、分譲賃貸、二人入居相談、LDK15畳以上、3駅以上利用可、駅徒歩10分以内、和室、プロパンガス |
Property name 物件名 | | Kyoto, Kyoto Prefecture, Kita-ku, Kamigamomotoyama Kyoto Seikadai-mae Station of rental housing [Rental apartment ・ Apartment] information Property Details 京都府京都市北区上賀茂本山 京都精華大前駅の賃貸住宅[賃貸マンション・アパート]情報 物件詳細 | Transportation facilities 交通機関 | | Eizan Electric Railway Kuramasen / Kyotoseikadai before walking 9 minutes Eizan Electric Railway Kuramasen / Nikenchaya walk 13 minutes Eizan Electric Railway Kuramasen / Ayumi Kino 15 minutes 叡山電鉄鞍馬線/京都精華大前 歩9分 叡山電鉄鞍馬線/二軒茶屋 歩13分 叡山電鉄鞍馬線/木野 歩15分
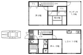
| Floor plan details 間取り詳細 | | Sum 6 Hiroshi 8 Hiroshi 4.5 LDK16 和6 洋8 洋4.5 LDK16 | Construction 構造 | | Wooden 木造 | Story 階建 | | 1st floor / 2-story 1階/2階建 | Built years 築年月 | | June 2002 2002年6月 | Nonlife insurance 損保 | | The main 要 | Parking lot 駐車場 | | Free with 付無料 | Move-in 入居 | | Immediately 即 | Trade aspect 取引態様 | | Mediation 仲介 | Conditions 条件 | | Two people Available / Children Allowed 二人入居可/子供可 | Property code 取り扱い店舗物件コード | | K61311-A K61311-A | Total units 総戸数 | | 1 units 1戸 | Fixed-term lease 定期借家 | | Fixed term lease three years 定期借家 3年 | Area information 周辺情報 | | Seven-Eleven Kamigamoniken'ya cho store (convenience store) 1100m Kyoto philanthropy up to 715m Kyoto Chuo Shinkin Bank Nikenchaya Branch (Bank) up to 821m MINISTOP Kyoto static City store (convenience store) up to 853m Kyoto Iwakurahataeda post office (post office) セブンイレブン 上賀茂二軒家町店(コンビニ)まで715m京都中央信用金庫 二軒茶屋支店(銀行)まで821mミニストップ 京都静市店(コンビニ)まで853m京都岩倉幡枝郵便局(郵便局)まで1100m京都博愛会病院(病院)まで1300mダックス北山東店(ドラッグストア)まで1600m |
Building appearance建物外観 
Living and room居室・リビング 
 Spacious is the living room of 16 quires.
広々16帖のリビングです。
 Spacious is the living room of 16 quires.
広々16帖のリビングです。
 4.5 is the Pledge of Western-style.
4.5帖の洋室です。
 4.5 is the Pledge of Western-style.
4.5帖の洋室です。
 4.5 Pledge is a Western-style storage.
4.5帖の洋室の収納です。
Kitchenキッチン  Kitchen.
キッチンです。
Bathバス  It is Reheating function with bathroom.
追い焚き機能付浴室です。
Toiletトイレ  Washlet toilet.
ウォシュレットトイレです。
Other room spaceその他部屋・スペース  Corridor.
廊下です。
Washroom洗面所  Independence is a wash basin.
独立洗面台です。
Entrance玄関  It is entrance.
玄関です。
Convenience storeコンビニ  715m to Seven-Eleven Kamigamoniken'ya the town store (convenience store)
セブンイレブン 上賀茂二軒家町店(コンビニ)まで715m
 MINISTOP Kyoto static City store (convenience store) to 853m
ミニストップ 京都静市店(コンビニ)まで853m
Dorakkusutoaドラックストア  Dax Kitayama Higashiten 1600m until (drugstore)
ダックス北山東店(ドラッグストア)まで1600m
Hospital病院  1300m to Kyoto philanthropy Association Hospital (Hospital)
京都博愛会病院(病院)まで1300m
Post office郵便局  1100m to Kyoto Iwakurahataeda post office (post office)
京都岩倉幡枝郵便局(郵便局)まで1100m
Bank銀行  Kyoto Chuo Shinkin Bank Nikenchaya 821m to the branch (Bank)
京都中央信用金庫 二軒茶屋支店(銀行)まで821m
Location
|