Rentals » Kansai » Kyoto » Kita-ku
 
| Railroad-station 沿線・駅 | | Subway Karasuma / Kitaooji 地下鉄烏丸線/北大路 | Address 住所 | | Kyoto, Kyoto Prefecture, Kita-ku, Omiyaichinoi cho 京都府京都市北区大宮一ノ井町 | Walk 徒歩 | | 32 minutes 32分 | Rent 賃料 | | 52,000 yen 5.2万円 | Security deposit 敷金 | | 150,000 yen 15万円 | Floor plan 間取り | | 2DK 2DK | Occupied area 専有面積 | | 30.3 sq m 30.3m2 | Direction 向き | | Southwest 南西 | Type 種別 | | Mansion マンション | Year Built 築年 | | Built 31 years 築31年 | | Evans 18 エバンス18 |
| Parking surprised 2DK 駐車場込みびっくり2DK |
| Parking is one lump of your rent. You can live a long time in the renewal fee without. 駐車場1台込みのお家賃です。更新料ナシで永く住んで頂けます。 |
| Bus toilet by, balcony, Air conditioning, Gas stove correspondence, Corner dwelling unit, Bicycle-parking space, closet, CATV, Immediate Available, Key money unnecessary, top floor, CATV Internet, Two tenants consultation, 3 station more accessible, No upper floor, Southwestwardese-style room, City gas, High speed Internet correspondence バストイレ別、バルコニー、エアコン、ガスコンロ対応、角住戸、駐輪場、押入、CATV、即入居可、礼金不要、最上階、CATVインターネット、二人入居相談、3駅以上利用可、上階無し、南西向き、和室、都市ガス、高速ネット対応 |
Property name 物件名 | | Rental housing of Kyoto, Kyoto Prefecture, Kita-ku, Omiyaichinoi cho Kitaōji Station [Rental apartment ・ Apartment] information Property Details 京都府京都市北区大宮一ノ井町 北大路駅の賃貸住宅[賃貸マンション・アパート]情報 物件詳細 | Transportation facilities 交通機関 | | Subway Karasuma / Ayumi Kitaooji 32 minutes Subway Karasuma / Ayumi Kitayama 39 minutes Subway Karasuma / Kuramaguchi walk 45 minutes 地下鉄烏丸線/北大路 歩32分 地下鉄烏丸線/北山 歩39分 地下鉄烏丸線/鞍馬口 歩45分
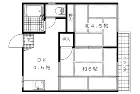
| Floor plan details 間取り詳細 | | Sum 6 sum 4.5 DK4.5 和6 和4.5 DK4.5 | Construction 構造 | | Steel frame 鉄骨 | Story 階建 | | Second floor / 2-story 2階/2階建 | Built years 築年月 | | December 1983 1983年12月 | Nonlife insurance 損保 | | 20,000 yen two years 2万円2年 | Parking lot 駐車場 | | Free with 付無料 | Move-in 入居 | | Immediately 即 | Trade aspect 取引態様 | | Mediation 仲介 | Conditions 条件 | | Two people Available / Children Allowed 二人入居可/子供可 | Property code 取り扱い店舗物件コード | | K29952-203 K29952-203 | Total units 総戸数 | | 12 units 12戸 | Remarks 備考 | | Kyoto City bus GenMigakushita Station 5-minute walk 京都市バス玄琢下駅徒歩5分 | Area information 周辺情報 | | Seven-Eleven Kyoto Omiya Kitabakonoi town store (convenience store) up to 280m Dax Kitayama store (drugstore) to 320m Omiya traffic park (park) up to 480m drag Hikari Zizhu store (drugstore) to 600m Gourmet City Kitayama store (supermarket) to 640m Kyoto セブンイレブン京都大宮北箱ノ井町店(コンビニ)まで280mダックス 北山店(ドラッグストア)まで320m大宮交通公園(公園)まで480mドラッグひかり 紫竹店(ドラッグストア)まで600mグルメシティ 北山店(スーパー)まで640m京都銀行 紫野支店(銀行)まで640m |
Building appearance建物外観 


Parking lot駐車場 

Other common areasその他共有部分 
View眺望 

Supermarketスーパー  640m until Gourmet City Kitayama store (Super)
グルメシティ 北山店(スーパー)まで640m
Convenience storeコンビニ  Seven-Eleven Kyoto Omiya Kitabakonoi town store up to (convenience store) 280m
セブンイレブン京都大宮北箱ノ井町店(コンビニ)まで280m
Dorakkusutoaドラックストア  Dax Kitayama shop 320m until (drugstore)
ダックス 北山店(ドラッグストア)まで320m
 Drag Light Zizhu shop 600m until (drugstore)
ドラッグひかり 紫竹店(ドラッグストア)まで600m
Bank銀行  Bank of Kyoto Murasakino 640m to the branch (Bank)
京都銀行 紫野支店(銀行)まで640m
Park公園  480m to Omiya traffic park (park)
大宮交通公園(公園)まで480m
Location
|