Rentals » Kansai » Kyoto » Kamigyo-ku
 
| Railroad-station 沿線・駅 | | Subway Karasuma / Imadegawa 地下鉄烏丸線/今出川 | Address 住所 | | Kyoto-shi, Kyoto Kamigyo-ku Hanshuinmae cho 京都府京都市上京区般舟院前町 | Walk 徒歩 | | 19 minutes 19分 | Rent 賃料 | | 47,000 yen 4.7万円 | Key money 礼金 | | 50,000 yen 5万円 | Security deposit 敷金 | | 20,000 yen 2万円 | Floor plan 間取り | | 1K 1K | Occupied area 専有面積 | | 24.88 sq m 24.88m2 | Direction 向き | | North 北 | Type 種別 | | Mansion マンション | Year Built 築年 | | Built 24 years 築24年 | | DETOM-1 Imadegawa through DETOM-1今出川通 |
| Sale rental apartments 分譲賃貸マンション |
| Walk from the Co-op 3 minutes. It is conveniently located to shopping. auto lock, There Elevator. It is handy condominium recommended for students. コープまで徒歩3分。お買い物に便利な立地です。 オートロック、エレベーターあります。 学生さんにオススメのお手軽分譲マンションです。 |
| balcony, Air conditioning, Flooring, auto lock, Indoor laundry location, Elevator, Bicycle-parking space, Optical fiber, Immediate Available, Electric stove, Sale rent, All room Western-style, refrigerator, Washing machine, 3 station more accessible, 8 tatami greater than or equal to a total room, City gas, BS, High speed Internet correspondence バルコニー、エアコン、フローリング、オートロック、室内洗濯置、エレベーター、駐輪場、光ファイバー、即入居可、電気コンロ、分譲賃貸、全居室洋室、冷蔵庫、洗濯機、3駅以上利用可、全居室8畳以上、都市ガス、BS、高速ネット対応 |
Property name 物件名 | | Rental housing of Kyoto Kyohei Fujisawa Hanshuinmae cho Imadegawa Station [Rental apartment ・ Apartment] information Property Details 京都府京都市上京区般舟院前町 今出川駅の賃貸住宅[賃貸マンション・アパート]情報 物件詳細 | Transportation facilities 交通機関 | | Subway Karasuma / Ayumi Imadegawa 19 minutes Keifuku railway Kitanosen / Kitano white plum-cho, walking 15 minutes Subway Karasuma / Kuramaguchi walk 30 minutes 地下鉄烏丸線/今出川 歩19分 京福電鉄北野線/北野白梅町 歩15分 地下鉄烏丸線/鞍馬口 歩30分
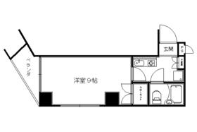
| Floor plan details 間取り詳細 | | Hiroshi 9 K1 洋9 K1 | Construction 構造 | | Steel rebar 鉄骨鉄筋 | Story 階建 | | 6th floor / 11-storey 6階/11階建 | Built years 築年月 | | January 1991 1991年1月 | Nonlife insurance 損保 | | 10,000 yen per year 1万円1年 | Move-in 入居 | | Immediately 即 | Trade aspect 取引態様 | | Mediation 仲介 | Property code 取り扱い店舗物件コード | | W20274-603 W20274-603 | Total units 総戸数 | | 59 units 59戸 | Area information 周辺情報 | | Nishijin 110m Seven-Eleven to the post office (post office) Kyoto Nishijin post office store (convenience store) up to 120m FamilyMart Senbon Sasaya-cho store (convenience store) up to 170m Kyoto Co-op Co-op Nishijin (super) 670m to 180m Nishijin Hospital (hospital) to Doshisha University (Imadegawa) (University of ・ 1595m up to junior college) 西陣郵便局(郵便局)まで110mセブンイレブン 京都西陣郵便局店(コンビニ)まで120mファミリーマート千本笹屋町店(コンビニ)まで170m京都生活協同組合 コープ西陣(スーパー)まで180m西陣病院(病院)まで670m同志社大学(今出川)(大学・短大)まで1595m |
Building appearance建物外観 


Living and room居室・リビング 


Kitchenキッチン 
Bathバス 
Receipt収納 
Other room spaceその他部屋・スペース 
Balconyバルコニー 
Entrance玄関 
View眺望 
Supermarketスーパー  Kyoto Co-op 180m to Cope Nishijin (super)
京都生活協同組合 コープ西陣(スーパー)まで180m
Convenience storeコンビニ  seven Eleven 120m to Kyoto Nishijin post office store (convenience store)
セブンイレブン 京都西陣郵便局店(コンビニ)まで120m
 FamilyMart Senbon Sasaya-cho store (convenience store) to 170m
ファミリーマート千本笹屋町店(コンビニ)まで170m
Hospital病院  Nishijin 670m to the hospital (hospital)
西陣病院(病院)まで670m
Post office郵便局  Nishijin 110m until the post office (post office)
西陣郵便局(郵便局)まで110m
University ・ Junior college大学・短大  Doshisha University (Imadegawa) (University of ・ 1595m up to junior college)
同志社大学(今出川)(大学・短大)まで1595m
Location
|