Rentals » Kansai » Kyoto » Kita-ku


First Hiiragitani Heights
Surrounded by nature Kukino 2DK
Kukino Heights, surrounded by nature. Pat dishes in the two-burner stove installed OK
Bus toilet by, balcony, Air conditioning, Gas stove correspondence, Flooring, Facing south, Seperate, Bicycle-parking space, closet, Immediate Available, top floor, Two tenants consultation, 3 station more accessible, No upper floorese-style room, City gas
Railroad-station
Subway Karasuma / Kitaooji
Address
Kyoto, Kyoto Prefecture, Kita-ku, Kamigamohiiragidani cho
Walk
52 minutes
Rent
45,000 yen
Key money
50,000 yen
Security deposit
50,000 yen
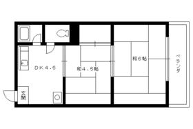
Floor plan
2DK
Occupied area
30 sq m
Direction
South
Type
Apartment
Year Built
Built 29 years
Property name
Rental housing of Kyoto, Kyoto Prefecture, Kita-ku, Kamigamohiiragidani cho Kitaōji Station [Rental apartment ・ Apartment] information Property Details
Transportation facilities
Subway Karasuma / Ayumi Kitaooji 52 minutes
Eizan Electric Railway Kuramasen / Nikenchaya walk 38 minutes
Subway Karasuma / Ayumi Kitayama 55 minutes
Floor plan details
Sum 6 sum 4.5 DK4.5
Construction
Light-gauge steel
Story
Second floor / 2-story
Built years
August 1985
Nonlife insurance
The main
Parking lot
On-site 5000 yen
Move-in
Immediately
Trade aspect
Mediation
Conditions
Two people Available / Children Allowed
Property code
K27881-203
Total units
18 units
Remarks
Kyoto bus Kukino Station a 10-minute walk / Patrol management
Area information
Circle K Kamigamo (convenience store) up to 1400m Kukino stations (post office) to 1450m MG shop Nishigamo store (supermarket) up to 3100m to 1500m Kyoto philanthropy Association Hospital (Hospital) Kyoto Sangyo University (University ・ Junior college) until 1720m Kyoto Seika University (University ・ 3820m up to junior college)


Building appearance

Building appearance

Living and room

Living and room
Living and room
Living and room
Living and room

Kitchen

Kitchen

Bath

Bath

Toilet

Toilet

Receipt

Receipt

Washroom

Washroom

Balcony

Balcony

Entrance

Entrance

Supermarket

Supermarket. MG shop Nishigamo store up to (super) 1500m
MG shop Nishigamo store up to (super) 1500m

Convenience store

Convenience store. 1400m to Circle K Kamigamo (convenience store)
1400m to Circle K Kamigamo (convenience store)

Hospital

Hospital. 3100m to Kyoto philanthropy Association Hospital (Hospital)
3100m to Kyoto philanthropy Association Hospital (Hospital)

Post office

post office. 1450m to Kukino stations (post office)
1450m to Kukino stations (post office)

University ・ Junior college

University ・ Junior college. Kyoto Sangyo University (University of ・ 1720m up to junior college)
Kyoto Sangyo University (University of ・ 1720m up to junior college)

University ・ Junior college. Kyoto Seika University (University of ・ 3820m up to junior college)
Kyoto Seika University (University of ・ 3820m up to junior college)



Location