Rentals » Kansai » Kyoto » Kita-ku
 
| Railroad-station 沿線・駅 | | Subway Karasuma / Kitaooji 地下鉄烏丸線/北大路 | Address 住所 | | Kyoto, Kyoto Prefecture, Kita-ku, Omiyayakushiyamanishi cho 京都府京都市北区大宮薬師山西町 | Walk 徒歩 | | 34 minutes 34分 | Rent 賃料 | | 75,000 yen 7.5万円 | Key money 礼金 | | 75,000 yen 7.5万円 | Security deposit 敷金 | | 75,000 yen 7.5万円 | Floor plan 間取り | | 3DK 3DK | Occupied area 専有面積 | | 56.26 sq m 56.26m2 | Direction 向き | | North 北 | Type 種別 | | terrace ・ Townhouse テラス・タウンハウス | Year Built 築年 | | Built 23 years 築23年 | | Omiyayakushiyamanishi Town, rental housing II 大宮薬師山西町貸家II |
| Pets considered Houses for rent ペット相談可 貸家 |
| One is a box PARKING. You can also consult a pet. ワンボックス駐車可です。ペットも相談できますよ。 |
| Bus toilet by, balcony, Air conditioning, Gas stove correspondence, Indoor laundry location, Bicycle-parking space, closet, Immediate Available, Pets Negotiable, Deposit 1 month, Two tenants consultation, 3 station more accessibleese-style room, propane gas, Key money one month バストイレ別、バルコニー、エアコン、ガスコンロ対応、室内洗濯置、駐輪場、押入、即入居可、ペット相談、敷金1ヶ月、二人入居相談、3駅以上利用可、和室、プロパンガス、礼金1ヶ月 |
Property name 物件名 | | Rental housing of Kyoto, Kyoto Prefecture, Kita-ku, Omiyayakushiyamanishi cho Kitaōji Station [Rental apartment ・ Apartment] information Property Details 京都府京都市北区大宮薬師山西町 北大路駅の賃貸住宅[賃貸マンション・アパート]情報 物件詳細 | Transportation facilities 交通機関 | | Subway Karasuma / Ayumi Kitaooji 34 minutes Subway Karasuma / Ayumi Kitayama 37 minutes Subway Karasuma / Kuramaguchi walk 49 minutes 地下鉄烏丸線/北大路 歩34分 地下鉄烏丸線/北山 歩37分 地下鉄烏丸線/鞍馬口 歩49分
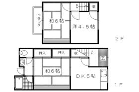
| Floor plan details 間取り詳細 | | Sum 6 sum 4.5 Hiroshi 6 DK4 和6 和4.5 洋6 DK4 | Construction 構造 | | Wooden 木造 | Story 階建 | | 1st floor / 2-story 1階/2階建 | Built years 築年月 | | December 1991 1991年12月 | Nonlife insurance 損保 | | The main 要 | Move-in 入居 | | Immediately 即 | Trade aspect 取引態様 | | Mediation 仲介 | Conditions 条件 | | Two people Available / Children Allowed / Pets Negotiable 二人入居可/子供可/ペット相談 | Property code 取り扱い店舗物件コード | | K50218-2 K50218-2 | Total units 総戸数 | | 4 units 4戸 | Remarks 備考 | | Kyoto City bus Yamanomae-cho Station 6-minute walk 京都市バス山ノ前町駅徒歩6分 | Area information 周辺情報 | | Kyoto Omiya Ono moat post office (post office) to 584m Fresh Pavilion Nakamura Nishigamo store (super) 679m Bukkyo University 602m Takamine to elementary school (elementary school) to (University ・ Junior college) until 1750m Kitaōji Station (other) up to 2700m Kitayama Station (other) up to 2900m 京都大宮小野堀郵便局(郵便局)まで584m生鮮館なかむら 西賀茂店(スーパー)まで602m鷹峯小学校(小学校)まで679m佛教大学(大学・短大)まで1750m北大路駅(その他)まで2700m北山駅(その他)まで2900m |
Building appearance建物外観 
Living and room居室・リビング 


Kitchenキッチン 
Bathバス 
Toiletトイレ 
Receipt収納 
Washroom洗面所 
Balconyバルコニー 
Entrance玄関 

Supermarketスーパー  Fresh Museum Nakamura Nishigamo store up to (super) 602m
生鮮館なかむら 西賀茂店(スーパー)まで602m
Primary school小学校  Takamine until the elementary school (elementary school) 679m
鷹峯小学校(小学校)まで679m
Post office郵便局  584m to Kyoto Omiya Ono moat post office (post office)
京都大宮小野堀郵便局(郵便局)まで584m
University ・ Junior college大学・短大  Buddhist University (University ・ 1750m up to junior college)
佛教大学(大学・短大)まで1750m
Otherその他  2700m to Kitaōji Station (Other)
北大路駅(その他)まで2700m
 2900m to Kitayama Station (Other)
北山駅(その他)まで2900m
Location
|