Rentals » Kansai » Kyoto » Kita-ku
 
| Railroad-station 沿線・駅 | | Subway Karasuma / Kitaooji 地下鉄烏丸線/北大路 | Address 住所 | | Kyoto, Kyoto Prefecture, Kita-ku, Takagaminekyudoi cho 京都府京都市北区鷹峯旧土居町 | Walk 徒歩 | | 34 minutes 34分 | Rent 賃料 | | 45,000 yen 4.5万円 | Management expenses 管理費・共益費 | | 3000 yen 3000円 | Deposit 保証金 | | 50,000 yen 5万円 | Floor plan 間取り | | 1K 1K | Occupied area 専有面積 | | 21 sq m 21m2 | Direction 向き | | South 南 | Type 種別 | | Apartment アパート | Year Built 築年 | | Built 13 years 築13年 | | Mogami Mansion モガミマンション |
| No renewal fee! 更新料無し! |
| Deposit, Attractive recruitment without key money 敷金、礼金無しでの募集が魅力的 |
| Bus toilet by, balcony, Air conditioning, Gas stove correspondence, Flooring, Facing south, Bicycle-parking space, closet, Immediate Available, Key money unnecessary, top floor, Deposit required, All room Western-style, Bike shelter, 3 station more accessible, No upper floor, 8 tatami greater than or equal to a total room, City gas バストイレ別、バルコニー、エアコン、ガスコンロ対応、フローリング、南向き、駐輪場、押入、即入居可、礼金不要、最上階、敷金不要、全居室洋室、バイク置場、3駅以上利用可、上階無し、全居室8畳以上、都市ガス |
Property name 物件名 | | Rental housing of Kyoto, Kyoto Prefecture, Kita-ku, Takagaminekyudoi cho Kitaōji Station [Rental apartment ・ Apartment] information Property Details 京都府京都市北区鷹峯旧土居町 北大路駅の賃貸住宅[賃貸マンション・アパート]情報 物件詳細 | Transportation facilities 交通機関 | | Subway Karasuma / Ayumi Kitaooji 34 minutes Keifuku railway Kitanosen / Kitano white plum-cho, walking 39 minutes Subway Karasuma / Kuramaguchi walk 44 minutes 地下鉄烏丸線/北大路 歩34分 京福電鉄北野線/北野白梅町 歩39分 地下鉄烏丸線/鞍馬口 歩44分
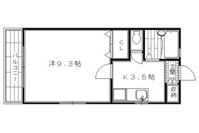
| Floor plan details 間取り詳細 | | Hiroshi 9.3 K3.5 洋9.3 K3.5 | Construction 構造 | | Steel frame 鉄骨 | Story 階建 | | Second floor / 2-story 2階/2階建 | Built years 築年月 | | April 2002 2002年4月 | Nonlife insurance 損保 | | 15,000 yen two years 1.5万円2年 | Move-in 入居 | | Immediately 即 | Trade aspect 取引態様 | | Mediation 仲介 | Property code 取り扱い店舗物件コード | | W15251-201 W15251-201 | Total units 総戸数 | | 5 units 5戸 | Area information 周辺情報 | | Seven-Eleven Kyoto Takagaminefujibayashi store (convenience store) up to 361m Fresco Zizhu store (supermarket) up to 784m Kamo Hospital (hospital) to 861m drag Yutaka Zizhu shop 370m Kyoto Chuo Shinkin Bank hawk until (drugstore) to 540m Kyoto Takamine post office (post office) セブンイレブン京都鷹峯藤林店(コンビニ)まで361mフレスコ 紫竹店(スーパー)まで784m賀茂病院(病院)まで861mドラッグユタカ 紫竹店(ドラッグストア)まで540m京都鷹峯郵便局(郵便局)まで370m京都中央信用金庫 鷹峯出張所(銀行)まで320m |
Building appearance建物外観 
Living and room居室・リビング 


Kitchenキッチン  Two-burner stove can be installed
二口コンロ設置可能
Bathバス 
Toiletトイレ 
Receipt収納  You can store plenty
たっぷり収納できます
Other room spaceその他部屋・スペース 
Washroom洗面所 
Balconyバルコニー 
Other Equipmentその他設備  It is the Laundry Area
洗濯機置場です
Entrance玄関 
Supermarketスーパー  Fresco Zizhu store up to (super) 784m
フレスコ 紫竹店(スーパー)まで784m
Convenience storeコンビニ  Seven-Eleven Kyoto Takagaminefujibayashi store up (convenience store) 361m
セブンイレブン京都鷹峯藤林店(コンビニ)まで361m
Dorakkusutoaドラックストア  Drag Yutaka Zizhu shop 540m until (drugstore)
ドラッグユタカ 紫竹店(ドラッグストア)まで540m
Hospital病院  Kamo 861m to the hospital (hospital)
賀茂病院(病院)まで861m
Post office郵便局  370m to Kyoto Takamine post office (post office)
京都鷹峯郵便局(郵便局)まで370m
Bank銀行  Kyoto Chuo Shinkin Bank Takamine 320m until the branch (Bank)
京都中央信用金庫 鷹峯出張所(銀行)まで320m
Location
|