Rentals » Kansai » Kyoto » Kita-ku
 
| Railroad-station 沿線・駅 | | Subway Karasuma / Kitayama 地下鉄烏丸線/北山 | Address 住所 | | Kyoto, Kyoto Prefecture, Kita-ku, Omiyanishionobori cho 京都府京都市北区大宮西小野堀町 | Walk 徒歩 | | Half an hour 30分 | Rent 賃料 | | 80,000 yen 8万円 | Management expenses 管理費・共益費 | | 9000 yen 9000円 | Key money 礼金 | | ¥ 100,000 10万円 | Floor plan 間取り | | 2LDK 2LDK | Occupied area 専有面積 | | 52.4 sq m 52.4m2 | Direction 向き | | East 東 | Type 種別 | | Mansion マンション | Year Built 築年 | | Built 22 years 築22年 | | The second Maison ・ Misono 第2メゾン・ミソノ |
| Garbage is comfortable in recovery every day ゴミは毎日回収で快適 |
| Super eyes before the convenience store ・ post office ・ Shopping street near life convenient. Renewal fee Mu スーパー目の前コンビニ・郵便局・商店街近く生活便利。更新料無 |
| Bus toilet by, balcony, Air conditioning, Gas stove correspondence, Flooring, Washbasin with shower, auto lock, Indoor laundry location, Warm water washing toilet seat, Elevator, Seperate, Bicycle-parking space, closet, Immediate Available, top floor, Deposit required, Two tenants consultation, 3 station more accessible, Within a 3-minute bus stop walk, No upper floorese-style room, All room 6 tatami mats or more, City gas, BS バストイレ別、バルコニー、エアコン、ガスコンロ対応、フローリング、シャワー付洗面台、オートロック、室内洗濯置、温水洗浄便座、エレベーター、洗面所独立、駐輪場、押入、即入居可、最上階、敷金不要、二人入居相談、3駅以上利用可、バス停徒歩3分以内、上階無し、和室、全居室6畳以上、都市ガス、BS |
Property name 物件名 | | Rental housing of Kyoto, Kyoto Prefecture, Kita-ku, Omiyanishionobori cho Kitayama Station [Rental apartment ・ Apartment] information Property Details 京都府京都市北区大宮西小野堀町 北山駅の賃貸住宅[賃貸マンション・アパート]情報 物件詳細 | Transportation facilities 交通機関 | | Subway Karasuma / Ayumi Kitayama 30 minutes Subway Karasuma / Ayumi Kitaooji 30 minutes Subway Karasuma / Kuramaguchi walk 39 minutes 地下鉄烏丸線/北山 歩30分 地下鉄烏丸線/北大路 歩30分 地下鉄烏丸線/鞍馬口 歩39分
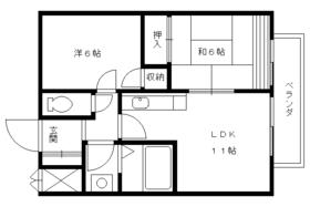
| Floor plan details 間取り詳細 | | Sum 6 Hiroshi 6 LDK11 和6 洋6 LDK11 | Construction 構造 | | Rebar Con 鉄筋コン | Story 階建 | | 5th floor / 5-story 5階/5階建 | Built years 築年月 | | August 1992 1992年8月 | Nonlife insurance 損保 | | 20,100 yen two years 2.01万円2年 | Move-in 入居 | | Immediately 即 | Trade aspect 取引態様 | | Mediation 仲介 | Conditions 条件 | | Two people Available / Children Allowed 二人入居可/子供可 | Property code 取り扱い店舗物件コード | | K21086-502 K21086-502 | Total units 総戸数 | | 14 units 14戸 | Remarks 備考 | | Kyoto City bus So Omiya door Station 3-minute walk / Patrol management 京都市バス大宮総門口駅徒歩3分/巡回管理 | Area information 周辺情報 | | Fresh Museum Nakamura Nishigamo store (supermarket) up to 80m Kyoto Omiya Ono moat post office (post office) to 130m Lawson Omiyaminamiyamanomae store (convenience store) up to 150m Kyoto Chuo Shinkin Bank Kamo Branch (Bank) to 240m Omiya traffic park (park) 生鮮館なかむら 西賀茂店(スーパー)まで80m京都大宮小野堀郵便局(郵便局)まで130mローソン大宮南山ノ前店(コンビニ)まで150m京都中央信用金庫 賀茂支店(銀行)まで240m大宮交通公園(公園)まで240m京都中央信用金庫 賀茂支店(銀行)まで300m |
Building appearance建物外観 
Living and room居室・リビング 



Kitchenキッチン 

Bathバス 
Toiletトイレ 
Receipt収納 
Other Equipmentその他設備 


Supermarketスーパー  80m until fresh Museum Nakamura Nishigamo store (Super)
生鮮館なかむら 西賀茂店(スーパー)まで80m
Convenience storeコンビニ  150m until Lawson Omiyaminamiyamanomae store (convenience store)
ローソン大宮南山ノ前店(コンビニ)まで150m
Post office郵便局  130m to Kyoto Omiya Ono moat post office (post office)
京都大宮小野堀郵便局(郵便局)まで130m
Bank銀行  Kyoto Chuo Shinkin Bank Kamo 240m to the branch (Bank)
京都中央信用金庫 賀茂支店(銀行)まで240m
Park公園  240m to Omiya traffic park (park)
大宮交通公園(公園)まで240m
Location
|