1964October
38,000 yen, 3K, Second floor / 2-story, 22 sq m
Rentals » Kansai » Kyoto » Kita-ku
 
| Railroad-station 沿線・駅 | | Subway Karasuma / Kitaooji 地下鉄烏丸線/北大路 | Address 住所 | | Kyoto, Kyoto Prefecture, Kita-ku, Shichikukitadaimon cho 京都府京都市北区紫竹北大門町 | Walk 徒歩 | | 25 minutes 25分 | Rent 賃料 | | 38,000 yen 3.8万円 | Key money 礼金 | | 30,000 yen 3万円 | Security deposit 敷金 | | 50,000 yen 5万円 | Floor plan 間取り | | 3K 3K | Occupied area 専有面積 | | 22 sq m 22m2 | Direction 向き | | North 北 | Type 種別 | | Apartment アパート | Year Built 築年 | | Built 50 years 築50年 | | Seifuso 清風荘 |
| Water ・ Gas Daitsuki 3500 yen 水道・ガス代月3500円 |
| It is a rare property. 珍しい物件です。 |
| Bus toilet by, Gas stove correspondence, Indoor laundry location, Corner dwelling unit, closet, Immediate Available, top floor, Sorting, Two tenants consultation, 3 station more accessible, No upper floorese-style room, propane gas バストイレ別、ガスコンロ対応、室内洗濯置、角住戸、押入、即入居可、最上階、振分、二人入居相談、3駅以上利用可、上階無し、和室、プロパンガス |
Property name 物件名 | | Rental housing of Kyoto, Kyoto Prefecture, Kita-ku, Shichikukitadaimon cho Kitaōji Station [Rental apartment ・ Apartment] information Property Details 京都府京都市北区紫竹北大門町 北大路駅の賃貸住宅[賃貸マンション・アパート]情報 物件詳細 | Transportation facilities 交通機関 | | Subway Karasuma / Ayumi Kitaooji 25 minutes Subway Karasuma / Ayumi Kitayama 27 minutes Subway Karasuma / Kuramaguchi walk 37 minutes 地下鉄烏丸線/北大路 歩25分 地下鉄烏丸線/北山 歩27分 地下鉄烏丸線/鞍馬口 歩37分
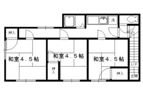
| Floor plan details 間取り詳細 | | Sum 4.5 sum 4.5 sum 4.5 K4 和4.5 和4.5 和4.5 K4 | Construction 構造 | | Wooden 木造 | Story 階建 | | Second floor / 2-story 2階/2階建 | Built years 築年月 | | October 1964 1964年10月 | Nonlife insurance 損保 | | The main 要 | Move-in 入居 | | Immediately 即 | Trade aspect 取引態様 | | Mediation 仲介 | Conditions 条件 | | Two people Available / Children Allowed 二人入居可/子供可 | Property code 取り扱い店舗物件コード | | W84132-2F W84132-2F | Total units 総戸数 | | 2 units 2戸 | Other expenses ほか諸費用 | | Water bill 3500 yen 水道代3500円 | Remarks 備考 | | Kyoto City bus Omiya traffic Koenmae Station 5-minute walk 京都市バス大宮交通公園前駅徒歩5分 | Area information 周辺情報 | | FamilyMart 840m to 300m gourmet City until the (convenience store) (super) up to 310m Kamo Hospital (hospital) to 540m Ducks (drugstore) to 360m Kyoto Omiya AzumaOnohori post office (post office) to 330m Kamigamo Shrine (Other) ファミリーマート(コンビニ)まで300mグルメシティ(スーパー)まで310m賀茂病院(病院)まで540mダックス(ドラッグストア)まで360m京都大宮東小野堀郵便局(郵便局)まで330m上賀茂神社(その他)まで840m |
Building appearance建物外観 
Living and room居室・リビング 
 Japanese style room
和室
 Japanese style room
和室
Kitchenキッチン  Kitchen
キッチン
Bathバス  Bath
バス
Toiletトイレ  Toilet
トイレ
Receipt収納  Armoire
押入れ
Other room spaceその他部屋・スペース  Corridor
廊下
Balconyバルコニー  Major lighting part
主要採光部分
Other Equipmentその他設備  Hot water supply panel
給湯パネル
Entrance玄関  Entrance
玄関
View眺望  Landscape
風景
Supermarketスーパー  310m until Gourmet City (Super)
グルメシティ(スーパー)まで310m
Convenience storeコンビニ  300m to Family Mart (convenience store)
ファミリーマート(コンビニ)まで300m
Dorakkusutoaドラックストア  Dax 360m until (drugstore)
ダックス(ドラッグストア)まで360m
Hospital病院  Kamo 540m to the hospital (hospital)
賀茂病院(病院)まで540m
Post office郵便局  330m to Kyoto Omiya AzumaOnohori post office (post office)
京都大宮東小野堀郵便局(郵便局)まで330m
Otherその他  Kamigamo 840m Shrine (Other)
上賀茂神社(その他)まで840m
Location
|