Rentals » Kansai » Kyoto » Kita-ku
 
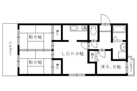
| Railroad-station 沿線・駅 | | Subway Karasuma / Kitaooji 地下鉄烏丸線/北大路 | Address 住所 | | Kyoto, Kyoto Prefecture, Kita-ku, Shichikukamihon cho 京都府京都市北区紫竹上本町 | Walk 徒歩 | | 12 minutes 12分 | Rent 賃料 | | 82,000 yen 8.2万円 | Management expenses 管理費・共益費 | | 5000 Yen 5000円 | Depreciation and amortization 敷引・償却金 | | 150,000 yen 15万円 | Deposit 保証金 | | 200,000 yen 20万円 | Floor plan 間取り | | 3LDK 3LDK | Occupied area 専有面積 | | 60 sq m 60m2 | Direction 向き | | South 南 | Type 種別 | | Mansion マンション | Year Built 築年 | | Built 27 years 築27年 | | Eho Kitayama エホー北山 |
| Speaking of 3LDK in Kitayama. 北山で3LDKといえば。 |
| Bus toilet by, balcony, Gas stove correspondence, Flooring, Indoor laundry location, Facing south, Corner dwelling unit, Bicycle-parking space, closet, Immediate Available, Key money unnecessary, top floor, Deposit required, Two tenants consultation, Office consultation, 3 station more accessible, Within a 3-minute bus stop walk, No upper floorese-style room, City gas バストイレ別、バルコニー、ガスコンロ対応、フローリング、室内洗濯置、南向き、角住戸、駐輪場、押入、即入居可、礼金不要、最上階、敷金不要、二人入居相談、事務所相談、3駅以上利用可、バス停徒歩3分以内、上階無し、和室、都市ガス |
Property name 物件名 | | Rental housing of Kyoto, Kyoto Prefecture, Kita-ku, Shichikukamihon cho Kitaōji Station [Rental apartment ・ Apartment] information Property Details 京都府京都市北区紫竹上本町 北大路駅の賃貸住宅[賃貸マンション・アパート]情報 物件詳細 | Transportation facilities 交通機関 | | Subway Karasuma / Ayumi Kitaooji 12 minutes Subway Karasuma / Ayumi Kitayama 16 minutes Subway Karasuma / Kuramaguchi walk 25 minutes 地下鉄烏丸線/北大路 歩12分 地下鉄烏丸線/北山 歩16分 地下鉄烏丸線/鞍馬口 歩25分
| Floor plan details 間取り詳細 | | Sum 6 sum 6 sum 4.5 LDK9 和6 和6 和4.5 LDK9 | Construction 構造 | | Steel rebar 鉄骨鉄筋 | Story 階建 | | 4th floor / 4-story 4階/4階建 | Built years 築年月 | | June 1987 1987年6月 | Nonlife insurance 損保 | | 12,000 yen two years 1.2万円2年 | Parking lot 駐車場 | | Site 16200 yen / Covered stationed 敷地内16200円/屋根付駐 | Move-in 入居 | | Immediately 即 | Trade aspect 取引態様 | | Mediation 仲介 | Conditions 条件 | | Two people Available / Children Allowed / Office use consultation 二人入居可/子供可/事務所利用相談 | Property code 取り扱い店舗物件コード | | K27888-402 K27888-402 | Total units 総戸数 | | 11 units 11戸 | Balcony area バルコニー面積 | | 16.5 sq m 16.5m2 | Remarks 備考 | | Kyoto City bus Kamihorikawa Station 2-minute walk / Patrol management 京都市バス上堀川駅徒歩2分/巡回管理 | Area information 周辺情報 | | Thanks Kyoto North post office before store (convenience store) up to 22m Japan Post Bank Kyoto Kitamise (Bank) to 72m of Kyoto Kamihorikawa Branch (Bank) up to 95m MG Kamihorikawa store (supermarket) up to 165m Zizhu elementary school (elementary school) up to 307m Circle K サンクス京都北郵便局前店(コンビニ)まで22mゆうちょ銀行 京都北店(銀行)まで72m京都銀行 上堀川支店(銀行)まで95mエムジー 上堀川店(スーパー)まで165m紫竹小学校(小学校)まで307mサークルK小山新町通店(コンビニ)まで427m |
Building appearance建物外観 
Living and room居室・リビング 
 9 Pledge of is living.
9帖のリビングです。
 9 Pledge of is living.
9帖のリビングです。
 5.5 Pledge of Western-style.
5.5帖の洋室です。
 5.5 Pledge of Western-style.
5.5帖の洋室です。
Kitchenキッチン  Kitchen.
キッチンです。
Bathバス  It is a bathroom.
バスルームです。
Toiletトイレ  Toilet.
トイレです。
Receipt収納  Western-style is the storage.
洋室の収納です。
 Western-style is the storage.
洋室の収納です。
Washroom洗面所  Independence is a wash basin.
独立洗面台です。
Entrance玄関  It is entrance.
玄関です。
Supermarketスーパー  MG Kamihorikawa store up to (super) 165m
エムジー 上堀川店(スーパー)まで165m
Convenience storeコンビニ  Thanks Kyoto North post office before store up (convenience store) 22m
サンクス京都北郵便局前店(コンビニ)まで22m
 427m to Circle K Koyama Shinmachidori store (convenience store)
サークルK小山新町通店(コンビニ)まで427m
Primary school小学校  Zizhu up to elementary school (elementary school) 307m
紫竹小学校(小学校)まで307m
Bank銀行  72m to Japan Post Bank Kyoto Kitamise (Bank)
ゆうちょ銀行 京都北店(銀行)まで72m
 Bank of Kyoto Kamihorikawa 95m to the branch (Bank)
京都銀行 上堀川支店(銀行)まで95m
Location
|