Rentals » Kansai » Kyoto » Kita-ku
 
| Railroad-station 沿線・駅 | | Eizan Electric Railway Kuramasen / Ichihara 叡山電鉄鞍馬線/市原 | Address 住所 | | Kyoto, Kyoto Prefecture, Kita-ku, Kamigamokoyama 京都府京都市北区上賀茂神山 | Walk 徒歩 | | 8 minutes 8分 | Rent 賃料 | | 130,000 yen 13万円 | Security deposit 敷金 | | 200,000 yen 20万円 | Floor plan 間取り | | 5LDK 5LDK | Occupied area 専有面積 | | 141.36 sq m 141.36m2 | Direction 向き | | South 南 | Type 種別 | | Residential home 一戸建て | Year Built 築年 | | Built 35 years 築35年 | | Kamigamokoyama rental 上賀茂神山貸家 |
| Nature full spread houses for rent 自然いっぱい広め貸家 |
| Rental of Sakyo Ichihara of 141 square meters 5LDK. Pets are allowed. 左京区市原の141平米5LDKの貸家。ペット可です。 |
| Bus toilet by, balcony, Air conditioning, Facing south, Seperate, Bicycle-parking space, closet, Immediate Available, Key money unnecessary, Pets Negotiable, Sale rent, 3 station more accessible, Within a 10-minute walk station, The area occupied 30 square meters or more, LDK12 tatami mats or moreese-style roomese-style room 8 tatami mats or more, All room 6 tatami mats or more, propane gas バストイレ別、バルコニー、エアコン、南向き、洗面所独立、駐輪場、押入、即入居可、礼金不要、ペット相談、分譲賃貸、3駅以上利用可、駅徒歩10分以内、専有面積30坪以上、LDK12畳以上、和室、和室8畳以上、全居室6畳以上、プロパンガス |
Property name 物件名 | | Rental housing of Kyoto, Kyoto Prefecture, Kita-ku, Kamigamokoyama Ichihara Station [Rental apartment ・ Apartment] information Property Details 京都府京都市北区上賀茂神山 市原駅の賃貸住宅[賃貸マンション・アパート]情報 物件詳細 | Transportation facilities 交通機関 | | Eizan Electric Railway Kuramasen / Ayumi Ichihara 8 minutes Eizan Electric Railway Kuramasen / Nikenchaya walk 14 minutes Eizan Electric Railway Kuramasen / Ninose step 22 minutes 叡山電鉄鞍馬線/市原 歩8分 叡山電鉄鞍馬線/二軒茶屋 歩14分 叡山電鉄鞍馬線/二ノ瀬 歩22分
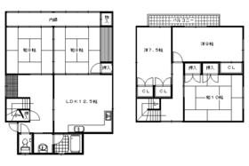
| Floor plan details 間取り詳細 | | Sum 10 sum 8 sum 8 Hiroshi 9 Hiroshi 7.5 LDK12.5 和10 和8 和8 洋9 洋7.5 LDK12.5 | Construction 構造 | | Wooden 木造 | Story 階建 | | 1st floor / 2-story 1階/2階建 | Built years 築年月 | | November 1979 1979年11月 | Nonlife insurance 損保 | | The main 要 | Move-in 入居 | | Immediately 即 | Trade aspect 取引態様 | | Mediation 仲介 | Conditions 条件 | | Pets Negotiable ペット相談 | Property code 取り扱い店舗物件コード | | K29153-1 K29153-1 | Total units 総戸数 | | 1 units 1戸 | Remarks 備考 | | Kyoto bus Kawashima station 4 minutes walk 京都バス川島織物駅徒歩4分 | Area information 周辺情報 | | Ichiharano nursery school (kindergarten ・ Nursery school) until 302m Kyoto Shizuichiichihara post office (625m Lawson until the post office) to 488m Ekopu Kyoto center Ichiharano store (Super) Shizuichiichihara shop 1100m to 785m Rakukita hospital until until (convenience store) 645m Ichiharano elementary school (elementary school) (hospital) 市原野保育園(幼稚園・保育園)まで302m京都静市市原郵便局(郵便局)まで488mエーコープ京都中央 市原野店(スーパー)まで625mローソン 静市市原店(コンビニ)まで645m市原野小学校(小学校)まで785m洛北病院(病院)まで1100m |

Supermarketスーパー  Ekopu Kyoto center Ichiharano store up to (super) 625m
エーコープ京都中央 市原野店(スーパー)まで625m
Convenience storeコンビニ  Lawson Shizuichiichihara shop until the (convenience store) 645m
ローソン 静市市原店(コンビニ)まで645m
Primary school小学校  Ichiharano up to elementary school (elementary school) 785m
市原野小学校(小学校)まで785m
Kindergarten ・ Nursery幼稚園・保育園  Ichiharano nursery school (kindergarten ・ 302m to the nursery)
市原野保育園(幼稚園・保育園)まで302m
Hospital病院  Rakukita 1100m to the hospital (hospital)
洛北病院(病院)まで1100m
Post office郵便局  488m to Kyoto Shizuichiichihara post office (post office)
京都静市市原郵便局(郵便局)まで488m
Location
|