Rentals » Kansai » Kyoto » Ukyo-ku
 
| Railroad-station 沿線・駅 | | Hankyu Kyoto Line / Saiin 阪急京都線/西院 | Address 住所 | | Kyoto, Kyoto Prefecture Ukyo-ku, Saiinminamitakada cho 京都府京都市右京区西院南高田町 | Walk 徒歩 | | 9 minutes 9分 | Rent 賃料 | | 99,000 yen 9.9万円 | Management expenses 管理費・共益費 | | 10000 yen 10000円 | Key money 礼金 | | 350,000 yen 35万円 | Security deposit 敷金 | | ¥ 100,000 10万円 | Floor plan 間取り | | 2DK 2DK | Occupied area 専有面積 | | 42.8 sq m 42.8m2 | Direction 向き | | South 南 | Type 種別 | | Mansion マンション | Year Built 築年 | | Built 10 years 築10年 | | Pine field Gojo パインフィールド五条 |
| In upmarket and a nice new life 素敵な新生活を高級志向に |
| Please touch have a look a rental apartment that exceeds the condominium. 分譲マンションを超える賃貸マンションを是非見て触れて下さい。 |
| Bus toilet by, balcony, Air conditioning, Gas stove correspondence, Flooring, Washbasin with shower, TV interphone, Bathroom Dryer, auto lock, Indoor laundry location, System kitchen, Facing south, Add-fired function bathroom, Warm water washing toilet seat, Elevator, Seperate, Bicycle-parking space, closet, CATV, Optical fiber, Immediate Available, 3-neck over stove, With lighting, 24-hour manned management, All room Western-style, Sorting, CATV Internet, Two tenants consultation, Dimple key, Barrier-free, 3 station more accessible, Within a 10-minute walk station, Our managed properties, City gas, BS, High speed Internet correspondence バストイレ別、バルコニー、エアコン、ガスコンロ対応、フローリング、シャワー付洗面台、TVインターホン、浴室乾燥機、オートロック、室内洗濯置、システムキッチン、南向き、追焚機能浴室、温水洗浄便座、エレベーター、洗面所独立、駐輪場、押入、CATV、光ファイバー、即入居可、3口以上コンロ、照明付、24時間有人管理、全居室洋室、振分、CATVインターネット、二人入居相談、ディンプルキー、バリアフリー、3駅以上利用可、駅徒歩10分以内、当社管理物件、都市ガス、BS、高速ネット対応 |
Property name 物件名 | | Rental housing of Kyoto, Kyoto Prefecture Ukyo-ku, Saiinminamitakada cho Saiin Station [Rental apartment ・ Apartment] information Property Details 京都府京都市右京区西院南高田町 西院駅の賃貸住宅[賃貸マンション・アパート]情報 物件詳細 | Transportation facilities 交通機関 | | Hankyu Kyoto Line / Saiin walk 9 minutes JR San-in Main Line / Tambaguchi step 13 minutes Hankyu Kyoto Line / Nishikyogoku walk 15 minutes 阪急京都線/西院 歩9分 JR山陰本線/丹波口 歩13分 阪急京都線/西京極 歩15分
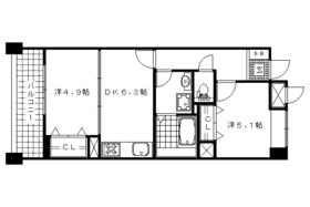
| Floor plan details 間取り詳細 | | Hiroshi 5.1 Hiroshi 4.9 DK6.3 洋5.1 洋4.9 DK6.3 | Construction 構造 | | Rebar Con 鉄筋コン | Story 階建 | | Second floor / 10-storey 2階/10階建 | Built years 築年月 | | September 2004 2004年9月 | Nonlife insurance 損保 | | 14,600 yen two years 1.46万円2年 | Parking lot 駐車場 | | Site 22000 yen 敷地内22000円 | Move-in 入居 | | Immediately 即 | Trade aspect 取引態様 | | Mediation 仲介 | Conditions 条件 | | Two people Available / Children Allowed 二人入居可/子供可 | Property code 取り扱い店舗物件コード | | K36002-201 K36002-201 | Total units 総戸数 | | 41 units 41戸 | Remarks 備考 | | Subway Tozai Line Nishioji Oike Station walk 17 minutes / Resident management 地下鉄東西線西大路御池駅徒歩17分/常駐管理 | Area information 周辺情報 | | Kyoto Koka Women's University Junior College (University of ・ Junior college) until 1100m Kokajoshidaigaku Kyoto (University ・ Junior college) until 1100m Kyoto Junior College of Foreign Languages (University ・ Junior college) until 1300m Kyoto University of Foreign Studies (University of ・ Junior college) until 1300m Ryukoku University (Omiya) (University of ・ Junior college) until 1700m Saiin Station to (other) 650m 京都光華女子大学短期大学部(大学・短大)まで1100m京都光華女子大学(大学・短大)まで1100m京都外国語短期大学(大学・短大)まで1300m京都外国語大学(大学・短大)まで1300m龍谷大学(大宮)(大学・短大)まで1700m西院駅(その他)まで650m |
Building appearance建物外観 
Living and room居室・リビング 




Kitchenキッチン 

Bathバス 
Toiletトイレ 
Receipt収納 
Washroom洗面所 
Entrance玄関 
University ・ Junior college大学・短大  Kyoto Koka Women's University Junior College (University of ・ 1100m up to junior college)
京都光華女子大学短期大学部(大学・短大)まで1100m
 Kyoto Junior College of Foreign Languages (University of ・ 1300m up to junior college)
京都外国語短期大学(大学・短大)まで1300m
 Ryukoku University (Omiya) (University of ・ 1700m up to junior college)
龍谷大学(大宮)(大学・短大)まで1700m
Otherその他  650m until Saiin Station (Other)
西院駅(その他)まで650m
Location
|