Rentals » Kansai » Kyoto » Ukyo-ku
 
| Railroad-station 沿線・駅 | | Hankyu Kyoto Line / Nishikyogoku 阪急京都線/西京極 | Address 住所 | | Kyoto, Kyoto Prefecture Ukyo-ku, Nishikyogoku MinamioIri cho 京都府京都市右京区西京極南大入町 | Walk 徒歩 | | 7 minutes 7分 | Rent 賃料 | | 89,000 yen 8.9万円 | Management expenses 管理費・共益費 | | 7000 yen 7000円 | Security deposit 敷金 | | 267,000 yen 26.7万円 | Floor plan 間取り | | 1LDK 1LDK | Occupied area 専有面積 | | 55.64 sq m 55.64m2 | Direction 向き | | South 南 | Type 種別 | | Mansion マンション | Year Built 築年 | | Built in 9 years 築9年 | | Estrela エストレーラ |
| Stylish property. Two people occupancy is also available. オシャレな物件です。二人入居も可能ですよ。 |
| Kyoto Ukyo-ku, ・ Luxury rental in front of the Nishikyogoku ground eyes. 1DK & 1LDK ・ The top floor maisonette. Please contact us so two people occupancy that can also be. 京都市右京区・西京極グラウンド目の前の高級賃貸。1DK&1LDK・最上階はメゾネットタイプ。2人入居も可能なのでご相談ください。 |
| Bus toilet by, balcony, Air conditioning, Gas stove correspondence, Flooring, Washbasin with shower, Bathroom Dryer, auto lock, Indoor laundry location, Facing south, Corner dwelling unit, Elevator, Seperate, Bicycle-parking space, Immediate Available, Key money unnecessary, All room Western-style, Bike shelter, 3 station more accessible, Within a 10-minute walk station, LDK12 tatami mats or more, 8 tatami greater than or equal to a total room, City gas, BS バストイレ別、バルコニー、エアコン、ガスコンロ対応、フローリング、シャワー付洗面台、浴室乾燥機、オートロック、室内洗濯置、南向き、角住戸、エレベーター、洗面所独立、駐輪場、即入居可、礼金不要、全居室洋室、バイク置場、3駅以上利用可、駅徒歩10分以内、LDK12畳以上、全居室8畳以上、都市ガス、BS |
Property name 物件名 | | Rental housing of Kyoto, Kyoto Prefecture Ukyo-ku, Nishikyogoku MinamioIri cho Nishikyogoku Station [Rental apartment ・ Apartment] information Property Details 京都府京都市右京区西京極南大入町 西京極駅の賃貸住宅[賃貸マンション・アパート]情報 物件詳細 | Transportation facilities 交通機関 | | Hankyu Kyoto Line / Nishikyogoku walk 7 minutes Hankyu Kyoto Line / Saiin walk 20 minutes Subway Tozai Line / Uzumasa tenjingawa step 20 minutes 阪急京都線/西京極 歩7分 阪急京都線/西院 歩20分 地下鉄東西線/太秦天神川 歩20分
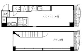
| Floor plan details 間取り詳細 | | Hiroshi 8.2 LDK13.6 洋8.2 LDK13.6 | Construction 構造 | | Rebar Con 鉄筋コン | Story 階建 | | 6th floor / 7-story 6階/7階建 | Built years 築年月 | | February 2006 2006年2月 | Nonlife insurance 損保 | | 21,000 yen two years 2.1万円2年 | Move-in 入居 | | Immediately 即 | Trade aspect 取引態様 | | Mediation 仲介 | Property code 取り扱い店舗物件コード | | K07921-601 K07921-601 | Total units 総戸数 | | 19 units 19戸 | Other expenses ほか諸費用 | | Water bill 2500 yen 水道代2500円 | Remarks 備考 | | Keifuku Railway Arashiyamahonsen Yamanouchi Station walk 19 minutes 京福電鉄嵐山本線山ノ内駅徒歩19分 | Area information 周辺情報 | | Circle K Nishikyogoku shop 391m up (convenience store) up to 112m Kyoto Chuo Shinkin Bank Nishikyogoku Branch (Bank) up to 180m community land Ozaki Kadono shop (super) to up to 367m Sunkus Umezu Takatsuji store (convenience store) 388m Kyoto Kadono post office (post office) サークルK西京極店(コンビニ)まで112m京都中央信用金庫 西京極支店(銀行)まで180mコミュニティランドオザキ かどの店(スーパー)まで367mサンクス梅津高辻店(コンビニ)まで388m京都葛野郵便局(郵便局)まで391mドラッグスギ 梅津南広町店(ドラッグストア)まで464m |
Building appearance建物外観 
Living and room居室・リビング 




Kitchenキッチン 
Bathバス 
Toiletトイレ 
Washroom洗面所 

Other Equipmentその他設備 

Supermarketスーパー  367m to community land Ozaki Kadono store (Super)
コミュニティランドオザキ かどの店(スーパー)まで367m
Convenience storeコンビニ  112m to Circle K Nishikyogoku store (convenience store)
サークルK西京極店(コンビニ)まで112m
 Thanks Umezu Takatsuji 388m to the store (convenience store)
サンクス梅津高辻店(コンビニ)まで388m
Dorakkusutoaドラックストア  Drag cedar Umezuminamihiro cho shop 464m until (drugstore)
ドラッグスギ 梅津南広町店(ドラッグストア)まで464m
Post office郵便局  391m to Kyoto Kadono post office (post office)
京都葛野郵便局(郵便局)まで391m
Bank銀行  Kyoto Chuo Shinkin Bank Nishikyogoku to the branch (Bank) 180m
京都中央信用金庫 西京極支店(銀行)まで180m
Location
|