Rentals » Kansai » Kyoto » Ukyo-ku
 
| Railroad-station 沿線・駅 | | JR San-in Main Line / Uzumasa JR山陰本線/太秦 | Address 住所 | | Kyoto, Kyoto Prefecture Ukyo-ku, Narutakiondoyama cho 京都府京都市右京区鳴滝音戸山町 | Walk 徒歩 | | 32 minutes 32分 | Rent 賃料 | | 137,000 yen 13.7万円 | Management expenses 管理費・共益費 | | 7000 yen 7000円 | Key money 礼金 | | 200,000 yen 20万円 | Deposit 保証金 | | 50,000 yen 5万円 | Floor plan 間取り | | 4LDK 4LDK | Occupied area 専有面積 | | 98.49 sq m 98.49m2 | Direction 向き | | South 南 | Type 種別 | | Mansion マンション | Year Built 築年 | | Built 36 years 築36年 | | Aloes-wood 伽羅 |
| Bus toilet by, Air conditioning, Gas stove correspondence, Flooring, auto lock, Indoor laundry location, Facing south, Bicycle-parking space, closet, Immediate Available, Deposit required, All room Western-style, 3 station more accessible, The area occupied 25 square meters or more, LDK12 tatami mats or more, All room 6 tatami mats or more, City gas バストイレ別、エアコン、ガスコンロ対応、フローリング、オートロック、室内洗濯置、南向き、駐輪場、押入、即入居可、敷金不要、全居室洋室、3駅以上利用可、専有面積25坪以上、LDK12畳以上、全居室6畳以上、都市ガス |
Property name 物件名 | | Rental housing of Kyoto, Kyoto Prefecture Ukyo-ku, Narutakiondoyama cho Uzumasa Station [Rental apartment ・ Apartment] information Property Details 京都府京都市右京区鳴滝音戸山町 太秦駅の賃貸住宅[賃貸マンション・アパート]情報 物件詳細 | Transportation facilities 交通機関 | | JR San-in Main Line / Uzumasa walk 32 minutes JR San-in Main Line / Garden walk 28 minutes Keifuku railway Kitanosen / Utano walk 11 minutes JR山陰本線/太秦 歩32分 JR山陰本線/花園 歩28分 京福電鉄北野線/宇多野 歩11分
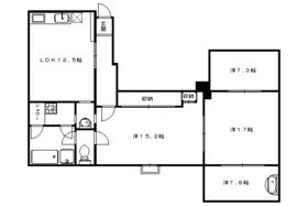
| Floor plan details 間取り詳細 | | Hiroshi 17 Hiroshi 15.2 Hiroshi 7.8 Hiroshi 7.3 LDK12.5 洋17 洋15.2 洋7.8 洋7.3 LDK12.5 | Construction 構造 | | Rebar Con 鉄筋コン | Story 階建 | | Second floor / Three-story 2階/3階建 | Built years 築年月 | | August 1978 1978年8月 | Nonlife insurance 損保 | | 21,000 yen two years 2.1万円2年 | Parking lot 駐車場 | | On-site 5250 yen 敷地内5250円 | Move-in 入居 | | Immediately 即 | Trade aspect 取引態様 | | Mediation 仲介 | Property code 取り扱い店舗物件コード | | K07697-204 K07697-204 | Total units 総戸数 | | 10 units 10戸 | Remarks 備考 | | Keifuku Railway Arashiyamahonsen thin morning kimono Roh Tsuji Station walk 20 minutes 京福電鉄嵐山本線帷子ノ辻駅徒歩20分 | Area information 周辺情報 | | National Hospital Organization Utano hospital (hospital) to 129m Kyoto Utano 669m friend Foods Utano store to the post office (post office) (super) up to 786m FamilyMart Uzumasa Marutamachi store (convenience store) up to 863m FamilyMart Kaohsiung Umekehatake store (convenience store) to 871m Kyoto 国立病院機構 宇多野病院(病院)まで129m京都宇多野郵便局(郵便局)まで669mフレンドフーズ 宇多野店(スーパー)まで786mファミリーマート太秦丸太町店(コンビニ)まで863mファミリーマート高雄梅ヶ畑店(コンビニ)まで871m京都信用金庫 御室支店(銀行)まで947m |
Building appearance建物外観 
Supermarketスーパー 
 786m to Friend Foods Utano store (Super)
フレンドフーズ 宇多野店(スーパー)まで786m
Convenience storeコンビニ  FamilyMart Uzumasa Marutamachi store up (convenience store) 863m
ファミリーマート太秦丸太町店(コンビニ)まで863m
 FamilyMart Kaohsiung Umekehatake store up (convenience store) 871m
ファミリーマート高雄梅ヶ畑店(コンビニ)まで871m
Hospital病院  129m to the National Hospital Organization Utano Hospital (Hospital)
国立病院機構 宇多野病院(病院)まで129m
Post office郵便局  669m to Kyoto Utano post office (post office)
京都宇多野郵便局(郵便局)まで669m
Bank銀行  947m to Kyoto credit union Omuro Branch (Bank)
京都信用金庫 御室支店(銀行)まで947m
Location
|