1982January
30,000 yen, 1K, 1st floor / 2-story, 18 sq m
Rentals » Kansai » Kyoto » Ukyo-ku
 
| Railroad-station 沿線・駅 | | Hankyu Kyoto Line / Nishikyogoku 阪急京都線/西京極 | Address 住所 | | Kyoto, Kyoto Prefecture Ukyo-ku, Umezutsutsumishita cho 京都府京都市右京区梅津堤下町 | Walk 徒歩 | | 20 min 20分 | Rent 賃料 | | 30,000 yen 3万円 | Floor plan 間取り | | 1K 1K | Occupied area 専有面積 | | 18 sq m 18m2 | Direction 向き | | West 西 | Type 種別 | | Apartment アパート | Year Built 築年 | | Built 33 years 築33年 | | Third Corporate Kitamura 第三コーポきたむら |
| It is a quiet residential area. 閑静な住宅街です。 |
| Hankyu Nishi-Kyōgoku Station walk 20 minutes. Although a little away from the railway station, Many bus we ran to the Shijo street because I do not surprising inconvenient. There are supermarkets and convenience stores in the vicinity, Shopping is also very convenient. In addition there is the Katsura River near ... 阪急西京極駅徒歩20分。駅からは少し離れますが、四条通りに多くバスが走っておりますので意外に不便ではないんです。 近くにスーパーやコンビニがあり、買い物も非常に便利です。 また近くに桂川がござい... |
| Gas stove correspondence, Bicycle-parking space, closet, Immediate Available, Key money unnecessary, Deposit required, Launderette, 3 station more accessibleese-style room, All room 6 tatami mats or more, City gas ガスコンロ対応、駐輪場、押入、即入居可、礼金不要、敷金不要、コインランドリー、3駅以上利用可、和室、全居室6畳以上、都市ガス |
Property name 物件名 | | Rental housing of Kyoto, Kyoto Prefecture Ukyo-ku, Umezutsutsumishita-cho, Nishi-Kyōgoku Station [Rental apartment ・ Apartment] information Property Details 京都府京都市右京区梅津堤下町 西京極駅の賃貸住宅[賃貸マンション・アパート]情報 物件詳細 | Transportation facilities 交通機関 | | Hankyu Kyoto Line / Nishikyogoku walk 20 minutes Subway Tozai Line / Uzumasa tenjingawa step 26 minutes JR San-in Main Line / Uzumasa walk 29 minutes 阪急京都線/西京極 歩20分 地下鉄東西線/太秦天神川 歩26分 JR山陰本線/太秦 歩29分
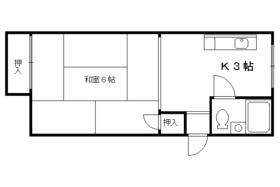
| Floor plan details 間取り詳細 | | Sum 6 K3 和6 K3 | Construction 構造 | | Wooden 木造 | Story 階建 | | 1st floor / 2-story 1階/2階建 | Built years 築年月 | | January 1982 1982年1月 | Nonlife insurance 損保 | | 20,100 yen two years 2.01万円2年 | Move-in 入居 | | Immediately 即 | Trade aspect 取引態様 | | Mediation 仲介 | Property code 取り扱い店舗物件コード | | W83080-102 W83080-102 | Total units 総戸数 | | 5 units 5戸 | Remarks 備考 | | Hankyu Arashiyama Line UeKei Station walk 24 minutes 阪急嵐山線上桂駅徒歩24分 | Area information 周辺情報 | | Kyoto Koka Women's University (University of ・ Junior college) until 1213m Kyoto University of Foreign Studies (University of ・ Up to junior college) 1512m Kyoto Saga University of Arts (University of ・ Junior college) until 3227m Hanazono University (University ・ Junior college) until 3712m Nishi-Kyōgoku Station (2050m until the other) to 1580m Uzumasa Tenjingawa Station (Other) 京都光華女子大学(大学・短大)まで1213m京都外国語大学(大学・短大)まで1512m京都嵯峨芸術大学(大学・短大)まで3227m花園大学(大学・短大)まで3712m西京極駅(その他)まで1580m太秦天神川駅(その他)まで2050m |
Building appearance建物外観 
Living and room居室・リビング 



Kitchenキッチン 
Other room spaceその他部屋・スペース 


University ・ Junior college大学・短大  Kyoto Koka Women's University (University of ・ 1213m up to junior college)
京都光華女子大学(大学・短大)まで1213m
 Kyoto University of Foreign Studies (University of ・ 1512m up to junior college)
京都外国語大学(大学・短大)まで1512m
 Kyoto Saga University of Arts (University of ・ 3227m up to junior college)
京都嵯峨芸術大学(大学・短大)まで3227m
 Hanazono University (University of ・ 3712m up to junior college)
花園大学(大学・短大)まで3712m
Otherその他  1580m to Nishi-Kyōgoku Station (Other)
西京極駅(その他)まで1580m
 2050m until Uzumasa Tenjingawa Station (Other)
太秦天神川駅(その他)まで2050m
Location
|