Rentals » Kansai » Kyoto » Yamashina-ku


Otowachinji the town houses for rent
Introduction of Otsuka Elementary District rental housing!
Than Otsuka Elementary School District, Family property is an introduction. In rental housing is located on the east side of Rakuwakai Otowa hospital, Otsuka also elementary school to junior high school also Otowa, Since the distance of within a 10-minute walk of children are easy ・ It can feel old because it passed a little built in ...
Bus toilet by, Gas stove correspondence, Bicycle-parking space, closet, Immediate Available, Pets Negotiable, Sale rent, Two tenants consultation, 3 station more accessibleese-style room, propane gas
Railroad-station
Keihan Keishin / Shinomiya
Address
Kyoto-shi, Kyoto Yamashina-ku Otowachinji cho
Walk
16 minutes
Rent
55,000 yen
Key money
¥ 100,000
Security deposit
¥ 100,000
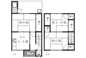
Floor plan
3DK
Occupied area
46 sq m
Direction
North
Type
terrace ・ Townhouse
Year Built
Built 44 years
Property name
Rental housing of Kyoto, Kyoto Prefecture Yamashina-ku Otowachinji cho Shinomiya Station [Rental apartment ・ Apartment] information Property Details
Transportation facilities
Keihan Keishin / Ayumi Shinomiya 16 minutes
Subway Tozai Line / Ayumi Yamashina 21 minutes
JR Tokaido Line / Ayumi Yamashina 23 minutes
Floor plan details
Sum 6 sum 6 sum 4.5 DK4.5
Construction
Wooden
Story
1st floor / 2-story
Built years
March 1971
Nonlife insurance
20,000 yen two years
Move-in
Immediately
Trade aspect
Mediation
Conditions
Pets Negotiable
Property code
K17086-1xxx
Total units
2 units
Remarks
Keihan Keishin Keihan Yamashina Station walk 23 minutes
Area information
Rakuwakai Otowa Hospital (hospital) to 72m Super Smile Koyama store (supermarket) up to 195m Lawson Yamashina Otowa store (convenience store) up to 378m Otsuka elementary school (elementary school) up to 404m Otowa junior high school (junior high school) up to 462m Rakuwakai Kyoto Welfare School (Other


Building appearance

Building appearance

Living and room

Living and room
Living and room
Living and room
Living and room

Kitchen

Kitchen

Bath

Bath

Toilet

Toilet

Receipt

Receipt
Receipt
Receipt

Balcony

Balcony

Entrance

Entrance

Supermarket

Supermarket. 195m to Super Smile Koyama store (Super)
195m to Super Smile Koyama store (Super)

Convenience store

Convenience store. 378m until Lawson Yamashina Otowa store (convenience store)
378m until Lawson Yamashina Otowa store (convenience store)

Junior high school

Junior high school. Otowa 462m until junior high school (junior high school)
Otowa 462m until junior high school (junior high school)

Primary school

Primary school. Otsuka 404m up to elementary school (elementary school)
Otsuka 404m up to elementary school (elementary school)

Hospital

Hospital. Rakuwakai Otowa 72m to the hospital (hospital)
Rakuwakai Otowa 72m to the hospital (hospital)

Other

Other. Rakuwakai Kyoto Welfare School (other) 120m to
Rakuwakai Kyoto Welfare School (other) 120m to



Location