|
Railroad-station 沿線・駅 | | Subway Tozai Line / Nagitsuji 地下鉄東西線/椥辻 |
Address 住所 | | Kyoto-shi, Kyoto Yamashina-ku Oyakeuchiake cho 京都府京都市山科区大宅打明町 |
Walk 徒歩 | | 10 minutes 10分 |
Rent 賃料 | | 30,000 yen 3万円 |
Management expenses 管理費・共益費 | | 3000 yen 3000円 |
Security deposit 敷金 | | 70,000 yen 7万円 |
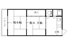
Floor plan 間取り | | 2K 2K |
Occupied area 専有面積 | | 30.8 sq m 30.8m2 |
Direction 向き | | South 南 |
Type 種別 | | Apartment アパート |
Year Built 築年 | | Built 45 years 築45年 |
|
Rakuto Heights
洛東ハイツ
|
|
Oya Elementary School District of family property! Neighborhood facilities also has been enhanced.
大宅小学校区のファミリー物件!近隣施設も充実してますよ。
|
|
Key money without ・ ・ Family property is an introduction from Oya Elementary School District. 2DK ・ There is a 2K type of floor plan! Oya Small ・ It is within a 10-minute walk in Oya! Also post office ・ Supermarket ・ Convenience store also convenient that the 10-minute walk, such as ...
礼金ナシ・・大宅小学校区からファミリー物件のご紹介です。2DK・2Kタイプの間取りがあります!大宅小・大宅中も徒歩10分圏内ですよ!また郵便局・スーパー・コンビニなども徒歩10分圏内という便利な...
|
|
Bus toilet by, balcony, Gas stove correspondence, Facing south, Corner dwelling unit, Bicycle-parking space, Key money unnecessary, Two tenants consultation, 3 station more accessible, Within a 10-minute walk stationese-style room, City gas
バストイレ別、バルコニー、ガスコンロ対応、南向き、角住戸、駐輪場、礼金不要、二人入居相談、3駅以上利用可、駅徒歩10分以内、和室、都市ガス
|
Property name 物件名 | | Rental housing of Kyoto, Kyoto Prefecture Yamashina-ku Oyakeuchiake cho Nagitsuji Station [Rental apartment ・ Apartment] information Property Details 京都府京都市山科区大宅打明町 椥辻駅の賃貸住宅[賃貸マンション・アパート]情報 物件詳細 |
Transportation facilities 交通機関 | | Subway Tozai Line / Nagitsuji walk 10 minutes Subway Tozai Line / Ayumi Ono 25 minutes Subway Tozai Line / Ayumi Higashino 17 minutes 地下鉄東西線/椥辻 歩10分 地下鉄東西線/小野 歩25分 地下鉄東西線/東野 歩17分
|
Floor plan details 間取り詳細 | | Sum 6 sum 4.5 K4 和6 和4.5 K4 |
Construction 構造 | | Wooden 木造 |
Story 階建 | | 1st floor / 2-story 1階/2階建 |
Built years 築年月 | | April 1970 1970年4月 |
Nonlife insurance 損保 | | 15,000 yen two years 1.5万円2年 |
Parking lot 駐車場 | | Site 10000 yen 敷地内10000円 |
Move-in 入居 | | Consultation 相談 |
Trade aspect 取引態様 | | Mediation 仲介 |
Property code 取り扱い店舗物件コード | | K04800-C35 K04800-C35 |
Total units 総戸数 | | 42 units 42戸 |
Remarks 備考 | | Subway Tozai Line Yamashina Station walk 29 minutes 地下鉄東西線山科駅徒歩29分 |
Area information 周辺情報 | | Kyoto Yamashina Oya 453m Shiga Bank Yamashina south until the post office until the (post office) to 116m Fresco Oya store (super) up to 181m Oya elementary school (elementary school) 244m Seven-Eleven Yamashina Oya store (convenience store) up to 366m Gurumeshitihikariya Yamashina store (Super) 京都山科大宅郵便局(郵便局)まで116mフレスコ 大宅店(スーパー)まで181m大宅小学校(小学校)まで244mセブンイレブン山科大宅店(コンビニ)まで366mグルメシティヒカリ屋 山科店(スーパー)まで453m滋賀銀行 山科南支店(銀行)まで466m |