Rentals » Kansai » Kyoto » Yamashina-ku
 
| Railroad-station 沿線・駅 | | JR Tokaido Line / Yamashina JR東海道本線/山科 | Address 住所 | | Kyoto-shi, Kyoto Yamashina-ku Anshunakamizo cho 京都府京都市山科区安朱中溝町 | Walk 徒歩 | | 4 minutes 4分 | Rent 賃料 | | 59,000 yen 5.9万円 | Key money 礼金 | | 130,000 yen 13万円 | Security deposit 敷金 | | 65,000 yen 6.5万円 | Floor plan 間取り | | 4K 4K | Occupied area 専有面積 | | 48.6 sq m 48.6m2 | Direction 向き | | South 南 | Type 種別 | | terrace ・ Townhouse テラス・タウンハウス | Year Built 築年 | | Built 41 years 築41年 | | Anshunakamizo cho Terrace House 安朱中溝町テラスハウス |
| With for the home garden land! 家庭菜園用用地付き! |
| Home garden site Detached 家庭菜園用地 戸建 |
| Bus toilet by, balcony, Gas stove correspondence, Indoor laundry location, Yang per good, Facing south, Seperate, Bicycle-parking space, closet, Immediate Available, top floor, Sale rent, Sorting, Two tenants consultation, Room share consultation, 3 station more accessible, Within a 5-minute walk station, No upper floorese-style room, City gas バストイレ別、バルコニー、ガスコンロ対応、室内洗濯置、陽当り良好、南向き、洗面所独立、駐輪場、押入、即入居可、最上階、分譲賃貸、振分、二人入居相談、ルームシェア相談、3駅以上利用可、駅徒歩5分以内、上階無し、和室、都市ガス |
Property name 物件名 | | Rental housing of Kyoto, Kyoto Prefecture Yamashina-ku Anshunakamizo-cho, Yamashina Station [Rental apartment ・ Apartment] information Property Details 京都府京都市山科区安朱中溝町 山科駅の賃貸住宅[賃貸マンション・アパート]情報 物件詳細 | Transportation facilities 交通機関 | | JR Tokaido Line / Ayumi Yamashina 4 minutes Keihan Keishin / Keihan Ayumi Yamashina 4 minutes Subway Tozai Line / Ayumi Yamashina 4 minutes JR東海道本線/山科 歩4分 京阪京津線/京阪山科 歩4分 地下鉄東西線/山科 歩4分
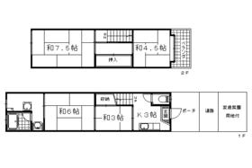
| Floor plan details 間取り詳細 | | Sum 7.5 sum 6 sum 4.5 sum 3 K3 和7.5 和6 和4.5 和3 K3 | Construction 構造 | | Wooden 木造 | Story 階建 | | Bungalow 平屋 | Built years 築年月 | | May 1973 1973年5月 | Nonlife insurance 損保 | | The main 要 | Move-in 入居 | | Immediately 即 | Trade aspect 取引態様 | | Mediation 仲介 | Conditions 条件 | | Two people Available / Children Allowed / Room share consultation 二人入居可/子供可/ルームシェア相談 | Property code 取り扱い店舗物件コード | | K33768-xxx K33768-xxx | Total units 総戸数 | | 9 units 9戸 | Remarks 備考 | | Keihan Keishin Shinomiya Station a 10-minute walk 京阪京津線四宮駅徒歩10分 | Area information 周辺情報 | | TSUTAYA Yamashina Station store (video rental) to 134m Anshu nursery school (kindergarten ・ Nursery school) until 208m Lawson Yamashina Station store (convenience store) up to 269m 其枝 kindergarten (kindergarten ・ To nursery school) 275m Anshu 337m up to elementary school (elementary school) up to 334m food shop Lactobacillus (super) TSUTAYA 山科駅前店(レンタルビデオ)まで134m安朱保育園(幼稚園・保育園)まで208mローソン山科駅前店(コンビニ)まで269m其枝幼稚園(幼稚園・保育園)まで275m安朱小学校(小学校)まで334mフードショップラクト(スーパー)まで337m |
Building appearance建物外観 
Supermarketスーパー 
 Food shop 337m to Lactobacillus (super)
フードショップラクト(スーパー)まで337m
Convenience storeコンビニ  Lawson Yamashina Station store up to (convenience store) 269m
ローソン山科駅前店(コンビニ)まで269m
Primary school小学校  Anshu up to elementary school (elementary school) 334m
安朱小学校(小学校)まで334m
Kindergarten ・ Nursery幼稚園・保育園  Anshu nursery school (kindergarten ・ 208m to the nursery)
安朱保育園(幼稚園・保育園)まで208m
 其枝 kindergarten (kindergarten ・ 275m to the nursery)
其枝幼稚園(幼稚園・保育園)まで275m
Rental videoレンタルビデオ  TSUTAYA Yamashina Station shop 134m up (video rental)
TSUTAYA 山科駅前店(レンタルビデオ)まで134m
Location
|