Rentals » Kansai » Kyoto » Yamashina-ku
 
| Railroad-station 沿線・駅 | | Subway Tozai Line / Nagitsuji 地下鉄東西線/椥辻 | Address 住所 | | Kyoto-shi, Kyoto Yamashina-ku Oyakesekisho cho 京都府京都市山科区大宅関生町 | Walk 徒歩 | | 7 minutes 7分 | Rent 賃料 | | 55,000 yen 5.5万円 | Key money 礼金 | | 150,000 yen 15万円 | Security deposit 敷金 | | 50,000 yen 5万円 | Floor plan 間取り | | 3DK 3DK | Occupied area 専有面積 | | 44.85 sq m 44.85m2 | Direction 向き | | East 東 | Type 種別 | | Residential home 一戸建て | Year Built 築年 | | Built 37 years 築37年 | | Oyakesekisho the town houses for rent 大宅関生町貸家 |
| Bus toilet by, balcony, Gas stove correspondence, Yang per good, Seperate, Bicycle-parking space, closet, Immediate Available, Sale rent, Two tenants consultation, 3 station more accessible, Within a 10-minute walk stationese-style room, City gas バストイレ別、バルコニー、ガスコンロ対応、陽当り良好、洗面所独立、駐輪場、押入、即入居可、分譲賃貸、二人入居相談、3駅以上利用可、駅徒歩10分以内、和室、都市ガス |
Property name 物件名 | | Rental housing of Kyoto, Kyoto Prefecture Yamashina-ku Oyakesekisho cho Nagitsuji Station [Rental apartment ・ Apartment] information Property Details 京都府京都市山科区大宅関生町 椥辻駅の賃貸住宅[賃貸マンション・アパート]情報 物件詳細 | Transportation facilities 交通機関 | | Subway Tozai Line / Nagitsuji walk 7 minutes Subway Tozai Line / Ayumi Ono 8 minutes JR Tokaido Line / Ayumi Yamashina 37 minutes 地下鉄東西線/椥辻 歩7分 地下鉄東西線/小野 歩8分 JR東海道本線/山科 歩37分
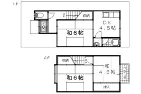
| Floor plan details 間取り詳細 | | Sum 6 sum 6 Hiroshi 4.5 DK4.5 和6 和6 洋4.5 DK4.5 | Construction 構造 | | Wooden 木造 | Story 階建 | | 1st floor / 2-story 1階/2階建 | Built years 築年月 | | December 1977 1977年12月 | Nonlife insurance 損保 | | 44,000 yen two years 4.4万円2年 | Move-in 入居 | | Immediately 即 | Trade aspect 取引態様 | | Mediation 仲介 | Conditions 条件 | | Two people Available / Children Allowed 二人入居可/子供可 | Property code 取り扱い店舗物件コード | | K33861-xx K33861-xx | Total units 総戸数 | | 1 units 1戸 | Remarks 備考 | | Keihan Keishin Keihan Yamashina Station walk 37 minutes 京阪京津線京阪山科駅徒歩37分 | Area information 周辺情報 | | Until Matsuya Super Oya store (super) 140m Lawson Yamashina Oyakekan'no Machiten (convenience store) up to 200m SusumuOsamu junior high school (junior high school) up to 250m Yamashina police station (police station ・ Up until alternating) 280m Ono elementary school (elementary school) up to 400m of Kyoto Yamashina Central Branch (Bank) 550m マツヤスーパー 大宅店(スーパー)まで140mローソン山科大宅神納町店(コンビニ)まで200m勧修中学校(中学校)まで250m山科警察署(警察署・交番)まで280m小野小学校(小学校)まで400m京都銀行 山科中央支店(銀行)まで550m |
Building appearance建物外観 
Living and room居室・リビング 
 The first floor part of the Japanese-style room!
1階部分の和室です!
 There is also a TV line!
テレビ線もありますよ!
 Dining is a space!
ダイニングスペースです!
 4.5 Pledge of is the breadth.
4.5帖の広さです。
Kitchenキッチン  Also there are still water heater.
給湯器も残っています。
Bathバス  Also a shower ・
シャワーも付いてます・
Toiletトイレ  It has been in Western-style type!
洋式タイプにされています!
Receipt収納  Staircase under storage of large capacity.
大容量の階段下収納です。
Washroom洗面所  Washbasin ・
洗面台付き・
Entrance玄関  Entrance are spacious!
玄関は広々しています!
 I opened the front door ・ ・ ・ Like this ・
玄関をあけると・・・こんな感じ・
Supermarketスーパー  Matsuya Super Oya store (supermarket) to 140m
マツヤスーパー 大宅店(スーパー)まで140m
Convenience storeコンビニ  200m to Lawson Yamashina Oyakekan'no Machiten (convenience store)
ローソン山科大宅神納町店(コンビニ)まで200m
Junior high school中学校  SusumuOsamu 250m until junior high school (junior high school)
勧修中学校(中学校)まで250m
Primary school小学校  Ono 400m up to elementary school (elementary school)
小野小学校(小学校)まで400m
Bank銀行  Bank of Kyoto Yamashina 550m to the central branch (Bank)
京都銀行 山科中央支店(銀行)まで550m
Police station ・ Police box警察署・交番  Yamashina police station (police station ・ Until alternating) 280m
山科警察署(警察署・交番)まで280m
Location
|