Rentals » Kansai » Kyoto » Yamashina-ku


Kinken Eleven
Family of Otowagawa school district
Otowagawa is the introduction of the family property from elementary school District.
Bus toilet by, balcony, Gas stove correspondence, Facing south, Elevator, Bicycle-parking space, closet, Immediate Available, Key money unnecessary, 24-hour manned management, Two tenants consultation, Bike shelter, 3 station more accessible, Within a 5-minute walk stationese-style room, City gas
Railroad-station
Keihan Keishin / Shinomiya
Address
Kyoto-shi, Kyoto Yamashina-ku Shinomiyakanda cho
Walk
3 minutes
Rent
45,000 yen
Management expenses
6000 yen
Security deposit
150,000 yen
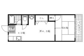
Floor plan
2K
Occupied area
23 sq m
Direction
South
Type
Mansion
Year Built
Built 41 years
Property name
Rental housing of Kyoto, Kyoto Prefecture Yamashina-ku Shinomiyakanda cho Shinomiya Station [Rental apartment ・ Apartment] information Property Details
Transportation facilities
Keihan Keishin / Ayumi Shinomiya 3 minutes
JR Tokaido Line / Ayumi Yamashina 11 minutes
Subway Tozai Line / Ayumi Yamashina 10 minutes
Floor plan details
Sum 6 Hiroshi 4.5 K3
Construction
Rebar Con
Story
8th floor / 11-storey
Built years
July 1973
Nonlife insurance
10,000 yen two years
Move-in
Immediately
Trade aspect
Mediation
Property code
K22405-802
Total units
50 units
Remarks
Keihan Keishin Keihan Yamashina Station 11 minutes' walk / Resident management
Area information
Rakuwakai Kyoto Welfare School (other) up to 596m Kyoto Pharmaceutical University (University ・ Up to junior college) 1200m Kyoto Tachibana University (University ・ Junior college) until 1900m Shinomiya Station (other) up to 228m Yamashina Station (other) up to 800m Keihan Yamashina Station (other) up to 860m


Building appearance

Building appearance
Building appearance
Building appearance
Building appearance

Entrance

Entrance

Other common areas

Other common areas
Other common areas
Other common areas

Other

Other

University ・ Junior college

University ・ Junior college. Kyoto Pharmaceutical University (University of ・ 1200m up to junior college)
Kyoto Pharmaceutical University (University of ・ 1200m up to junior college)

University ・ Junior college. Kyoto Tachibana University (University ・ 1900m up to junior college)
Kyoto Tachibana University (University ・ 1900m up to junior college)

Other

Other. Rakuwakai Kyoto Welfare School (other) up to 596m
Rakuwakai Kyoto Welfare School (other) up to 596m

Other. Shinomiya 228m to the station (Other)
Shinomiya 228m to the station (Other)

Other. 800m to Yamashina Station (Other)
800m to Yamashina Station (Other)

Other. 860m to Keihan Yamashina Station (Other)
860m to Keihan Yamashina Station (Other)



Location