Rentals » Kansai » Kyoto » Nagaokakyo
 
| Railroad-station 沿線・駅 | | Hankyu Kyoto Line / Nagaoka Tenjin 阪急京都線/長岡天神 | Address 住所 | | Kyoto Prefecture Nagaokakyo Tenjin 1 京都府長岡京市天神1 | Walk 徒歩 | | 7 minutes 7分 | Rent 賃料 | | 81,000 yen 8.1万円 | Management expenses 管理費・共益費 | | 9000 yen 9000円 | Depreciation and amortization 敷引・償却金 | | 140,000 yen 14万円 | Deposit 保証金 | | 280,000 yen 28万円 | Floor plan 間取り | | 2LDK 2LDK | Occupied area 専有面積 | | 51.7 sq m 51.7m2 | Direction 向き | | East 東 | Type 種別 | | Mansion マンション | Year Built 築年 | | Built 23 years 築23年 | | Form Nagaoka Tenjin フォルム長岡天神 |
| Rental apartment of luxury equipment 豪華設備の賃貸マンション |
| System kitchen, auto lock, Elevator, Reheating, Parking Lot システムキッチン、オートロック、エレベータ、追い焚き、駐車場 |
| Bus toilet by, balcony, Air conditioning, Gas stove correspondence, Flooring, Washbasin with shower, TV interphone, Bathroom Dryer, auto lock, Indoor laundry location, System kitchen, Add-fired function bathroom, Elevator, Seperate, Bicycle-parking space, closet, CATV, Optical fiber, Immediate Available, Key money unnecessary, Deposit required, 3-neck over stove, Sale rent, All room Western-style, Two tenants consultation, Bike shelter, Card key, Cable broadcasting, 3 station more accessible, Within a 10-minute walk station, Within a 3-minute bus stop walk, City gas, BS バストイレ別、バルコニー、エアコン、ガスコンロ対応、フローリング、シャワー付洗面台、TVインターホン、浴室乾燥機、オートロック、室内洗濯置、システムキッチン、追焚機能浴室、エレベーター、洗面所独立、駐輪場、押入、CATV、光ファイバー、即入居可、礼金不要、敷金不要、3口以上コンロ、分譲賃貸、全居室洋室、二人入居相談、バイク置場、カードキー、有線放送、3駅以上利用可、駅徒歩10分以内、バス停徒歩3分以内、都市ガス、BS |
Property name 物件名 | | Rental housing in Kyoto Prefecture Nagaokakyo Tenjin 1 Nagaoka Tenjin Station [Rental apartment ・ Apartment] information Property Details 京都府長岡京市天神1 長岡天神駅の賃貸住宅[賃貸マンション・アパート]情報 物件詳細 | Transportation facilities 交通機関 | | Hankyu Kyoto Line / Nagaoka Tenjin walk 7 minutes JR Tokaido Line / Nagaokakyo walk 15 minutes Hankyu Kyoto Line / Nishimuko step 40 minutes 阪急京都線/長岡天神 歩7分 JR東海道本線/長岡京 歩15分 阪急京都線/西向日 歩40分
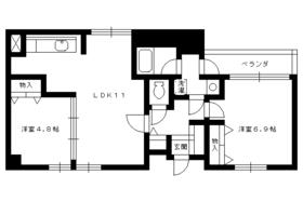
| Floor plan details 間取り詳細 | | Hiroshi 6.9 Hiroshi 4.8 LDK11 洋6.9 洋4.8 LDK11 | Construction 構造 | | Rebar Con 鉄筋コン | Story 階建 | | 4th floor / 5-story 4階/5階建 | Built years 築年月 | | January 1992 1992年1月 | Nonlife insurance 損保 | | 15,000 yen two years 1.5万円2年 | Parking lot 駐車場 | | Site 19000 yen 敷地内19000円 | Move-in 入居 | | Immediately 即 | Trade aspect 取引態様 | | Mediation 仲介 | Conditions 条件 | | Two people Available / Children Allowed 二人入居可/子供可 | Property code 取り扱い店舗物件コード | | K05383-405 K05383-405 | Total units 総戸数 | | 29 units 29戸 | Remarks 備考 | | Hankyu Nagaoka Tenma Miyamae Station 3-minute walk 阪急バス長岡天満宮前駅徒歩3分 | Area information 周辺情報 | | Lawson Store 100 Nagaoka store (convenience store) up to 450m Seiyu Nagaoka store (other) up to 550m Izumiya Nagaoka store (super) 600m Liberty Nagaoka until the (other) up to 650m jumbo Nakamura Nagaokakyo store (other) up to 650m drugstore Raifoto Nagaoka Tenjin store (drag ローソンストア100長岡店(コンビニ)まで450m西友 長岡店(その他)まで550mイズミヤ 長岡店(スーパー)まで600mリバティ長岡(その他)まで650mジャンボなかむら 長岡京店(その他)まで650mドラッグストア ライフォート 長岡天神店(ドラッグストア)まで700m |
Building appearance建物外観 
Living and room居室・リビング 



Kitchenキッチン 




Bathバス 
Entrance玄関 

Supermarketスーパー  Izumiya Nagaoka store up to (super) 600m
イズミヤ 長岡店(スーパー)まで600m
Convenience storeコンビニ  450m until the Lawson Store 100 Nagaoka store (convenience store)
ローソンストア100長岡店(コンビニ)まで450m
Dorakkusutoaドラックストア  Drugstore Raifoto Nagaoka Tenjin store 700m to (drugstore)
ドラッグストア ライフォート 長岡天神店(ドラッグストア)まで700m
Otherその他  Seiyu Nagaoka store up to (other) 550m
西友 長岡店(その他)まで550m
 Liberty 650m to Nagaoka (Other)
リバティ長岡(その他)まで650m
 650m until jumbo Nakamura Nagaokakyo shop (Other)
ジャンボなかむら 長岡京店(その他)まで650m
Location
|