Rentals » Kansai » Kyoto » Nishikyo Ku


Guqin Mansion
2 access of Katsura & UeKei
Rental of Nishikyo Ku Please leave to Kyoto life Katsura shop
Bus toilet by, balcony, Air conditioning, Gas stove correspondence, Indoor laundry location, Elevator, Bicycle-parking space, closet, Immediate Available, Deposit 1 month, Two tenants consultation, Bike shelter, 3 station more accessible, Within a 5-minute walk stationese-style room, City gas, Key money one month
Railroad-station
Hankyu Arashiyama Line / UeKei
Address
Kyoto, Kyoto Prefecture Nishikyo Ku Kamikatsuramaeda cho
Walk
5 minutes
Rent
55,000 yen
Key money
55,000 yen
Security deposit
55,000 yen
Floor plan
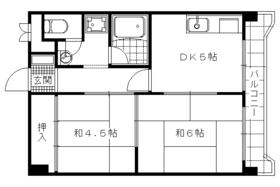
2DK
Occupied area
37.26 sq m
Direction
East
Type
Mansion
Year Built
Built 31 years
Property name
Rental housing of Kyoto, Kyoto Prefecture Nishikyo Ku Kamikatsuramaeda cho above Katsura Station [Rental apartment ・ Apartment] information Property Details
Transportation facilities
Hankyu Arashiyama Line / UeKei walk 5 minutes
Hankyu Kyoto Line / Ayumi Katsura 16 minutes
Hankyu Kyoto Line / Nishikyogoku walk 30 minutes
Floor plan details
Sum 6 sum 4.5 DK5
Construction
Rebar Con
Story
3rd floor / 6-story
Built years
April 1984
Nonlife insurance
20,000 yen two years
Move-in
Immediately
Trade aspect
Mediation
Conditions
Two people Available / Children Allowed
Property code
K03886-304
Total units
43 units
Remarks
Hankyu Kyoto Line Rakusaiguchi Station walk 37 minutes / Parking close to ensure 10000 yen
Area information
Family Mart (convenience store) up to 300m McDonald's (restaurant) to 300m Mitsubishi Kyoto Hospital (hospital) to 370m shop Article 5 (Super) up to 440m Katsura Elementary School (Katsuratatsumi Town) (elementary school) up to 449m Kokajoshidaigaku Kyoto (University ・ 2070m up to junior college)


Living and room

Living and room

Building appearance

Building appearance
Building appearance

Living and room

Living and room
Living and room
Living and room
Living and room

Kitchen

Kitchen

Bath

Bath

Toilet

Toilet

Receipt

Receipt

Washroom

Washroom

Entrance

Entrance

Supermarket

Supermarket. Shop Article 5 until the (super) 440m
Shop Article 5 until the (super) 440m

Convenience store

Convenience store. 300m to Family Mart (convenience store)
300m to Family Mart (convenience store)

Primary school

Primary school. Katsura 449m up to elementary school (Katsuratatsumi Town) (Elementary School)
Katsura 449m up to elementary school (Katsuratatsumi Town) (Elementary School)

Hospital

Hospital. 370m to Mitsubishi Kyoto Hospital (Hospital)
370m to Mitsubishi Kyoto Hospital (Hospital)

Restaurant

restaurant. 300m to McDonald's (restaurant)
300m to McDonald's (restaurant)

University ・ Junior college

University ・ Junior college. Kyoto Koka Women's University (University of ・ 2070m up to junior college)
Kyoto Koka Women's University (University of ・ 2070m up to junior college)



Location