Rentals » Kansai » Kyoto » Nishikyo Ku


ANNEX Katsura
Stylish appearance!
Attention to your rent and the initial cost Unlike stylish appearance!
Bus toilet by, balcony, Air conditioning, Gas stove correspondence, Flooring, Indoor laundry location, Yang per good, Warm water washing toilet seat, Seperate, Bicycle-parking space, closet, CATV, Optical fiber, Immediate Available, top floor, Deposit required, Sorting, Two tenants consultation, Bike shelter, Room share consultation, 3 station more accessible, Within a 5-minute walk station, Within a 3-minute bus stop walk, No upper floorese-style room, All room 6 tatami mats or more, City gas, BS, High speed Internet correspondence, Key money one month
Railroad-station
Hankyu Kyoto Line / Knight
Address
Kyoto, Kyoto Prefecture Nishikyo Ku Oekutsukake cho
Bus
17 minutes
Walk
3 minutes
Rent
55,000 yen
Management expenses
4000 yen
Key money
55,000 yen
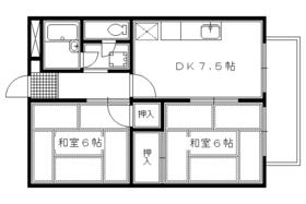
Floor plan
2DK
Occupied area
46.2 sq m
Direction
East
Type
Mansion
Year Built
Built 19 years
Property name
Rental housing of Kyoto, Kyoto Prefecture Nishikyo Ku Oekutsukake-cho, Katsura Station [Rental apartment ・ Apartment] information Property Details
Transportation facilities
Hankyu Kyoto Line / Katsura bus 17 minutes (bus stop) Katsura Ayumi Sakaguchi 3 minutes
Hankyu Kyoto Line / Lok west entrance walk 52 minutes
JR Tokaido Line / Ayumi Katsura 55 minutes
Floor plan details
Sum 6 sum 6 DK7.5
Construction
Steel frame
Story
Second floor / 2-story
Built years
September 1995
Nonlife insurance
22,000 yen two years
Parking lot
On-site 8000 yen
Move-in
Immediately
Trade aspect
Mediation
Conditions
Children Allowed / Room share consultation
Property code
W04275-202
Total units
8 units
Remarks
Kyoto City bus Katsura Sakaguchi Station 3-minute walk
Area information
Seven-Eleven Kyoto Katsurazaka shop 1600m up (convenience store) up to 700m Rakusai Shimizu hospital up to 100m boughs elementary school (elementary school) (hospital) to 890mA Coop Kyoto Lok Nishioeda store (supermarket) up to 810m boughs junior high school (junior high school)


Building appearance

Building appearance

Living and room

Living and room
Living and room
Living and room
Living and room
Living and room
Living and room
Living and room

Kitchen

Kitchen
Kitchen

Bath

Bath

Toilet

Toilet

Washroom

Washroom

Convenience store

Convenience store. Seven-Eleven Kyoto Katsurazaka store up (convenience store) 100m
Seven-Eleven Kyoto Katsurazaka store up (convenience store) 100m

Primary school

Primary school. Bough 700m up to elementary school (elementary school)
Bough 700m up to elementary school (elementary school)

Hospital

Hospital. Rakusai Shimizu 890m to the hospital (hospital)
Rakusai Shimizu 890m to the hospital (hospital)



Location