Rentals » Kansai » Kyoto » Nishikyo Ku
 
| Railroad-station 沿線・駅 | | Hankyu Arashiyama Line / UeKei 阪急嵐山線/上桂 | Address 住所 | | Kyoto, Kyoto Prefecture Nishikyo Ku Kamikatsuramaegawa cho 京都府京都市西京区上桂前川町 | Walk 徒歩 | | 12 minutes 12分 | Rent 賃料 | | 82,200 yen 8.22万円 | Management expenses 管理費・共益費 | | 12000 yen 12000円 | Security deposit 敷金 | | 330,900 yen 33.09万円 | Floor plan 間取り | | 3LDK 3LDK | Occupied area 専有面積 | | 66.38 sq m 66.38m2 | Direction 向き | | South 南 | Type 種別 | | Mansion マンション | Year Built 築年 | | Built 17 years 築17年 | | La ・ Tea Yale Harada ラ・ティエールハラダ |
| Kyoto City Housing Corporation Property 京都市住宅供給公社物件 |
| Renewal fee ・ Unnecessary brokerage fees. Tokuyuchin. The qualification criteria Contact Us 更新料・仲介手数料不要。特優賃。資格審査基準はお問い合わせを |
| Bus toilet by, balcony, Gas stove correspondence, Flooring, Indoor laundry location, Facing south, Add-fired function bathroom, Corner dwelling unit, Elevator, Seperate, Bicycle-parking space, closet, Immediate Available, Key money unnecessary, top floor, Two tenants consultation, Musical Instruments consultation, Specific high-quality rental housing, 3 station more accessible, No upper floorese-style room, All room 6 tatami mats or more, City gas, BS バストイレ別、バルコニー、ガスコンロ対応、フローリング、室内洗濯置、南向き、追焚機能浴室、角住戸、エレベーター、洗面所独立、駐輪場、押入、即入居可、礼金不要、最上階、二人入居相談、楽器相談、特定優良賃貸住宅、3駅以上利用可、上階無し、和室、全居室6畳以上、都市ガス、BS |
Property name 物件名 | | Rental housing of Kyoto, Kyoto Prefecture Nishikyo Ku Kamikatsuramaegawa cho above Katsura Station [Rental apartment ・ Apartment] information Property Details 京都府京都市西京区上桂前川町 上桂駅の賃貸住宅[賃貸マンション・アパート]情報 物件詳細 | Transportation facilities 交通機関 | | Hankyu Arashiyama Line / UeKei walk 12 minutes Hankyu Kyoto Line / Ayumi Katsura 23 minutes Hankyu Arashiyama Line / Matsuo Taisha walk 18 minutes 阪急嵐山線/上桂 歩12分 阪急京都線/桂 歩23分 阪急嵐山線/松尾大社 歩18分
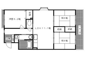
| Floor plan details 間取り詳細 | | Sum 6 sum 6 Hiroshi 6.2 LDK11.1 和6 和6 洋6.2 LDK11.1 | Construction 構造 | | Rebar Con 鉄筋コン | Story 階建 | | 4th floor / 4-story 4階/4階建 | Built years 築年月 | | September 1997 1997年9月 | Nonlife insurance 損保 | | 21,000 yen two years 2.1万円2年 | Parking lot 駐車場 | | Site 10800 yen 敷地内10800円 | Move-in 入居 | | Immediately 即 | Trade aspect 取引態様 | | Mediation 仲介 | Conditions 条件 | | Musical Instruments consultation 楽器相談 | Property code 取り扱い店舗物件コード | | W85928-403 W85928-403 | Total units 総戸数 | | 12 units 12戸 | 特優賃 特優賃 | | Burden monthly 82,200 yen ~ 110,300 yen 負担月額 8.22万円 ~ 11.03万円 | Area information 周辺情報 | | Katsura River until the elementary school (elementary school) up to 350m Seven-Eleven (convenience store) up to 500m Katsura junior high school (junior high school) up to 800m Mitsubishi Kyoto Hospital (hospital) to 900m on the Katsura Station (other) up to 960m Katsura Station (other) 1800m 桂川小学校(小学校)まで350mセブンイレブン(コンビニ)まで500m桂中学校(中学校)まで800m三菱京都病院(病院)まで900m上桂駅(その他)まで960m桂駅(その他)まで1800m |
Building appearance建物外観 
Living and room居室・リビング 




Kitchenキッチン 

Bathバス 
Toiletトイレ 
Receipt収納 
Washroom洗面所 
Entrance玄関 
Convenience storeコンビニ  500m to Seven-Eleven (convenience store)
セブンイレブン(コンビニ)まで500m
Junior high school中学校  Katsura 800m until junior high school (junior high school)
桂中学校(中学校)まで800m
Primary school小学校  Katsura 350m up to elementary school (elementary school)
桂川小学校(小学校)まで350m
Hospital病院  900m to Mitsubishi Kyoto Hospital (Hospital)
三菱京都病院(病院)まで900m
Otherその他  960m to the upper Katsura Station (Other)
上桂駅(その他)まで960m
 1800m to Katsura Station (Other)
桂駅(その他)まで1800m
Location
|