Rentals » Kansai » Kyoto » Nishikyo Ku


Parati Asahara
Katsura Imperial Villa is the front of the eye
It is livable because it is a quiet residential area of ​​the south side of the Katsura Imperial Villa
Bus toilet by, balcony, Gas stove correspondence, Flooring, Indoor laundry location, Seperate, Bicycle-parking space, closet, Optical fiber, Immediate Available, Deposit required, Face-to-face kitchen, Sorting, CATV Internet, Two tenants consultation, Bike shelter, LDK15 tatami mats or more, 3 station more accessible, Within a 10-minute walk stationese-style room, City gas, High speed Internet correspondence
Railroad-station
Hankyu Kyoto Line / Knight
Address
Kyoto, Kyoto Prefecture Nishikyo Ku Katsuraasahara cho
Walk
9 minutes
Rent
77,000 yen
Management expenses
6000 yen
Key money
180,000 yen
Floor plan
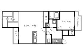
2LDK
Occupied area
54.7 sq m
Direction
East
Type
Mansion
Year Built
30 years old
Property name
Rental housing of Kyoto, Kyoto Prefecture Nishikyo Ku Katsuraasahara-cho, Katsura Station [Rental apartment ・ Apartment] information Property Details
Transportation facilities
Hankyu Kyoto Line / Ayumi Katsura 9 minutes
JR Tokaido Line / Ayumi Katsura 27 minutes
Hankyu Kyoto Line / Lok west entrance walk 35 minutes
Floor plan details
Sum 4.5 Hiroshi 5.5 LDK15
Construction
Rebar Con
Story
1st floor / 4-story
Built years
April 1985
Nonlife insurance
20,000 yen two years
Parking lot
Site 10000 yen
Move-in
Immediately
Trade aspect
Mediation
Conditions
Two people Available / Children Allowed
Property code
K14927-102
Total units
15 units
Remarks
Hankyu Kyoto Line Nishi-Kyōgoku Station walk 24 minutes
Area information
Lawson Katsuranishitakigawa store (convenience store) up to 250m Sandy Katsuramise (super) up to 300m Kyoto Katsura post office (post office) to 350m Dax Katsurahigashi shop 350m Delica chef (Other) to (drugstore) to 400m Kokajoshidaigaku Kyoto (University ・ 2200m up to junior college)


Building appearance

Building appearance

Living and room

Living and room
Living and room. Indoor significant renovation
Indoor significant renovation

Living and room
Living and room. Stylish cross-use
Stylish cross-use

Kitchen

Kitchen. Two-burner stove can be installed
Two-burner stove can be installed

Kitchen. Space is also enough
Space is also enough

Bath

Bath. Large washing machine can be installed
Large washing machine can be installed

Toilet

Toilet

Washroom

Washroom. Effortlessly daily shampoo
Effortlessly daily shampoo

Washroom

Balcony

Balcony

Entrance

Entrance. Spacious entrance
Spacious entrance

Supermarket

Supermarket. 300m to Sandy Katsuramise (super)
300m to Sandy Katsuramise (super)

Convenience store

Convenience store. 250m until Lawson Katsuranishitakigawa store (convenience store)
250m until Lawson Katsuranishitakigawa store (convenience store)

Dorakkusutoa

Dorakkusutoa. Dax Katsurahigashi store (drugstore) to 350m
Dax Katsurahigashi store (drugstore) to 350m

Post office

post office. 350m to Kyoto Katsura post office (post office)
350m to Kyoto Katsura post office (post office)

University ・ Junior college

University ・ Junior college. Kyoto Koka Women's University (University of ・ 2200m up to junior college)
Kyoto Koka Women's University (University of ・ 2200m up to junior college)

Other

Other. Delica chef (Other) up to 400m
Delica chef (Other) up to 400m



Location